О квартире
О доме
Описание
Представьте своё утро в этой квартире
Вы просыпаетесь в спальне, залитой солнцем — окна выходят на три стороны, поэтому свет здесь с самого рассвета до заката. Пока закипает чай, вы выходите на застеклённую лоджию с чашкой кофе, слушаете пение птиц и понимаете: до метро всего 8 минут неспешным шагом, а вокруг — зелень и тишина. Именно так начинается каждый день в этой квартире. И она уже ждёт вас — с ремонтом, мебелью и техникой.
Почему это лучший вариант для вашей семьи?
Расположение, которое экономит время
Дом находится в самом сердце Уручья — одного из самых зелёных и развитых районов Минска.
8 минут пешком до станции метро «Уручье».
Рядом — гипермаркет «Корона», рынок, магазины, аптеки, детские сады и школы (две общеобразовательные, музыкальная, а также студия английского языка для детей прямо в доме на первом этаже).
В 5 минутах — парковая зона для прогулок и активного отдыха.
Выезд на МКАД — 2 минуты, до центра города — 15 минут на машине.
Дом, в котором хочется жить
Кирпичный дом 2003 года постройки — капитальный, тёплый, с хорошей звукоизоляцией.
3-й этаж (невысоко, но с лифтом — два современных лифта всегда наготове).
Чистый подъезд, аккуратный тамбур на 4 квартиры — никаких посторонних запахов и шума.
Видеонаблюдение в подъезде и во дворе, въезд через шлагбаум — безопасность превыше всего.
Специальное место для хранения велосипедов и колясок — мелочь, а приятно.
Простор и свет в каждой комнате
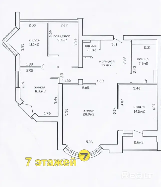
Общая площадь 138,3 м2 — это действительно много места для семьи из 4–5 человек.
Окна выходят на три стороны — редкое преимущество: в квартире всегда светло и легко проветривать.
Планировка: 4 изолированные комнаты.
— Кухня-гостиная 17,4 м2 (просторная, с выходом на застеклённую лоджию) — идеально для семейных ужинов и приёма гостей.
— Три отдельные спальни — у каждого члена семьи своё личное пространство.
— Два раздельных санузла (оба отделаны качественной плиткой, сантехника в идеальном состоянии).
— Встроенные шкафы в прихожей и спальнях — порядок без лишней мебели.
Ремонт, который не потребует вложений
Квартира полностью готова к заселению:
Ламинат с высокой износостойкостью — прослужит долго.
Стены выровнены, оклеены обоями (можно легко обновить интерьер под себя).
Двухкамерные стеклопакеты — тихо и тепло даже зимой.
Металлическая входная дверь с броне накладкой — ваша безопасность.
Вся необходимая мебель и техника остаются — от кухонного гарнитура до стиральной машины и холодильника. Вы просто заезжаете и живёте!
Для автовладельцев — отдельный рай
Во дворе — закрытая территория со шлагбаумом, есть своё закреплённое машиноместо (редкость в Уручье!). Всегда найдётся место и для вашей машины, и для гостевой.
Соседи и атмосфера
В доме живут семьи с детьми — тихие, дружелюбные, следят за порядком. Дети здесь всегда в безопасности, а во дворе есть где погулять. Рядом — две школы, садик, музыкальная школа, студия английского — всё в шаговой доступности.
Документы в порядке, возможна ипотека и маткапитал. Цена уже ниже рыночной, а при быстрой сделке обсудим разумный торг.
Показы по договорённости.
Ваш новый дом уже ждёт вас!
Площадь указана по СНБ.










































