Выберите валюту для сайта:
BYN
Подать БЕСПЛАТНО
Объект в архиве
К результатам поиска

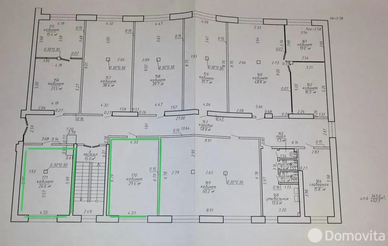
Аренда офиса на пер. Липковский, д. 34 в Минске, 168USD, код 14604

56 м2 5 этаж из 5 Первомайский район
Объект в архиве
Уважаемые пользователи, данное объявление больше не актуально. Поэтому мы убрали все контакты продавца.
Продолжить поиск
Офис
Город Минск
Район Первомайский район
Адрес пер. Липковский, д. 34
Год постройки 2008 г.
Площадь 56 м2
Этаж 5

Описание

Сдаются в аренду офисные помещения на 5ом этаже в 5и-этажном административном здании расположенном по адресу г. Минск пер. Липковский 34 ( 3 км от МКАД ).

Хорошие подъездные пути, а также имеется большая парковка возле здания. Помещения оснащены электричеством, отоплением, телефонными линиями. В здании установлена центральная пожарная сигнализация.

  • Помещение полностью готово к эксплуатации;
  • Охраняемая территория;
  • Доступ 24/7;
  • Офисы с хорошим ремонтом, частично с мебелью;
  • Рядом расположено много складов.

 Арендатор не оплачивает услуги агентства!

Код объекта: 14604 Договор с собственником: 321/2а от 2024-09-19 Опубликовано: 30.04.2025 Обновлено: 25.02.2026
Динамика цен за кв. метрДинамика цен
Похожие объекты
Адрес
Комнат
Площадь
Этаж
Цена за м2
Цена
228.5 м2
2 из 5
14 р. за м2

Вы просматривали

24 210 р./мес. 30 р. за м2
Первомайский р-н
200 р./мес. 10 р. за м2
Советский р-н
5 145 р./мес. 35 р. за м2
Фрунзенский р-н
6 059 р./мес. 30 р. за м2
Советский р-н
6 278 р./мес. 35 р. за м2
Первомайский р-н
+
Фильтр сохранен