Выберите валюту для сайта:
BYN
Подать БЕСПЛАТНО

Снять офис на ул. Некрасова, д. 31 в Минске, 1800EUR, код 15744

3345.9 м2 Советский район / Беды Академия наук
6 087 р./мес.
Офис
Город Минск
Район Советский район
Микрорайон Беды
Адрес ул. Некрасова, д. 31
Метро Академия наук
Время до метро пешком 22 мин.
Время до метро на транспорте 12 мин.
Площадь 3345.9 м2

Описание

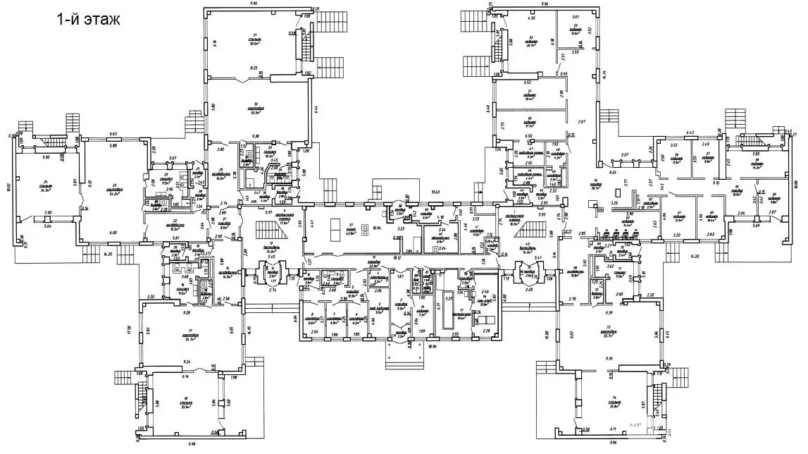
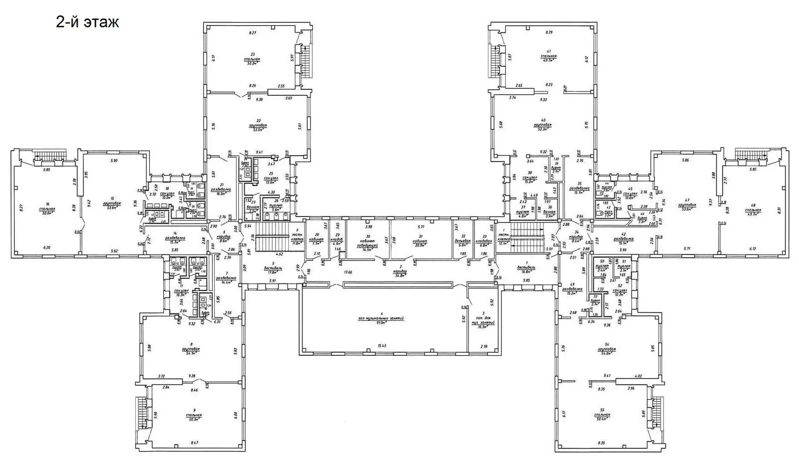
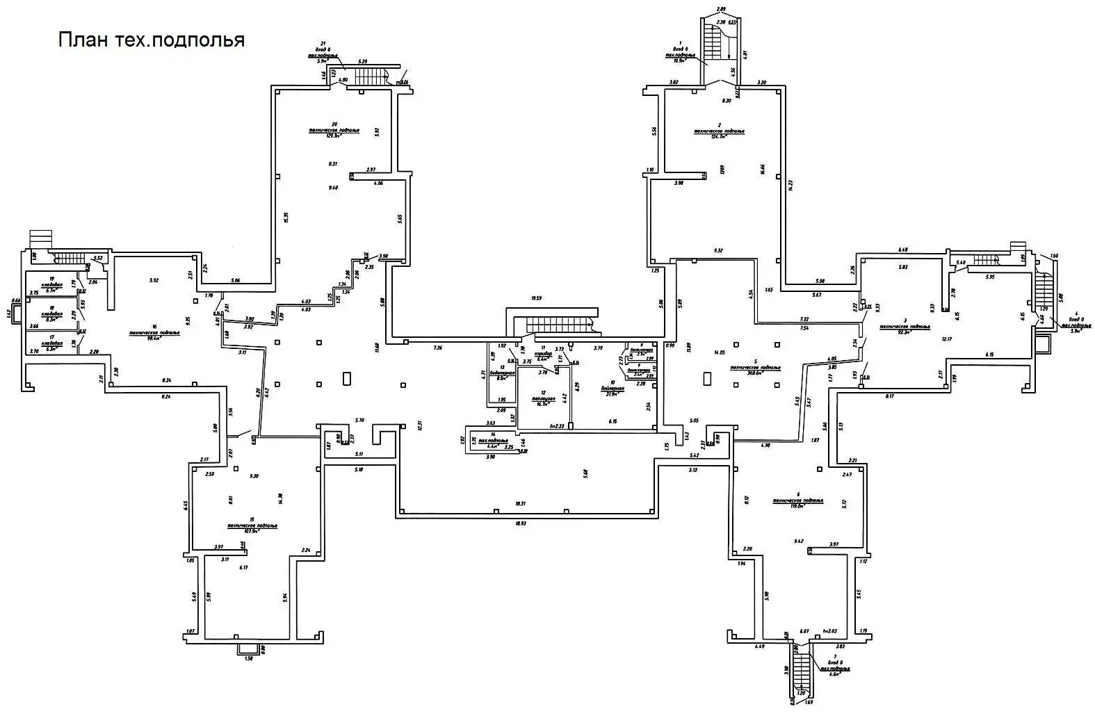
Аренда помещений в здании детского развивающего центра на Некрасова 31 (помещения в специализированном здании под образование и воспитание)

Назначение: Здание специализированное образования и воспитания

Площади: 200 - 3345,9 м2  

Ставка аренды: 9 €/м2, НДС 0%

Подойдет под авто-школу, образовательный центр, детский развивающий центр, компьютерный клуб, репетиторство, курсы, подготовка кадров, лингвистические курсы, детское развлекательное учреждение

Характеристики: 

- Помещения расположены на 1, 2 этажах

- Наличие цокольного этажа

- Удобное расположение

- Хороший ремонт

- Светлые кабинеты

- Санузлы 

- Приточно - вытяжная вентиляция

- Освещение, отопление, оптоволокно

- Наземная парковка

- Детские игровые площадки на территории

- Территория обнесена забором

Удобные подъездные пути – рядом расположены остановки общественного транспорта, развитая инфраструктура. В пешей доступности расположено множество магазинов, торговые центры, кафе, аптеки. В шаговой доступности парк, зоны отдыха разной направленности.

Ваш агент – Андрей Смолка

 

Больше предложений на САЙТЕ  Silvan7800.by 

Присоединяйтесь к нам в соцсетях:

Instagram

Facebook

VK

OK

YouTube

Договор № 18/3а - с 13.02.2024 по 12.02.2026

ООО «Сильван-Инвест», УНП 192927433, лицензия №02240/383, Министерство юстиции РБ, 24.09.2019. 

Код объекта: 15744 Договор с собственником: 18/3а от 2024-02-13 Опубликовано: 09.10.2025 Обновлено: 09.11.2025
Динамика цен за кв. метрДинамика цен
Похожие объекты
Адрес
Комнат
Площадь
Этаж
Цена за м2
Цена
3345.9 м2
1 из 2
30 р. за м2
200 м2
2 из 2
30 р. за м2
9-комнатная
1458 м2
2 из 2
32 р. за м2

Вы просматривали

3 735 р./мес. 32 р. за м2
Центральный р-н
1 384 р./мес. 20 р. за м2
Советский р-н
6 087 р./мес. 30 р. за м2
Советский р-н
585 р./мес. 18 р. за м2
Октябрьский р-н
Офис, 3345.9 м2
Минск, ул. Некрасова, д. 31
6 087 р./мес.
30 р. за м2
Андрей Смолка
Пожалуйста, скажите, что нашли этот объект на Domovita.by
+
Фильтр сохранен