Выберите валюту для сайта:
BYN
Подать БЕСПЛАТНО

Снять офис на пр-т Дзержинского, д. 104 в Минске, 8070BYN, код 16525

288.2 м2 2 этаж из 18 Московский район / Юго-Запад Петровщина
8 070 р./мес.
Офис
Город Минск
Район Московский район
Микрорайон Юго-Запад
Адрес пр-т Дзержинского, д. 104
Метро Петровщина
Время до метро пешком 7 мин.
Время до метро на транспорте 4 мин.
Год постройки 2009 г.
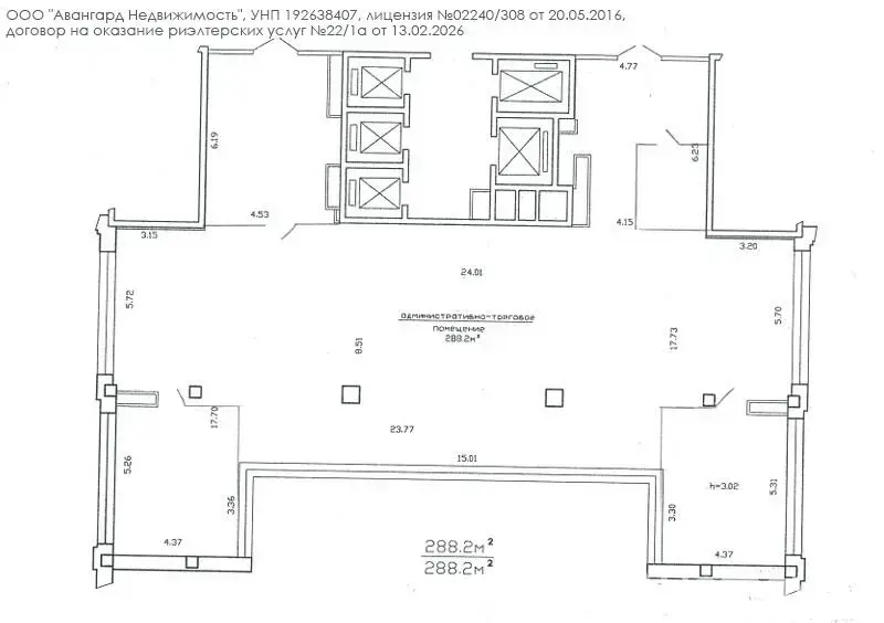
Площадь 288.2 м2
Этаж 2

Описание

Предлагаем Вашему вниманию офисное помещения площадью 288.2 м2, расположенное  в бизнес-центре «Титан» по адресу: г. Минск, пр-т Дзержинского 104.

 

Общие характеристики объекта:

 

- офисное помещение представляет из себя пространство open-space 185.6 м2, две переговорные и комнату приема пищи;

- в помещении выполнен хороший ремонт;

- два санузла: общего пользования и отдельно для арендаторов БЦ;

- присутствует 3 высокоскоростных лифта;

- стихийная парковка возле бизнес-центра и платный паркинг;

- круглосуточная охрана, видеонаблюдение;

- доступ в здание осуществляется 24/7.

 

Техническая база:

 

- доступ в помещение и переговорные комнаты по картам доступа;

- в помещение заведена вода и канализация;

- действующая приточно-вытяжная вентиляция;
- высокоскоростной интернет.

 

В ставку аренды включен НДС

 

Развитая инфраструктура:

 

Объект расположен в 5-ти минутах ходьбы от ст. м. “Петровщина”, в  шаговой доступности находятся остановки общественного транспорта. Рядом с бизнес-центром расположен торговый центр в котором есть пункты общественного питания, кофейни, продуктовые магазины, отделение банка,  салоны красоты, медицинские центры и т.д.

 

Арендатор не оплачивает услуги агентства!

 

Звоните прямо сейчас!

 

Новые объекты в аренде и продаже каждый день

Бесплатный выезд риэлтора для оценки объекта

Поможем продать или купить готовый бизнес в Минске

Код объекта: 16525 Договор с собственником: 22/1а от 2026-02-13 Опубликовано: 20.02.2026 Обновлено: 20.02.2026
Динамика цен за кв. метрДинамика цен
Похожие объекты
Адрес
Комнат
Площадь
Этаж
Цена за м2
Цена
90.35 м2
15 из 18
37 р. за м2
78.3 м2
7 из 26
37 р. за м2

Вы просматривали

8 070 р./мес. 28 р. за м2
Московский р-н
Офис, 288.2 м2
Минск, пр-т Дзержинского, д. 104
8 070 р./мес.
28 р. за м2
Агент
Пожалуйста, скажите, что нашли этот объект на Domovita.by
+
Фильтр сохранен