Выберите валюту для сайта:
BYN
Подать БЕСПЛАТНО

Аренда офиса на пр-т Независимости, д. 44 в Минске, 3920USD, код 15573

245 м2 6 этаж из 6 Советский район / Гикало Площадь Победы
13 780 р./мес.
11 186 р./мес.
Офис
Город Минск
Район Советский район
Микрорайон Гикало
Адрес пр-т Независимости, д. 44
Метро Площадь Победы
Время до метро пешком 4 мин.
Время до метро на транспорте 2 мин.
Год постройки 1955 г.
Площадь 245 м2
Этаж 6

Описание

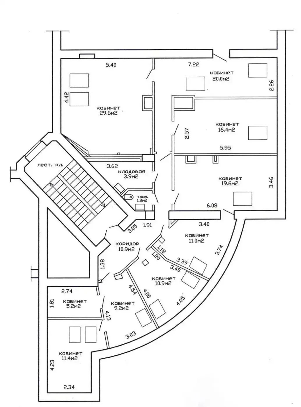
Аренда офисного блока в историческом здании «Вечерний Минск»

Адрес: г. Минск, пр-т Независимости, 44

Площадь: 75 - 245 м2

- Статусная локация

- В 200 метрах находится ст.м. Площадь Победы - 6 остановок общественного транспорта

- Охрана на первом этаже, доступ по чип-карте

- Пожарная и охранная сигнализация

- Видеонаблюдение

- Ремонт

- Сдается с мебелью

- Два санузла

- Душ

- Кухня, оборудованная посудомоечной машиной, микроволновой печью и чайником

- Принудительная вентиляция

- Кондиционеры

- Освещение, отопление, электроснабжение, вода

- Высокоскоростной интернет: оптоволокно, Wi- Fi

- Доступ 24/7

- Развитая инфраструктура: рядом кафе, банки, магазины

- Возможна установка вывески на фасаде здания

Помещение отлично подходит под офис, сферу услуг.

Возможна сдача офисов частями по 95,1 и 149,9 м2.Ставка варьируется в зависимости от снимаемой площади.

Арендатор не оплачивает  услуги агентства!

Код объекта: 15573 Договор с собственником: 60/3а от 2025-09-15 Опубликовано: 18.09.2025 Обновлено: 25.02.2026
Динамика цен за кв. метрДинамика цен
Похожие объекты
Адрес
Комнат
Площадь
Этаж
Цена за м2
Цена
149.9 м2
6 из 6
49 р. за м2
149.9 м2
6 из 6
46 р. за м2
231 м2
6 из 7
47 р. за м2
95.1 м2
6 из 6
77 р. за м2

Вы просматривали

11 186 р./мес. 46 р. за м2
Советский р-н
Офис, 245 м2
Минск, пр-т Независимости, д. 44
11 186 р./мес.
46 р. за м2
Анна
Пожалуйста, скажите, что нашли этот объект на Domovita.by
+
Фильтр сохранен