Снять офис на пр-т Независимости, д. 58 в Минске, 9137EUR, код 12571

365.5 м2 1 этаж из 4 Советский район / Гикало Площадь Якуба Коласа
30 127 р./мес.
Офис
Город Минск
Район Советский район
Микрорайон Гикало
Адрес пр-т Независимости, д. 58
Метро Площадь Якуба Коласа
Время до метро пешком 6 мин.
Время до метро на транспорте 4 мин.
Площадь 365.5 м2
Этаж 1
Удобства
Круглосуточный доступ
Отдельный вход

Описание

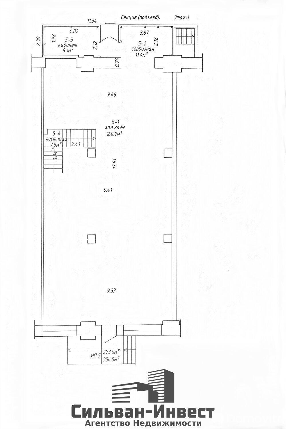
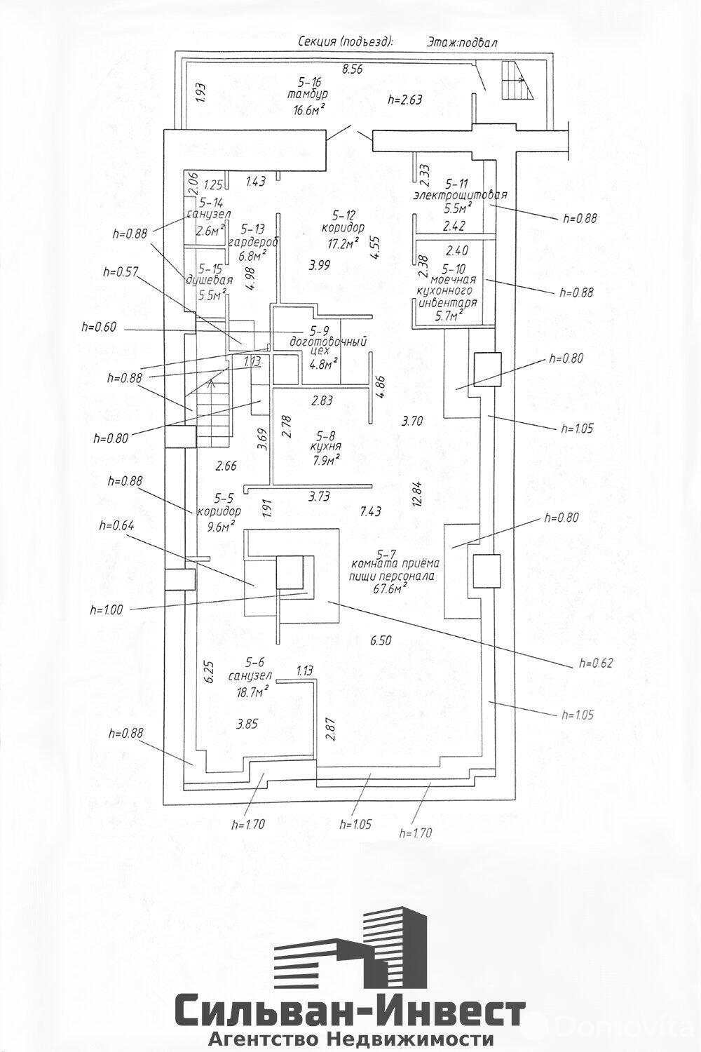
Аренда торгово - административного помещения.

Адрес: г. Минск, ул. Независимости, д. 58

Площадь: 365,5 м2

Аренда 2- этажного торгово - административного помещения, расположенного в подвальном и на 1 этажах четырехэтажного здания 1946 года постройки,

Подходит под торговлю, сферу услуг, офисы, общепит.

Характеристики:

- Статусная локация

- Отдельный вход

- Электричество

- Водоснабжение

- Отопление

- Вентиляция

- Отличные подъездные пути

- Доступ 24/7

- Санузел

- Рампа

- Повышенный пешеходный и покупательский траффик

В пешей доступности находятся ст. метро Академия наук и Якуба Коласа, остановки общественного транспорта.

Арендатор не оплачивает услуги риэлтерской организации!

Ваш агент – Андрей Смолка

Присоединяйтесь к нам в соцсетях:

Instagram

Facebook

VK

OK

YouTube

Договор № 36/3а - с 20.03.2024 по 19.03.2026

ООО «Сильван-Инвест», УНП 192927433, лицензия №02240/383, Министерство юстиции РБ, 24.09.2019.

Код объекта: 12571 Договор с собственником: 36/3а от 2024-03-20 Опубликовано: 24.07.2024 Обновлено: 27.04.2026
Динамика цен за кв. метрДинамика цен
Похожие объекты
Адрес
Комнат
Площадь
Этаж
Цена за м2
Цена
32.3 м2
1 из 3
45 р. за м2
26 м2
3 из 3
17 р. за м2
228.9 м2
3 из 3
17 р. за м2
149.9 м2
6 из 6
48 р. за м2
447.3 м2
2 из 8
32 р. за м2

Вы просматривали

30 127 р./мес. 82 р. за м2
Советский р-н
Офис, 365.5 м2
Минск, пр-т Независимости, д. 58
30 127 р./мес.
82 р. за м2
Андрей Смолка
Пожалуйста, скажите, что нашли этот объект на Domovita.by
+
Фильтр сохранен