Выберите валюту для сайта:
BYN
Подать БЕСПЛАТНО

Снять офис на пр-т Независимости, д. 58/2 в Минске, 5100USD, код 15605

3680 м2 1 этаж из 4 Советский район / Гикало Площадь Якуба Коласа
21 830 р./мес.
14 553 р./мес.
Офис
Город Минск
Район Советский район
Микрорайон Гикало
Адрес пр-т Независимости, д. 58/2
Метро Площадь Якуба Коласа
Время до метро пешком 7 мин.
Время до метро на транспорте 4 мин.
Год постройки 1956 г.
Площадь 3680 м2
Этаж 1

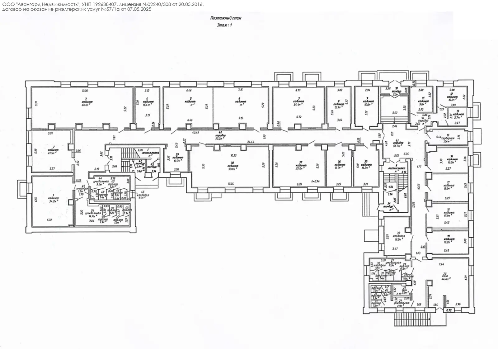
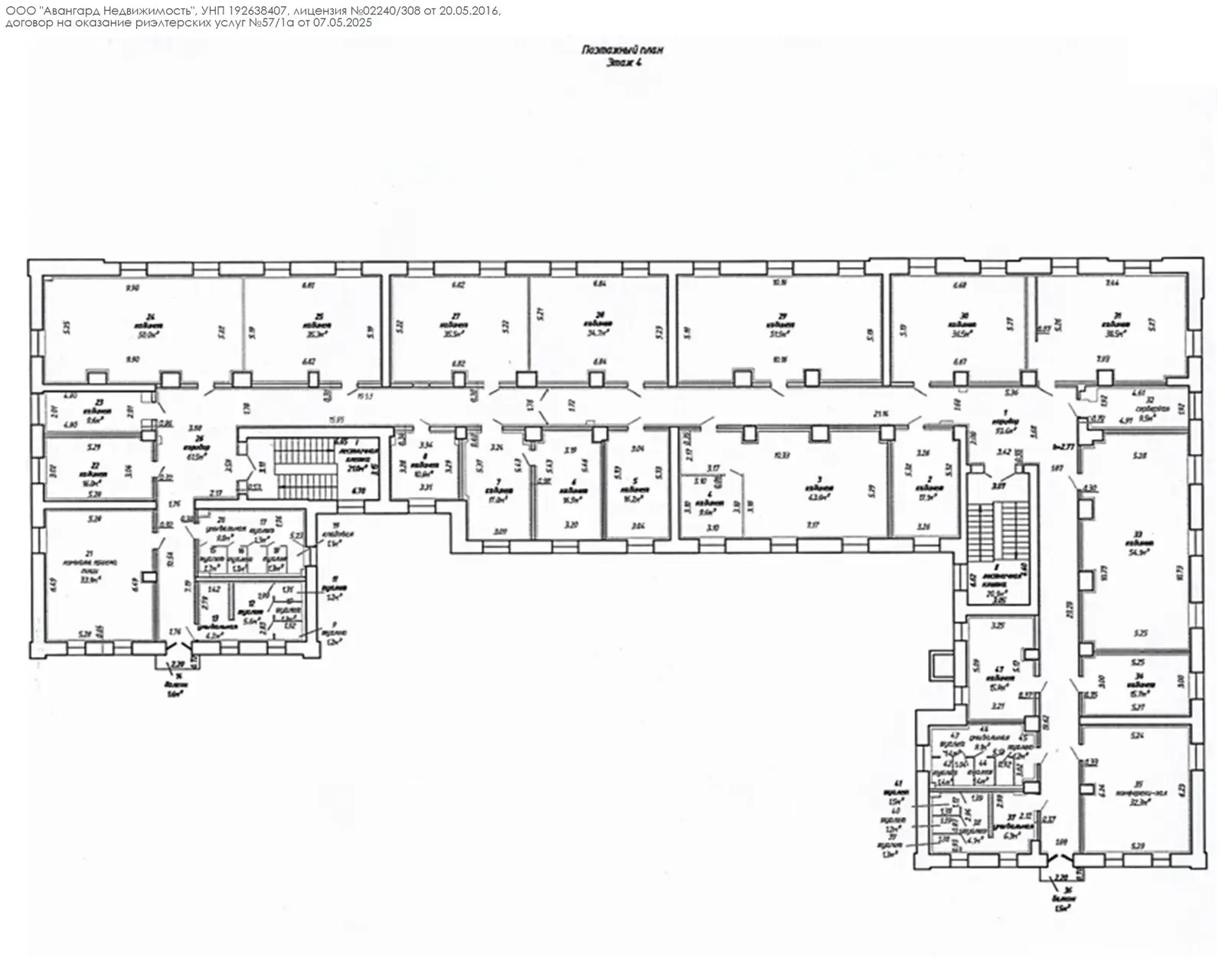
Описание

Предлагаем Вашему вниманию комфортабельные офисные помещения, расположенные по адресу: г. Минск, пр-т Независимости, 58/2.

 

Объект представляет собой 4-х этажное административное здание. Рассматривается вариант поэтажной аренды (850-900 кв. м) или здания целиком (3680 кв. м).

 

Общие характеристики объекта:

 

- формат комбинированной системы планировки (кабинетная и open space);

- в помещениях выполнен хороший ремонт;

- рабочие зоны оборудованы кондиционерами;

- система вентиляции с естественным побуждением;

- заведено оптоволокно;

- СКУД;

- помещения с высоким уровнем естественного освещения;

- высота потолков в кабинетах – 2.70-2.95 м;

- каждый этаж оборудован ИПУ;

- раздельные санузлы на каждом этаже (есть душевые);

- на каждом этаже имеется помещение под кухню;

- доступ в здание 24/7;

- видеонаблюдение по периметру здания, охраняется;

- имеется возможность организовать собственную парковку на 15-25 м-м.

 

Инфраструктура:

 

720 метров до остановок общественного транспорта.

590 метров до ст. м «Площадь Якуба Коласа».

Вблизи здания имеется несколько плоскостных парковок (платных).

В шаговой доступности есть заведения общественного питания, продовольственные/непродовольственные магазины, банк, аптека и т.д.

 

Арендатор не оплачивает услуги агентства.

 

Ставка указана без учета НДС.

 

Звоните!

Код объекта: 15605 Договор с собственником: 57/1а от 2025-05-07 Опубликовано: 22.09.2025 Обновлено: 09.02.2026
Динамика цен за кв. метрДинамика цен
Похожие объекты
Адрес
Комнат
Площадь
Этаж
Цена за м2
Цена
850 м2
1 из 4
20 р. за м2
3410 м2
23 р. за м2
3410 м2
17 р. за м2

Вы просматривали

14 553 р./мес. 17 р. за м2
Советский р-н
4 675 р./мес. 40 р. за м2
Партизанский р-н
2 728 р./мес. 44 р. за м2
Партизанский р-н
68 664 р./мес. 67 р. за м2
Центральный р-н
2 640 р./мес. 24 р. за м2
Центральный р-н
Офис, 3680 м2
Минск, пр-т Независимости, д. 58/2
14 553 р./мес.
17 р. за м2
Владислав
Пожалуйста, скажите, что нашли этот объект на Domovita.by
+
Фильтр сохранен