Выберите валюту для сайта:
BYN
Подать БЕСПЛАТНО

Аренда офиса на пр-т Независимости, д. 86/Б в Минске, 13934EUR, код 15740

1161.2 м2 Первомайский район / Парниковая Московская
46 900 р./мес.
Офис
Город Минск
Район Первомайский район
Микрорайон Парниковая
Адрес пр-т Независимости, д. 86/Б
Метро Московская
Время до метро пешком 6 мин.
Время до метро на транспорте 4 мин.
Площадь 1161.2 м2

Описание

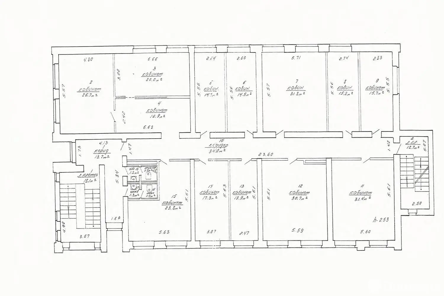
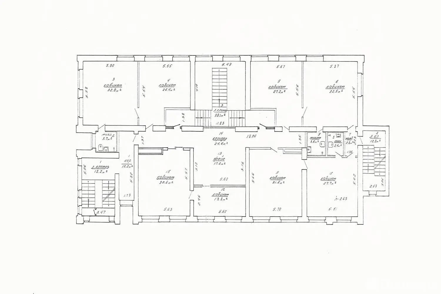
Аренда административных помещений рядом с Парком Челюскинцев
Адрес: г. Минск, ул. Независимости, 86 Б
Площадь общая: 200- 1161,2 м2
Стоимость аренды: 12€ + НДС

Административные помещения расположены на 1, 2 и 3 этажах отдельно стоящего пятиэтажного кирпичного административного здания 1996 года постройки. Территория огорожена, въезд через шлагбаум.

Характеристики:
- Офисы расположены на 1,2 и 3 этажах
- Статусная локация
- Удобное расположение
- Близость к центру города
- Хороший ремонт
- Высокая инсоляция
- Обеденная зона
- Санузлы, душевые
- Приточно-вытяжная вентиляция
- Освещение, отопление, оптоволокно
- Наземная парковка
- Рядом лесной массив Парк отдыха Челюскинцев и плотная жилая застройка
Удобные подъездные пути – напротив расположены пр. Независимости, остановки общественного транспорта и метро Парк Челюскинцев.
В шаговой доступности расположены множество магазинов, кафе, кофеен, рестораны, аптеки- развитая инфраструктура.

Арендатор не оплачивает услуги риэлтерской организации!

Ваш агент – Андрей Смолка
Больше предложений на САЙТЕ Silvan7800.by
Присоединяйтесь к нам в соцсетях:
Instagram
Facebook
VK
OK
YouTube

Договор № 153/3а от 27.12.2024 по 26.12.2026
ООО «Сильван - Инвест», УНП 192927433, лицензия №02240/383, Министерство юстиции РБ, 24.09.2019.

Код объекта: 15740 Договор с собственником: 153/3а от 2024-12-27 Опубликовано: 09.10.2025 Обновлено: 09.02.2026
Динамика цен за кв. метрДинамика цен
Похожие объекты
Адрес
Комнат
Площадь
Этаж
Цена за м2
Цена
32.3 м2
1 из 3
45 р. за м2
3-комнатная
96 м2
15 из 15
20 р. за м2
365.5 м2
1 из 4
84 р. за м2
26 м2
3 из 3
17 р. за м2
228.9 м2
3 из 3
17 р. за м2

Вы просматривали

46 900 р./мес. 40 р. за м2
Первомайский р-н
10 336 р./мес. 32 р. за м2
Советский р-н
5 884 р./мес. 44 р. за м2
Советский р-н
Офис, 1161.2 м2
Минск, пр-т Независимости, д. 86/Б
46 900 р./мес.
40 р. за м2
ООО "Сильван-Инвест"
Пожалуйста, скажите, что нашли этот объект на Domovita.by
+
Фильтр сохранен