Выберите валюту для сайта:
BYN
Подать БЕСПЛАТНО

Аренда офиса на пр-т Партизанский, д. 6А в Минске, 1204BYN, код 16009

80.3 м2 2 этаж из 2 Ленинский район / Серебрянка Пролетарская
1 204 р./мес.
Офис
Город Минск
Район Ленинский район
Микрорайон Серебрянка
Адрес пр-т Партизанский, д. 6А
Метро Пролетарская
Время до метро пешком 9 мин.
Время до метро на транспорте 5 мин.
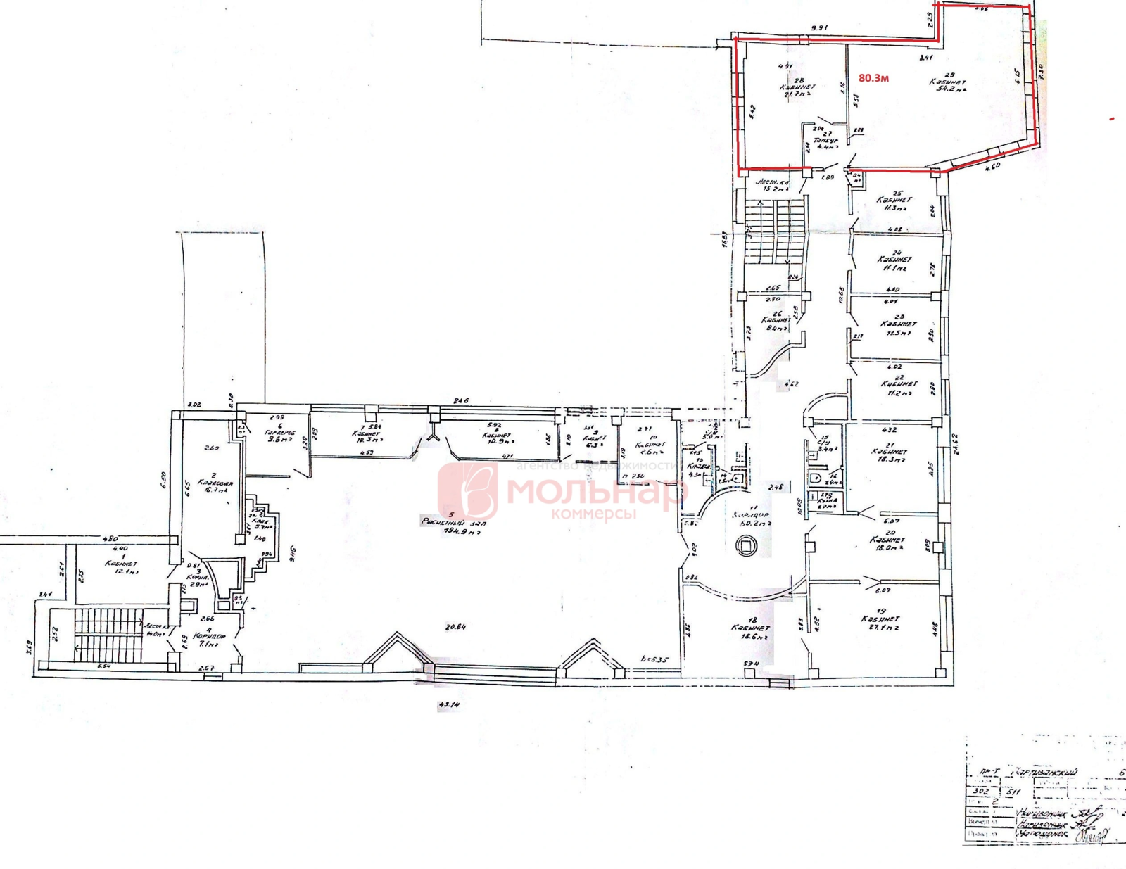
Площадь 80.3 м2
Помещений 1
Этаж 2

Описание

Сдается в аренду офисный блок по адресу пр-т Партизанский 6А. Расположен на втором этаже административного здания.Состоит из двух кабинетов и тамбура общей площадью 80.3 метра. Стоимость квадратного метра 15 рублей(НДС включен)


- транспортное сообщение
- доступ 24/7
- ст.м. Пролетарская в шаговой доступности

Отличный вариант для офиса вашей компании!

Вы не оплачиваете риэлтерские услуги!

Код объекта: 16009 Договор с собственником: 178/1А Опубликовано: 11.11.2025 Обновлено: 11.11.2025
Динамика цен за кв. метрДинамика цен
Похожие объекты
Адрес
Комнат
Площадь
Этаж
Цена за м2
Цена
1-комнатная
82 м2
2 из 2
15 р. за м2

Вы просматривали

1 230 р./мес. 15 р. за м2
Ленинский р-н
1 204 р./мес. 15 р. за м2
Ленинский р-н
Офис, 80.3 м2
Минск, пр-т Партизанский, д. 6А
1 204 р./мес.
15 р. за м2
Александра
Пожалуйста, скажите, что нашли этот объект на Domovita.by
+
Фильтр сохранен