Выберите валюту для сайта:
BYN
Подать БЕСПЛАТНО

Аренда офиса на ул. Академика Купревича, д. 1/1 в Минске, 15880USD, код 14093

1588 м2 10 этаж из 16 Первомайский район / Уручье Борисовский тракт
45 984 р./мес.
Офис
Город Минск
Район Первомайский район
Микрорайон Уручье
Адрес ул. Академика Купревича, д. 1/1
Метро Борисовский тракт
Время до метро пешком 22 мин.
Время до метро на транспорте 12 мин.
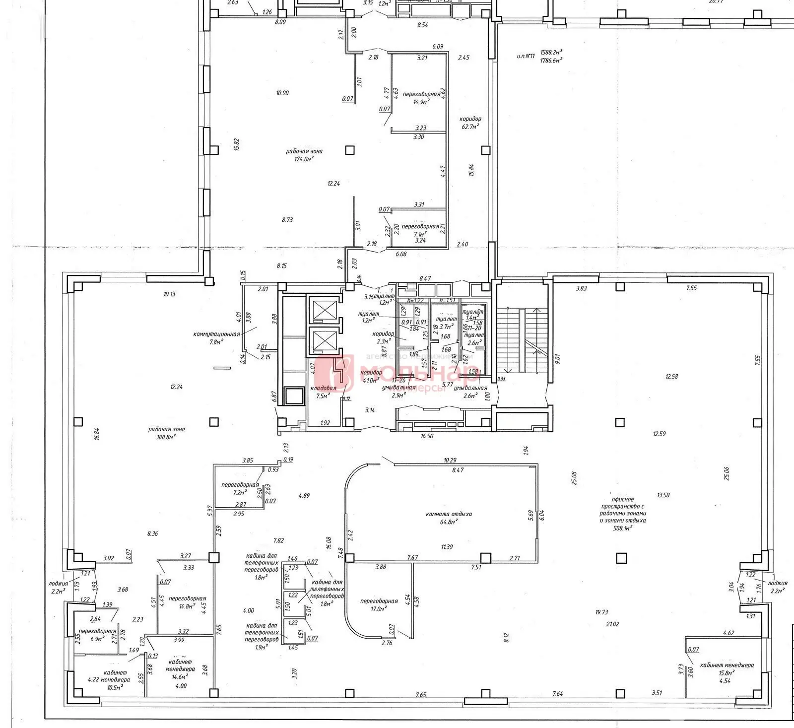
Площадь 1588 м2
Помещений 1
Этаж 10

Описание

Сдается в аренду офисное пространство, находящееся в бизнес центре по адресу г. Минск, ул. Купревича, 1. Офисное пространство абсолютно с новым, свежим ремонтом. Все помещения оснащены мебелью и необходимой техникой. Есть отведенные места отдыха и приема пищи. Современная система кондиционирования. Хорошие мощности. Здание располагается в месте с хорошим транспортным сообщением. Рядом остановки городского транспорта и съезд с кольцевой. Перед зданием располагается большая парковка автомобилей. Размер арендной платы составляет 10 долл/м2 без НДС. Вы не оплачиваете услуги риэлтерской организации.

Код объекта: 14093 Договор с собственником: 352/1А Опубликовано: 05.03.2025 Обновлено: 05.03.2025
Динамика цен за кв. метрДинамика цен
Похожие объекты
Адрес
Комнат
Площадь
Этаж
Цена за м2
Цена
1-комнатная
745 м2
1 из 1
20 р. за м2
1134.5 м2
3 из 5
24 р. за м2

Вы просматривали

45 984 р./мес. 29 р. за м2
Первомайский р-н
Офис, 1588 м2
Минск, ул. Академика Купревича, д. 1/1
45 984 р./мес.
29 р. за м2
Александра
Пожалуйста, скажите, что нашли этот объект на Domovita.by
+
Фильтр сохранен