Выберите валюту для сайта:
BYN
Подать БЕСПЛАТНО

Снять офис на ул. Быховская, д. 37 в Минске, 960USD, код 16324

94.5 м2 Октябрьский район / Воронянского Ковальская слобода
2 739 р./мес.
Офис
Город Минск
Район Октябрьский район
Микрорайон Воронянского
Адрес ул. Быховская, д. 37
Метро Ковальская слобода
Время до метро пешком 6 мин.
Время до метро на транспорте 3 мин.
Год постройки 2008 г.
Площадь 94.5 м2

Описание

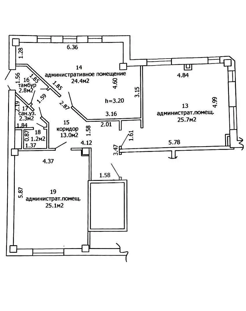
Предлагается в аренду изолированное офисное помещение с 3 отдельными кабинетами общей площадью 94.5 м2 на цокольном этаже. Отличное расположение в непосредственной близости от станции метро «Ковальская Слобода».                                         

 

Планировка и коммуникации:

  • 3 отдельных кабинета;
  • Небольшая кладовая комната для хранения;
  • Современная отделка, с ремонтом.
  • Собственный санузел;
  • Подведен оптоволоконный кабель для высокоскоростного интернета;
  • Телефонные линии.
  • Коммунальные платежи: 400-600 руб./мес. (лето), 700-900 руб./мес. (зима).

 

Безопасность и доступ:

  • Круглосуточный доступ в здание;
  • Рядом парковка;
  • Пожарная сигнализация;
  • Видеодомофон;
  • Около станции метро «Ковальская Слобода».

 

Последними арендаторами были: Розничный китайский магазин и отделение «Белпочты».

Больше объявлений тут: www.instagram.com/garant.arenda

Напишите нам в удобный для Вас мессенджер:

Viber | Telegram | WhatsApp

Ответим на Ваши вопросы, предоставим всю необходимую дополнительную информацию.

ООО «Артель Недвижимость»

УНП 193820882

Лицензия Министерства Юстиции №48250000081913 06.03.2025 г.

Договор №15/2а от 12.01.2026

Код объекта: 16324 Договор с собственником: 15/2а от 2026-01-12 Опубликовано: 23.02.2026 Обновлено: 03.03.2026
Динамика цен за кв. метрДинамика цен
Похожие объекты
Адрес
Комнат
Площадь
Этаж
Цена за м2
Цена
94.5 м2
1 из 9
29 р. за м2
94.5 м2
1 из 9
32 р. за м2

Вы просматривали

4 640 р./мес. 32 р. за м2
Советский р-н
2 739 р./мес. 29 р. за м2
Октябрьский р-н
1 837 р./мес. 35 р. за м2
Фрунзенский р-н
3 125 р./мес. 35 р. за м2
Фрунзенский р-н
Офис, 94.5 м2
Минск, ул. Быховская, д. 37
2 739 р./мес.
29 р. за м2
Недвижимость
Пожалуйста, скажите, что нашли этот объект на Domovita.by
+
Фильтр сохранен