Выберите валюту для сайта:
BYN
Подать БЕСПЛАТНО

Снять офис на ул. Фабрициуса, д. 8/Б/1 в Минске, 6160BYN, код 16472

166.5 м2 4 этаж из 4 Московский район / Московская Институт Культуры
6 160 р./мес.
Офис
Город Минск
Район Московский район
Микрорайон Московская
Адрес ул. Фабрициуса, д. 8/Б/1
Метро Институт Культуры
Время до метро пешком 6 мин.
Время до метро на транспорте 4 мин.
Год постройки 2004 г.
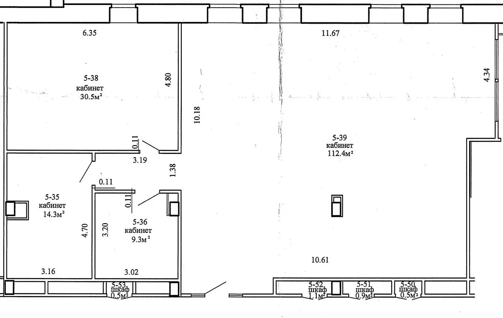
Площадь 166.5 м2
Этаж 4

Описание

Аренда помещения общей площадью  166.5кв.м. Грузовой и пассажирский лифты. Кондиционеры в каждом помещении. С разделением на кабинеты, с кухней и серверной. Ставка указана с НДС и эксплуатационными расходами + отдельно коммунальные.

Код объекта: 16472 Договор с собственником: 61/1а от 2024-04-05 Опубликовано: 11.02.2026 Обновлено: 11.02.2026
Динамика цен за кв. метрДинамика цен
Похожие объекты
Адрес
Комнат
Площадь
Этаж
Цена за м2
Цена
2149.6 м2
1 из 8
35 р. за м2
56.8 м2
2 из 4
33 р. за м2
148.5 м2
4 из 4
37 р. за м2
53.7 м2
2 из 4
33 р. за м2
87.2 м2
4 из 4
37 р. за м2

Вы просматривали

6 160 р./мес. 37 р. за м2
Московский р-н
10 209 р./мес. 81 р. за м2
Центральный р-н
5 540 р./мес. 81 р. за м2
Центральный р-н
Офис, 166.5 м2
Минск, ул. Фабрициуса, д. 8/Б/1
6 160 р./мес.
37 р. за м2
Сергей
Пожалуйста, скажите, что нашли этот объект на Domovita.by
+
Фильтр сохранен