Выберите валюту для сайта:
BYN
Подать БЕСПЛАТНО

Снять офис на ул. Интернациональная, д. 3 в Минске, 3080EUR, код 15685

270 м2 2 этаж из 5 Центральный район / Ленина Немига
10 367 р./мес.
Офис
Город Минск
Район Центральный район
Микрорайон Ленина
Адрес ул. Интернациональная, д. 3
Метро Немига
Время до метро пешком 7 мин.
Время до метро на транспорте 4 мин.
Год постройки 2023 г.
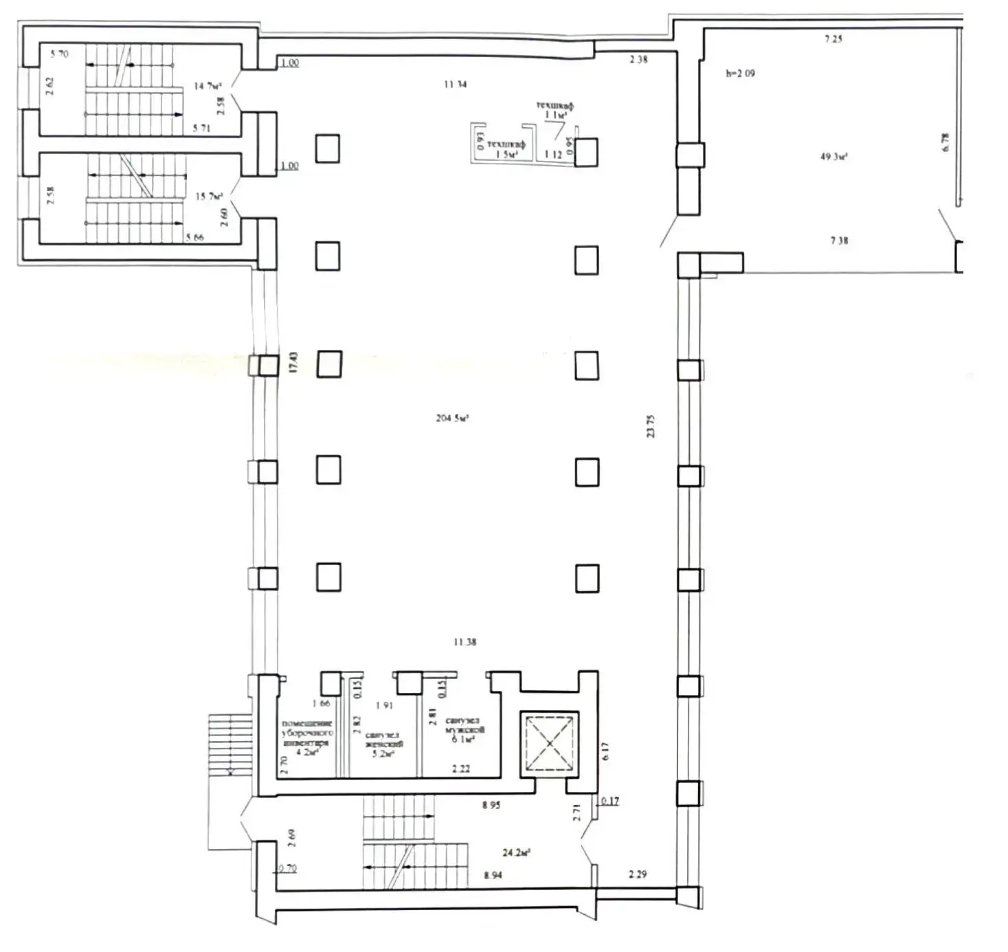
Площадь 270 м2
Этаж 2

Описание

Предлагаем в аренду офис 220...270 м.кв. на 2 этаже в современном новом здании на ул. Интернациональная, 3 в историческом квартале Минска (Верхний Город).
Соответствующее всем современным стандартам здание после масштабной реконструкции в 2023 году готово принять арендаторов.
Отличное расположение рядом с пешеходной исторической частью города. 
Очень активный автомобильный и пешеходный трафик.
Возможно выделение собственной террасы в атриуме для размещения лаунж-зоны или кафе для сотрудников.
Все коммуникации - вода, канализация, санузлы.

Гоовая к заезду свежая отделка. 
Круглосуточный доступ.
Крытый паркинг для гостей.
Пространство отлично подойдет под офис, торговое пространство, бутик, выставочное пространство, детский центр, барбер-шоп, обучающий центр и прочие услуги.

Коммунальные и эксплуатационные затраты: зима - ок. 8,5 руб./м2, лето - ок. 6,5 руб./м2.
Аренда осуществляется с НДС. 
Звоните!
---
ООО «ЭТАЖИ юнайтед»
УНП: 193673318
Договор № 86/1а от 27.06.2024
Лицензия на оказание риэлтерских услуг №02240/460 МЮ РБ от 03.04.2023

Код объекта: 15685 Договор с собственником: №86/1а от 2024-06-27 Опубликовано: 01.10.2025 Обновлено: 02.03.2026
Динамика цен за кв. метрДинамика цен
Похожие объекты
Адрес
Комнат
Площадь
Этаж
Цена за м2
Цена
3680.5 м2
1 из 6
50 р. за м2
3680.5 м2
1 из 6
50 р. за м2
500 м2
1 из 5
84 р. за м2
667 м2
3 из 5
50 р. за м2
287.4 м2
3 из 5
50 р. за м2

Вы просматривали

10 367 р./мес. 47 р. за м2
Центральный р-н
684 864 р./мес. 46 р. за м2
Центральный р-н
Офис, 270 м2
Минск, ул. Интернациональная, д. 3
10 367 р./мес.
47 р. за м2
Пётр
Пожалуйста, скажите, что нашли этот объект на Domovita.by
+
Фильтр сохранен