Выберите валюту для сайта:
BYN
Подать БЕСПЛАТНО

Аренда офиса на ул. Интернациональная, д. 38 в Минске, 77440EUR, код 15953

880 м2 1 этаж из 8 Центральный район / Ленина Октябрьская
260 655 р./мес.
Офис
Город Минск
Район Центральный район
Микрорайон Ленина
Адрес ул. Интернациональная, д. 38
Метро Октябрьская
Время до метро пешком 3 мин.
Время до метро на транспорте 2 мин.
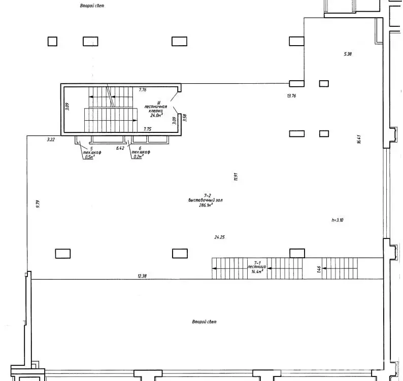
Площадь 880 м2
Этаж 1

Описание

Преимущества комплекса «Капитал Палас»

  • Расположен в самом центре Минска — на Октябрьской площади

  • Развитая инфраструктура и удобное транспортное сообщение

  • Двухуровневый подземный паркинг, оборудованный системой видеонаблюдения.

  • Круглосуточная доступность

  • Для аренды доступны как небольшие помещения для малых организаций, так и целые этажи для крупных компаний!

  • Про помещение:

    • Площадь: первый этаж — 600 м2, мезонин — 280 м2

    • Высота потолков:

      • от пола первого этажа до мезонина — 3,67 м

      • от мезонина до перекрытия второго этажа — 3,1 м

      • общая высота от пола первого этажа до перекрытия второго — 7,05 м

    • Отдельный вход

    • Функциональность: идеально подходит для выставочного зала, сферы услуг, торговли, офиса или шоу-рума в торговой галерее

    • Панорамный вид на Октябрьскую площадь

    • Современные инженерные системы: кондиционирование и вентиляция

    Код объекта: 15953 Опубликовано: 31.10.2025 Обновлено: 02.03.2026
    Динамика цен за кв. метрДинамика цен
    Похожие объекты
    Адрес
    Комнат
    Площадь
    Этаж
    Цена за м2
    Цена
    2676.5 м2
    5 из 8
    73 р. за м2
    10000 м2
    5 из 8
    61 р. за м2
    262.1 м2
    4 из 8
    61 р. за м2
    2133 м2
    5 из 8
    61 р. за м2
    2530 м2
    2 из 8
    61 р. за м2

    Вы просматривали

    10 488 р./мес. 40 р. за м2
    Центральный р-н
    46 301 р./мес. 249 р. за м2
    Центральный р-н
    260 655 р./мес. 296 р. за м2
    Центральный р-н
    2 562 р./мес. 42 р. за м2
    Центральный р-н
    Офис, 880 м2
    Минск, ул. Интернациональная, д. 38
    260 655 р./мес.
    296 р. за м2
    Контакт-центр
    Пожалуйста, скажите, что нашли этот объект на Domovita.by
    +
    Фильтр сохранен