Выберите валюту для сайта:
BYN
Подать БЕСПЛАТНО

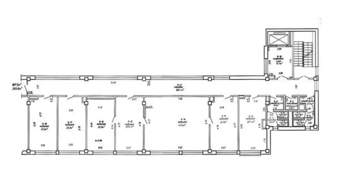
Аренда офиса на ул. Калинина, д. 7/Б в Минске, 2830EUR, код 15146

283 м2 1 этаж из 4 Первомайский район / Калинина Парк Челюскинцев
9 682 р./мес.
Офис
Город Минск
Район Первомайский район
Микрорайон Калинина
Адрес ул. Калинина, д. 7/Б
Метро Парк Челюскинцев
Время до метро пешком 7 мин.
Время до метро на транспорте 4 мин.
Площадь 283 м2
Этаж 1

Описание

Шаговая доступность к ст. м. Парк Челюскинцев.

 

Офис кабинетного типа;

Система кондиционирования;

Окна- стеклопакеты;

Двери- дерево;

Полы- плитка, керамогранит, ламинат;

Подземная парковка и много парковочных мест;

Приточно-вытяжная вентиляция с механическим и естественным побуждением движения воздуха;

дополнительно установлено повышенное количество кондиционеров;

остановки общественного транспорта.

Лицензия: №02240/362 МЮ РБ, 31.07.2018

Код объекта: 15146 Договор с собственником: 100/1А от 2025-07-10 Опубликовано: 16.07.2025 Обновлено: 17.03.2026
Динамика цен за кв. метрДинамика цен
Похожие объекты
Адрес
Комнат
Площадь
Этаж
Цена за м2
Цена
283 м2
1 из 4
34 р. за м2

Вы просматривали

1 429 р./мес. 30 р. за м2
Центральный р-н
10 107 р./мес. 24 р. за м2
Центральный р-н
9 682 р./мес. 34 р. за м2
Первомайский р-н
4 367 р./мес. 36 р. за м2
Октябрьский р-н
5 953 р./мес. 65 р. за м2
Московский р-н
4 792 р./мес. 41 р. за м2
Партизанский р-н
1 665 р./мес. 9 р. за м2
Октябрьский р-н
Офис, 283 м2
Минск, ул. Калинина, д. 7/Б
9 682 р./мес.
34 р. за м2
Фаттория Плюс
Пожалуйста, скажите, что нашли этот объект на Domovita.by
+
Фильтр сохранен