Выберите валюту для сайта:
BYN
Подать БЕСПЛАТНО
Объект в архиве
К результатам поиска

Аренда офиса на ул. Киселева, д. 12 в Минске, 2724BYN, код 15845

178.5 м2 3 этаж из 3 Центральный район / Киселева Площадь Победы
Объект в архиве
Уважаемые пользователи, данное объявление больше не актуально. Поэтому мы убрали все контакты продавца.
Продолжить поиск
Офис
Город Минск
Район Центральный район
Микрорайон Киселева
Адрес ул. Киселева, д. 12
Метро Площадь Победы
Время до метро пешком 8 мин.
Время до метро на транспорте 5 мин.
Год постройки 1975 г.
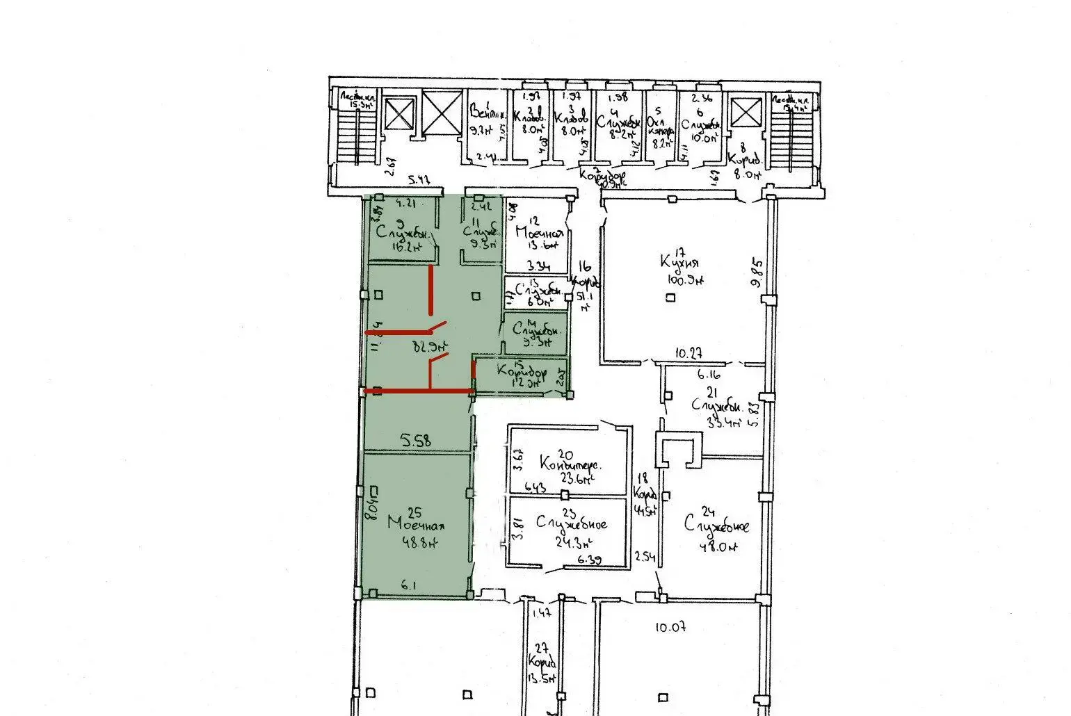
Площадь 178.5 м2
Этаж 3

Описание

Производственные помещения расположены на 3-м этаже административного здания в самом центре Минска и подойдут для размещения чистого производства.

 

В здании имеется грузовой лифт, рампа для грузового транспорта. Возможная нагрузка на электрическую сеть до 100 кВт.

Проведены коммуникации: водоснабжение, канализация, отопление, электроснабжение.

Есть возможность изменения планировки под проект арендатора.

 

На период ремонтных работ предоставляется пониженная арендная ставка.

 

Выгодное месторасположение в 5 мин. от ст.м. Площадь Победы, удобное транспортное сообщение, охраняемая территория.

 

Позвоните нам и узнайте более подробную информацию!

 

Арендатор не оплачивает услуги агентства!

Код объекта: 15845 Договор с собственником: 51/2а от 2025-02-17 Опубликовано: 18.10.2025 Обновлено: 20.02.2026
Динамика цен за кв. метрДинамика цен
Похожие объекты
Адрес
Комнат
Площадь
Этаж
Цена за м2
Цена
80.4 м2
1 из 8
40 р. за м2
198.9 м2
1 из 8
57 р. за м2
204.2 м2
1 из 8
34 р. за м2
115.3 м2
1 из 8
63 р. за м2
95.3 м2
1 из 8
43 р. за м2

Вы просматривали

594 р./мес. 17 р. за м2
Московский р-н
4 078 р./мес. 43 р. за м2
Центральный р-н
23 885 р./мес. 26 р. за м2
Центральный р-н
23 898 р./мес. 25 р. за м2
Центральный р-н
6 552 р./мес. 20 р. за м2
Московский р-н
722 р./мес. 11 р. за м2
Московский р-н
+
Фильтр сохранен