Выберите валюту для сайта:
BYN
Подать БЕСПЛАТНО

Снять офис на ул. Нарочанская, д. 11 в Минске, 8370USD, код 15049

930 м2 1 этаж из 5 Центральный район / Веснянка
23 885 р./мес.
Офис
Город Минск
Район Центральный район
Микрорайон Веснянка
Адрес ул. Нарочанская, д. 11
Год постройки 1994 г.
Площадь 930 м2
Этаж 1

Описание

Офисное помещение 930 м.кв., расположенное по адресу: г. Минск, ул. Нарочанская, 11. Бизнес-центр «Нарочанский» расположен в 7-ми минутах езды от центра Минска, в 2-х минутах ходьбы от проспекта Победителей. Просторная парковка вблизи здания. Предоставляются охраняемые парковочные места.

Рядом с БЦ находятся пункты общественного питания, продуктовые магазины, кофе-поинты, ТЦ «Арена Сити», «Минск Арена». В помещениях выполнен качественный ремонт.

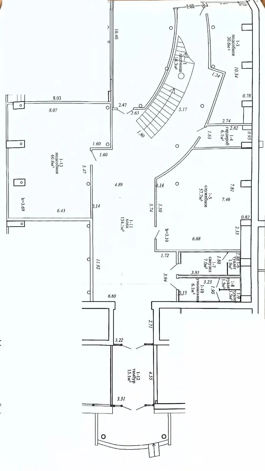
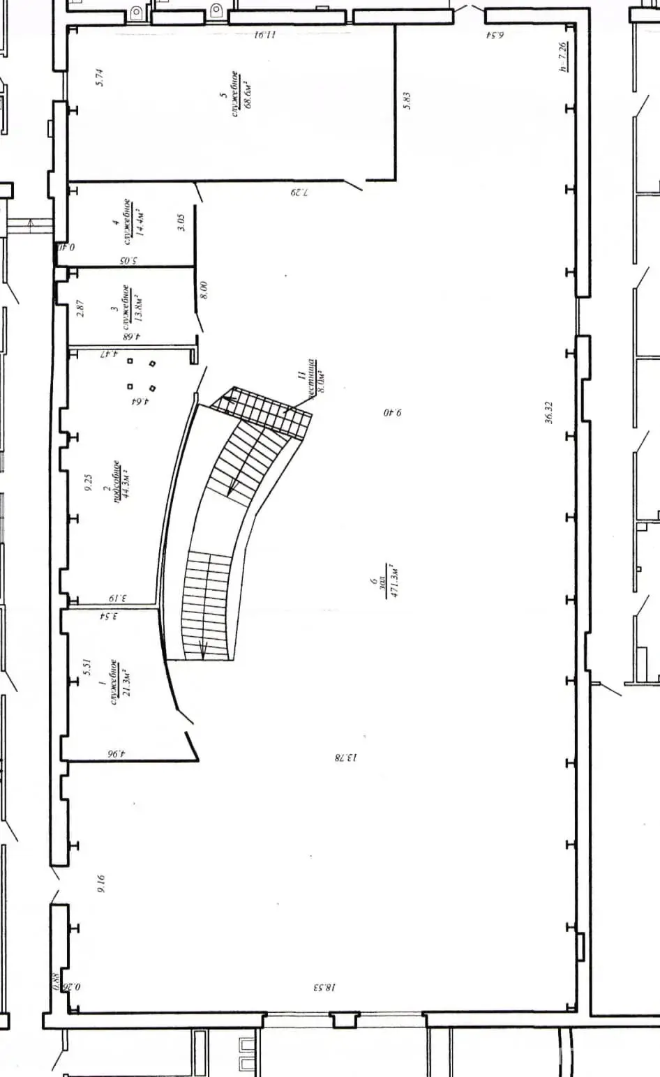
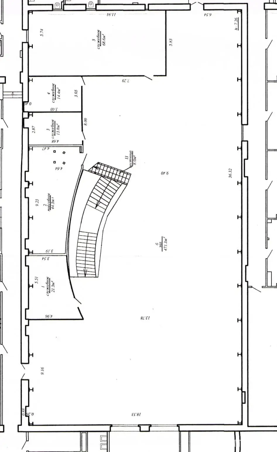
На 1-м этаже офисный блок около 300 кв.м.  На 2-м этаже офисный блок общей площадью 630 кв.м. Стоимость 1 м.кв. - 25 руб.

Первый этаж состоит из: зоны ресепшен, гардеробной, переговорной комнаты, помещением с подводом воды, 2-х собственных санузлов. Имеется отдельный вход. Второй этаж включает в себя: пространство open space с  помещениями, отделенными стеклянными перегородками.

Инженерные коммуникации:

- система кондиционирования;

- приточно-вытяжная вентиляция;

- заведено оптоволокно;

- круглосуточная охрана и видеонаблюдение (доступ в здание 24/7).

Код объекта: 15049 Договор с собственником: 66/2А от 2025-06-19 Опубликовано: 01.07.2025 Обновлено: 14.02.2026
Динамика цен за кв. метрДинамика цен
Похожие объекты
Адрес
Комнат
Площадь
Этаж
Цена за м2
Цена
955.9 м2
1 из 5
25 р. за м2
930 м2
2 из 3
23 р. за м2
929.9 м2
1 из 2
25 р. за м2

Вы просматривали

3 861 р./мес. 43 р. за м2
Центральный р-н
6 067 р./мес. 23 р. за м2
Октябрьский р-н
23 885 р./мес. 26 р. за м2
Центральный р-н
23 898 р./мес. 25 р. за м2
Центральный р-н
21 390 р./мес. 23 р. за м2
Центральный р-н
400 р./мес. 26 р. за м2
Партизанский р-н
890 р./мес. 11 р. за м2
Московский р-н
Офис, 930 м2
Минск, ул. Нарочанская, д. 11
23 885 р./мес.
26 р. за м2
Пожалуйста, скажите, что нашли этот объект на Domovita.by
+
Фильтр сохранен