Выберите валюту для сайта:
BYN
Подать БЕСПЛАТНО

Аренда офиса на ул. Нарочанская, д. 11 в Минске, 23898BYN, код 16564

929.9 м2 1 этаж из 2 Центральный район / Веснянка
23 898 р./мес.
Офис
Город Минск
Район Центральный район
Микрорайон Веснянка
Адрес ул. Нарочанская, д. 11
Площадь 929.9 м2
Этаж 1

Описание

Предлагаем в аренду помещения  в Бизнес-центре на Нарочанской 11!

 

Офис Open-space формата общей площадью – 929,9 м2 располагается по адресу, ул. Нарочанская, 11.

В шаговой доступности располагаются: ТЦ «Арена Сити», «Минск Арена».

На 1-м этаже Бизнес-центра пункт охраны, по периметру здания видеонаблюдение. Арендодатель предоставляет бесплатные охраняемые парковочные места.

Локация с отличным транспортным сообщением, удобные подъездные пути и большая парковка вокруг здания. В шаговой доступности находятся остановки общественного транспорта.

 

Конфигурация офиса:

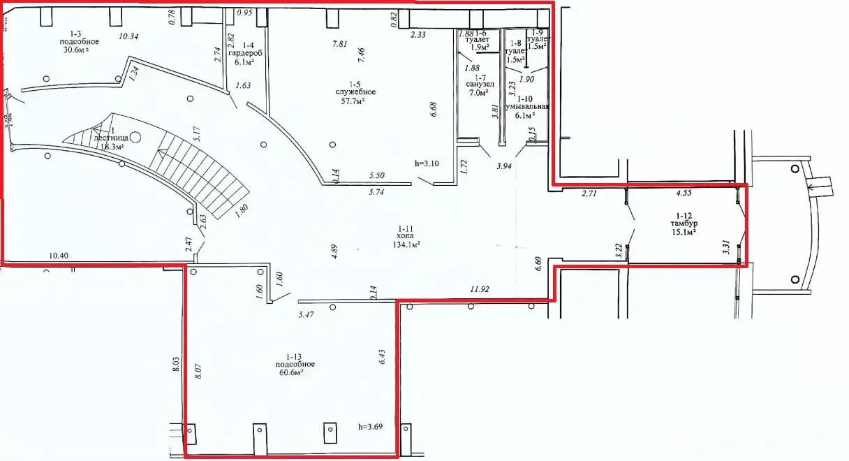
1-й этаж – 340,5 м2: зона ресепшена, кухня, сан. узел, гардероб, переговорная (кабинет).

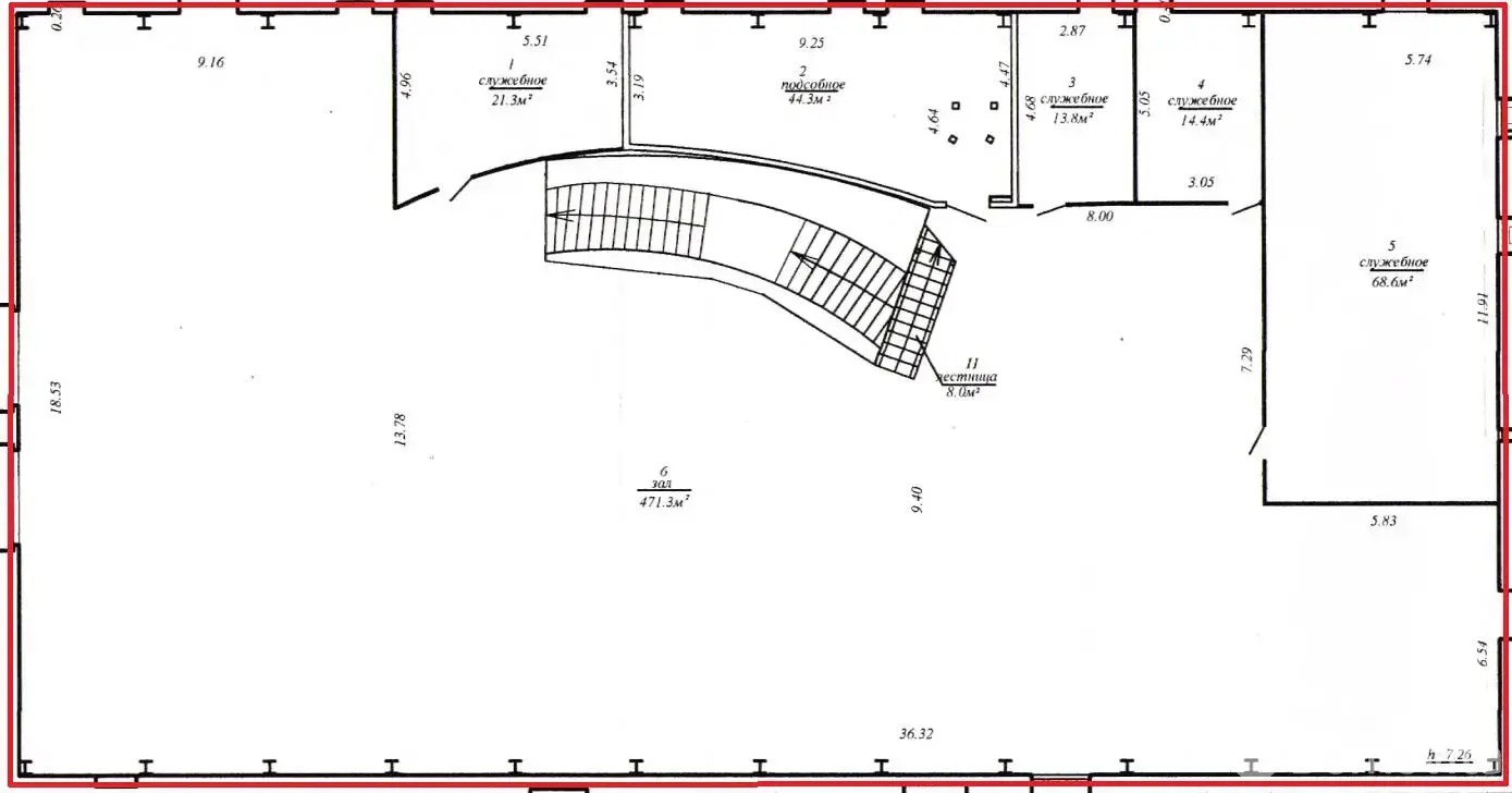
2-й этаж – 589,4 м2: Open-space, 6 отделенных стеклянными перегородками помещений.

 

•  Отдельный вход;

•  Отличный ремонт;

•  Open-space формат;

•  Естественное освещение;

•  Высокие потолки (7 метров);

•  Система кондиционирования;

•  Вентиляционная система;

•  Доступ в помещение 24/7;

•  Подъездные пути/парковка.

 

Коммуникации по Нарочанская 11:

Приточно-вытяжная вентиляция; Система кондиционирования воздуха; Круглосуточная система охраны и видеонаблюдения всего здания; Оптоволокно от нескольких интернет-провайдеров, локальная сеть.

 

Арендатор не платит комиссию агентству!

Готовы рассмотреть Ваши предложения!

Звоните!

Код объекта: 16564 Договор с собственником: 211/2а от 2024-06-28 Опубликовано: 26.02.2026 Обновлено: 26.02.2026
Динамика цен за кв. метрДинамика цен
Похожие объекты
Адрес
Комнат
Площадь
Этаж
Цена за м2
Цена
930 м2
1 из 5
26 р. за м2
955.9 м2
1 из 5
25 р. за м2
930 м2
2 из 3
23 р. за м2

Вы просматривали

2 507 р./мес. 25 р. за м2
Фрунзенский р-н
1 874 р./мес. 33 р. за м2
Московский р-н
5 494 р./мес. 37 р. за м2
Московский р-н
5 523 р./мес. 81 р. за м2
Центральный р-н
23 898 р./мес. 25 р. за м2
Центральный р-н
2 928 р./мес. 46 р. за м2
Советский р-н
Офис, 929.9 м2
Минск, ул. Нарочанская, д. 11
23 898 р./мес.
25 р. за м2
Иван
Пожалуйста, скажите, что нашли этот объект на Domovita.by
+
Фильтр сохранен