Выберите валюту для сайта:
BYN
Подать БЕСПЛАТНО

Снять офис на ул. Нарочанская, д. 11 в Минске, 23250BYN, код 15637

930 м2 2 этаж из 3 Центральный район / Веснянка
23 250 р./мес.
Офис
Город Минск
Район Центральный район
Микрорайон Веснянка
Адрес ул. Нарочанская, д. 11
Год постройки 1994 г.
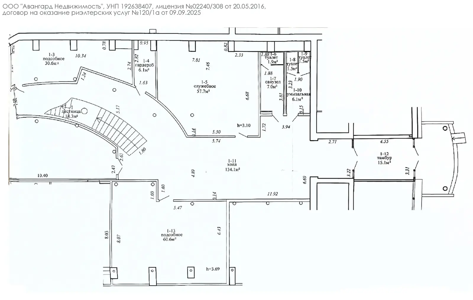
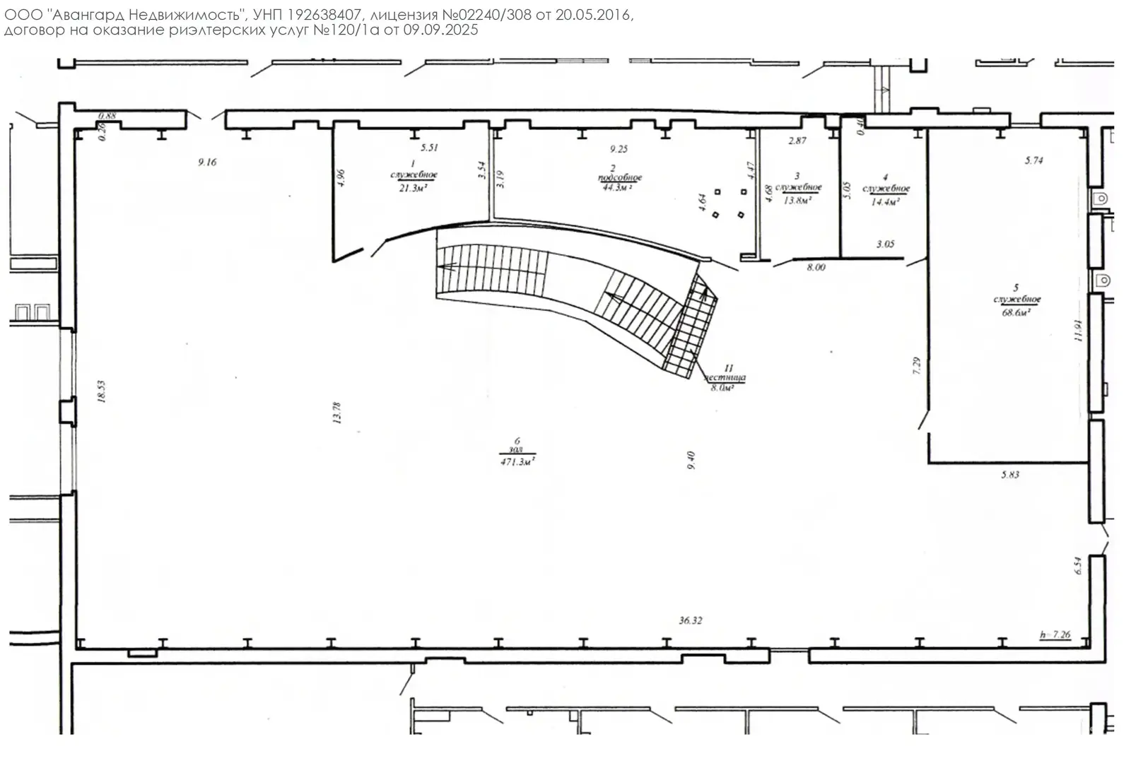
Площадь 930 м2
Этаж 2

Описание

Предлагаем Вашему вниманию отличный вариант размещения Вашей компании в престижном районе города Минска! Офис оборудован всем необходимым для комфортной работы Ваших сотрудников и представляет собой двухуровневое пространство общей площадью 930 м2 с отдельным входом и своей парковкой по адресу — ул. Нарочанская, 11. Встречает клиентов Вашей компании просторный изящный холл, где можно разместить ресепшн, а далее вместе с большой кухней уже рабочая атмосфера с интересной архитектурой здания! Идеально подойдёт для проектной компании, для банка, архитектурного бюро и иных видов деятельности.

Общие характеристики объекта:

- формат планировки open-space + кабинеты;

- выполнен хороший ремонт;

- система кондиционирования;

- собственная парковка на 10 автомобилей;

- отдельное просторное помещение кухни;

- заведено оптоволокно А1 и коммуникации;

- доступ 24/7, охраняемый объект;

- высота потолков 3.1-3.6 м и 7.3 м (второй свет;)

- собственный отдельный вход;

 

Инфраструктура:

Объект расположен вблизи Минск-Арены, в семи минутах ходьбы от остановок транспорта, собственная парковка прямо напротив входа, до центра города 8-10 минут на авто, до МКАД — 5-6; в пешей доступности множество кафе, магазинов, ресторан и банки.

Арендатор не оплачивает услуги агентства!

Звоните, покажем в удобное для Вас время!

Стоимость указана с учётом НДС.

Код объекта: 15637 Договор с собственником: 120/1а от 2025-09-09 Опубликовано: 24.09.2025 Обновлено: 25.11.2025
Динамика цен за кв. метрДинамика цен
Похожие объекты
Адрес
Комнат
Площадь
Этаж
Цена за м2
Цена
1-комнатная
929.9 м2
1 из 1
25 р. за м2
930 м2
1 из 5
26 р. за м2
955.9 м2
1 из 5
25 р. за м2
929.9 м2
1 из 2
25 р. за м2

Вы просматривали

1 460 765 р./мес. 54 р. за м2
Центральный р-н
2 337 р./мес. 49 р. за м2
Октябрьский р-н
9 204 р./мес. 51 р. за м2
Партизанский р-н
90 000 р./мес. 36 р. за м2
Московский р-н
5 100 р./мес. 30 р. за м2
Советский р-н
23 250 р./мес. 25 р. за м2
Центральный р-н
4 104 р./мес. 38 р. за м2
Партизанский р-н
3 151 р./мес. 27 р. за м2
Фрунзенский р-н
1 711 р./мес. 20 р. за м2
Фрунзенский р-н
Офис, 930 м2
Минск, ул. Нарочанская, д. 11
23 250 р./мес.
25 р. за м2
Агент
Пожалуйста, скажите, что нашли этот объект на Domovita.by
+
Фильтр сохранен