Выберите валюту для сайта:
BYN
Подать БЕСПЛАТНО

Аренда офиса на ул. Куйбышева, д. 22 в Минске, 2856BYN, код 15305

338.7 м2 3 этаж из 5 Центральный район / Киселева Площадь Победы
9 156 р./мес.
2 856 р./мес.
Офис
Город Минск
Район Центральный район
Микрорайон Киселева
Адрес ул. Куйбышева, д. 22
Метро Площадь Победы
Время до метро пешком 8 мин.
Время до метро на транспорте 5 мин.
Год постройки 1963 г.
Площадь 338.7 м2
Этаж 3

Описание

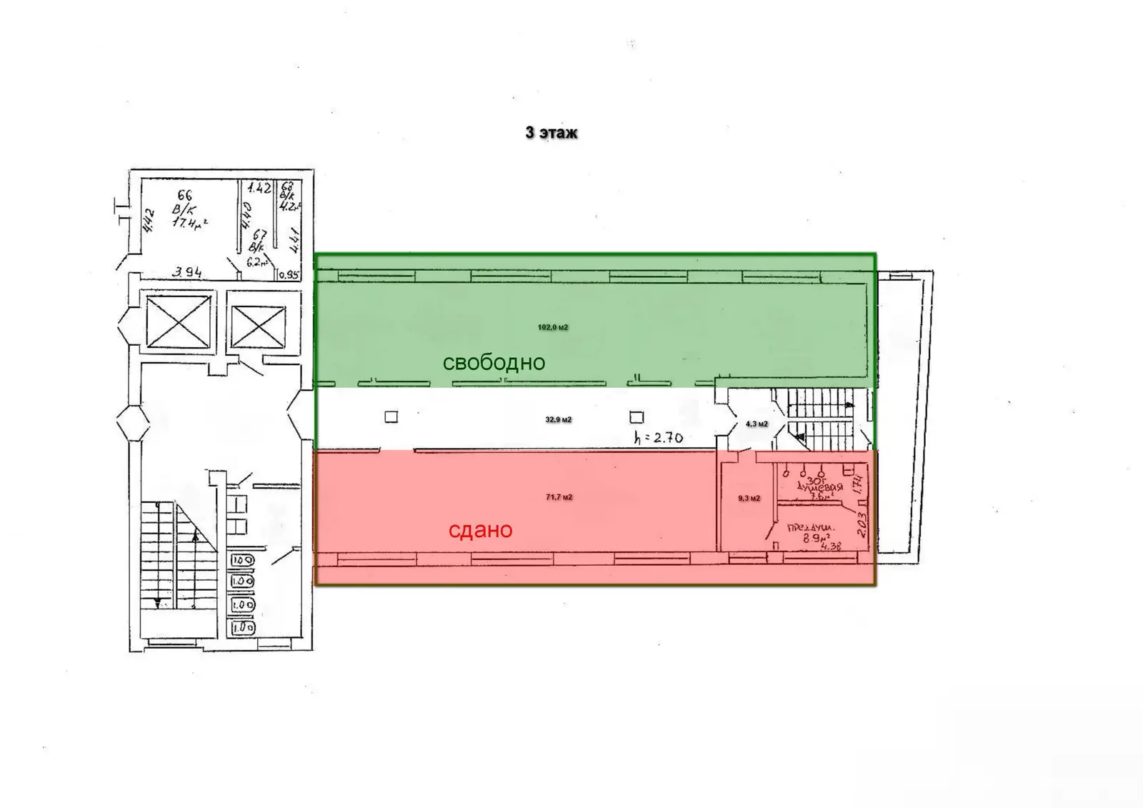
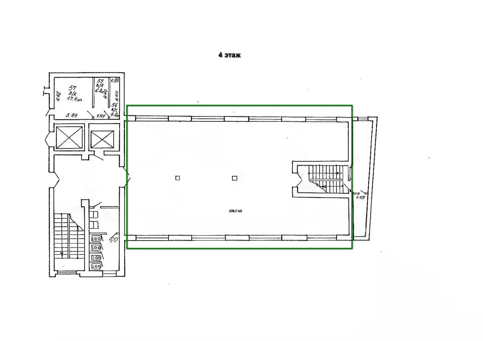
Свободные площади расположены на 3-м и 4-м этажах административного здания и подойдут для размещения офиса, сферы услуг, образовательного центра и других сфер бизнеса.

 

Варианты аренды:

3-й этаж – 102,0 м.кв.

4-й этаж – 236,7 м.кв.

 

Выгодное месторасположение, удобное транспортное сообщение, развитая инфраструктура, быстрый доступ в любую точку города.

 

Свяжитесь с нами для получения дополнительной информации и организации просмотра!

Арендатор не оплачивает услуги агентства!!

Код объекта: 15305 Договор с собственником: 51/2а от 2025-02-17 Опубликовано: 08.08.2025 Обновлено: 04.12.2025
Динамика цен за кв. метрДинамика цен
Похожие объекты
Адрес
Комнат
Площадь
Этаж
Цена за м2
Цена
473.4 м2
3 из 5
28 р. за м2
2-комнатная
242 м2
3 из 4
28 р. за м2

Вы просматривали

1 381 р./мес. 26 р. за м2
Советский р-н
1 813 р./мес. 26 р. за м2
Советский р-н
1 390 р./мес. 29 р. за м2
Центральный р-н
4 210 р./мес. 41 р. за м2
Центральный р-н
5 494 р./мес. 36 р. за м2
Московский р-н
2 856 р./мес. 28 р. за м2
Центральный р-н
2 918 р./мес. 44 р. за м2
Ленинский р-н
4 058 р./мес. 37 р. за м2
Партизанский р-н
507 р./мес. 30 р. за м2
Фрунзенский р-н
Офис, 338.7 м2
Минск, ул. Куйбышева, д. 22
2 856 р./мес.
28 р. за м2
Наталья Кревская
Пожалуйста, скажите, что нашли этот объект на Domovita.by
+
Фильтр сохранен