Выберите валюту для сайта:
BYN
Подать БЕСПЛАТНО

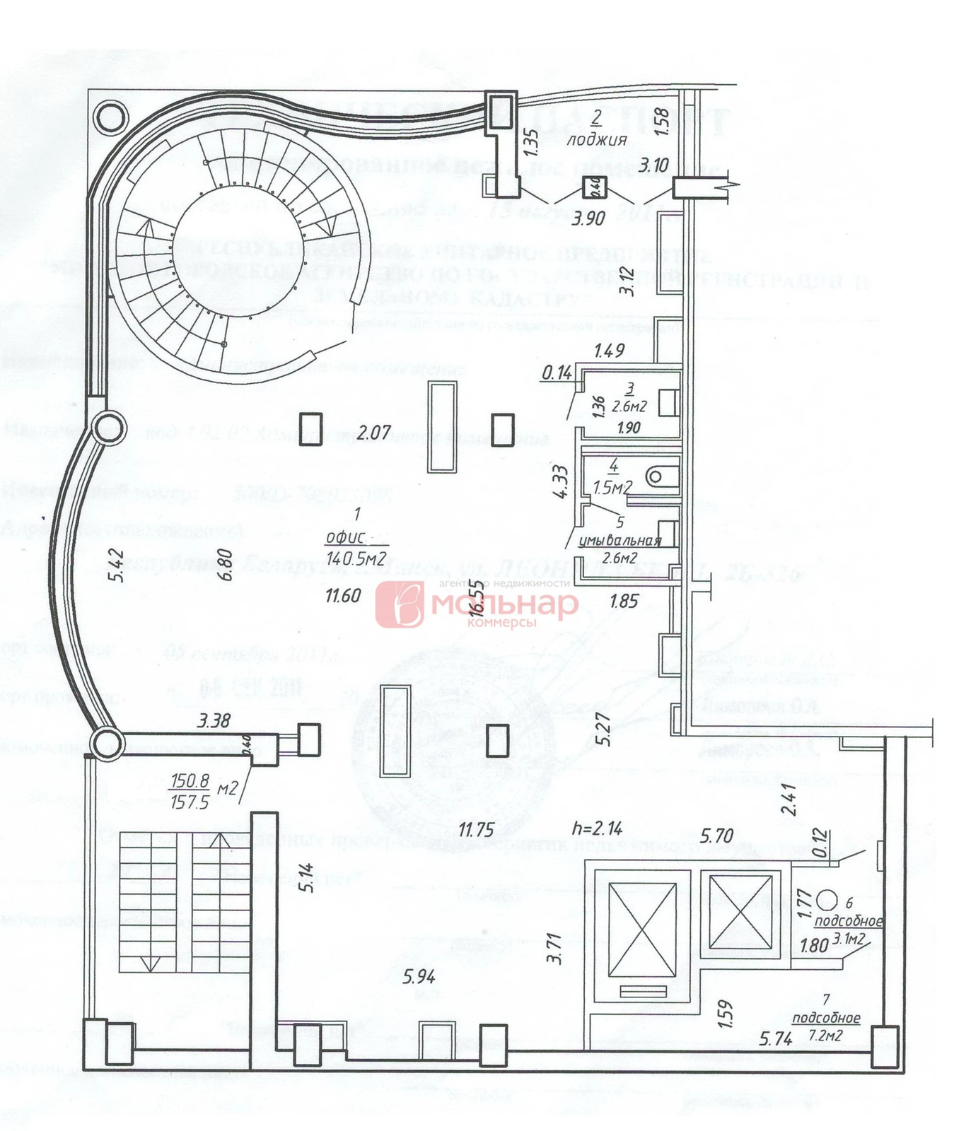
Снять офис на ул. Леонида Беды, д. 2Б в Минске, 2243EUR, код 13786

320.5 м2 1 этаж из 1 Советский район / Беды Академия наук
7 598 р./мес.
Офис
Город Минск
Район Советский район
Микрорайон Беды
Адрес ул. Леонида Беды, д. 2Б
Метро Академия наук
Время до метро пешком 16 мин.
Время до метро на транспорте 9 мин.
Площадь 320.5 м2
Помещений 1
Этаж 1
Удобства
Отдельный вход

Описание

Сдаётся в аренду офисное помещение 320.5м по адресу ул.Беды 2Б.

3 этажа. Имеется парковка рядом с зданием.
В помещении хороший ремонт, имеется кондиционер. Смешанная планировка.
Ставка 7евро+коммунальные услуги.
Арендатор не оплачивает услугу риэлтерской организации.

Код объекта: 13786 Договор с собственником: 359/1А Опубликовано: 11.02.2025 Обновлено: 11.02.2025
Динамика цен за кв. метрДинамика цен
Похожие объекты
Адрес
Комнат
Площадь
Этаж
Цена за м2
Цена
1-комнатная
790.4 м2
4 из 4
27 р. за м2
790.42 м2
3 из 6
29 р. за м2
113 м2
3 из 3
22 р. за м2
1-комнатная
68.4 м2
2 из 2
22 р. за м2
5-комнатная
150 м2
3 из 5
15 р. за м2

Вы просматривали

21 419 р./мес. 27 р. за м2
Советский р-н
7 598 р./мес. 24 р. за м2
Советский р-н
Офис, 320.5 м2
Минск, ул. Леонида Беды, д. 2Б
7 598 р./мес.
24 р. за м2
Александра
Пожалуйста, скажите, что нашли этот объект на Domovita.by
+
Фильтр сохранен