Снять офис на ул. Либаво-Роменская, д. 23 в Минске, 2130EUR, код 16898

355.7 м2 5 этаж из 9 Ленинский район / Маяковского Ковальская слобода
7 038 р./мес.
Офис
Город Минск
Район Ленинский район
Микрорайон Маяковского
Адрес ул. Либаво-Роменская, д. 23
Метро Ковальская слобода
Время до метро пешком 15 мин.
Время до метро на транспорте 8 мин.
Год постройки 2008 г.
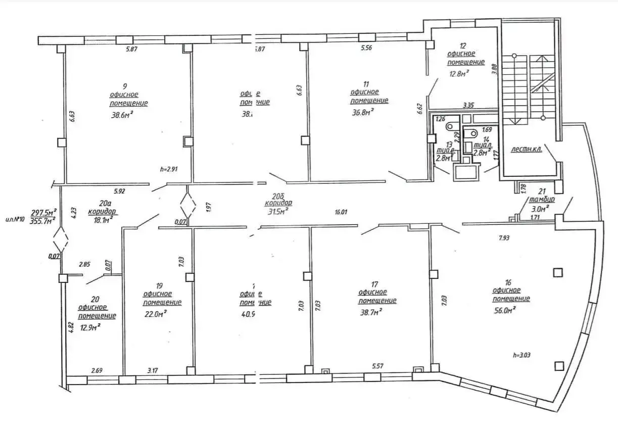
Площадь 355.7 м2
Этаж 5

Описание

Офисный блок без мебели на 7 кабинетов 355,7м2 по адресу Либаво-Роменская 23

Планировка и коммуникации:

  • 7 светлых кабинетов, готовая кухня + балкон;
  • Два санузла;
  • Стойка ресепшен при входе;
  • Оптоволоконный кабель и телефонные линии;
  • Элементы безбарьерной среды;
  • Кондиционирование, приточно-вытяжная вентиляция;
  • Кофейня на первом этаже (есть доставка в офис).

 

Безопасность и условия:

  • Юридический адрес;
  • Аренда от 1 года;
  • Пожарная сигнализация;
  • Видеонаблюдение;
  • Доступ 24/7;
  • Парковка и развитая инфраструктура.

 

 

Больше объявлений тут: www.instagram.com/garant.arenda

Напишите нам в удобный для Вас мессенджер:

Viber | Telegram | WhatsApp

Ответим на Ваши вопросы, предоставим всю необходимую дополнительную информацию.

ООО «Артель Недвижимость»

УНП 193820882

Лицензия Министерства Юстиции №48250000081913 06.03.2025 г.

Договор №343/2а от 23.04.2026

Код объекта: 16898 Договор с собственником: 343/2а от 2026-04-23 Опубликовано: 29.04.2026 Обновлено: 29.04.2026
Динамика цен за кв. метрДинамика цен
Похожие объекты
Адрес
Комнат
Площадь
Этаж
Цена за м2
Цена
355.7 м2
5 из 10
20 р. за м2

Вы просматривали

7 038 р./мес. 17 р. за м2
Ленинский р-н
Офис, 355.7 м2
Минск, ул. Либаво-Роменская, д. 23
7 038 р./мес.
17 р. за м2
Гарант Недвижимость
Пожалуйста, скажите, что нашли этот объект на Domovita.by
+
Фильтр сохранен