Выберите валюту для сайта:
BYN
Подать БЕСПЛАТНО

Снять офис на ул. Литературная, д. 27 в Минске, 783EUR, код 16216

130.6 м2 2 этаж из 2 Советский район / Беды
2 635 р./мес.
Офис
Город Минск
Район Советский район
Микрорайон Беды
Адрес ул. Литературная, д. 27
Год постройки 2009 г.
Площадь 130.6 м2
Этаж 2

Описание

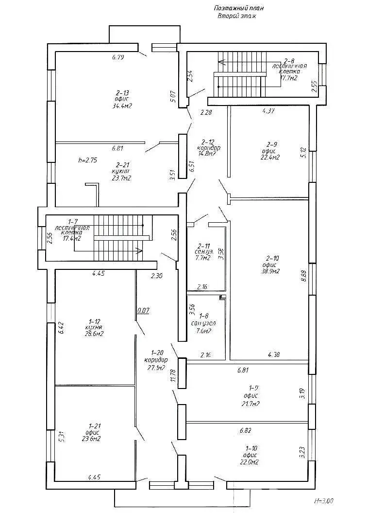
Сдаются офисные помещения на втором этаже с отдельными кабинетами общей площадью 130,6 м2 по ул.Литературная, 27

Есть своя отдельная парковка.

Есть все коммуникации- отопление, свет, вода, канализация.

На этажах расположены сан узлы, кухня.

Удобная локация и недалеко остановка общественного транспорта.

Также доступно к сдаче полдома общей площадью 387.7 м2 (1 и 2 этажи+цоколь).

Лицензия: 02240/446 МЮ РБ, 11.07.2022

Код объекта: 16216 Договор с собственником: 70/1А от 2025-12-11 Опубликовано: 12.12.2025 Обновлено: 12.02.2026
Динамика цен за кв. метрДинамика цен
Похожие объекты
Адрес
Комнат
Площадь
Этаж
Цена за м2
Цена
125.6 м2
10 р. за м2
131.5 м2
1 из 2
20 р. за м2

Вы просматривали

1 130 р./мес. 31 р. за м2
Центральный р-н
3 024 р./мес. 32 р. за м2
Октябрьский р-н
150 792 р./мес. 54 р. за м2
Партизанский р-н
1 266 р./мес. 10 р. за м2
Советский р-н
2 635 р./мес. 20 р. за м2
Советский р-н
17 700 р./мес. 15 р. за м2
Советский р-н
Офис, 130.6 м2
Минск, ул. Литературная, д. 27
2 635 р./мес.
20 р. за м2
Дмитрий
Пожалуйста, скажите, что нашли этот объект на Domovita.by
+
Фильтр сохранен