Выберите валюту для сайта:
BYN
Подать БЕСПЛАТНО

Аренда офиса на ул. Некрасова, д. 35/1 в Минске, 1610USD, код 15428

161 м2 1 этаж из 9 Советский район / Беды Академия наук
4 683 р./мес.
Офис
Город Минск
Район Советский район
Микрорайон Беды
Адрес ул. Некрасова, д. 35/1
Метро Академия наук
Время до метро пешком 21 мин.
Время до метро на транспорте 12 мин.
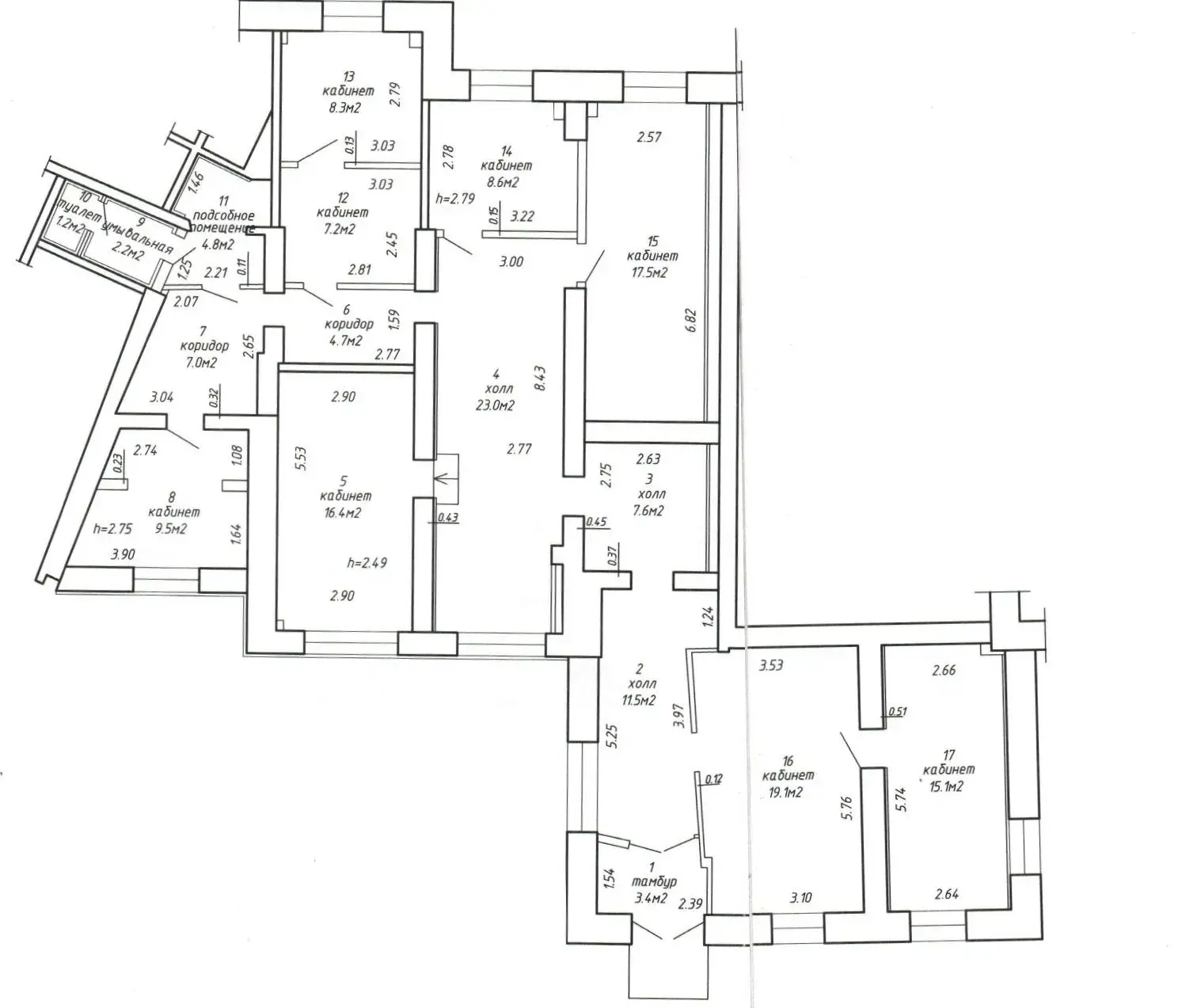
Площадь 161 м2
Помещений 9
Этаж 1

Описание

Аренда помещения в жилом доме недалеко от ТЦ «Рига»

Адрес: г. Минск, ул. Некрасова, 35к1

Общая площадь: 161 м2

- Удобное расположение

- Ремонт

- Недалеко ст.м. Академия наук

- В шаговой доступности остановки общественного транспорта

- Отдельный вход

- Наличие свободных парковочных мест

- Санузел

- Кухня

- Пожарная сигнализация

- Роллеты

- Освещение, отопление, электроснабжение, вода

- Доступ 24/7

- Развитая инфраструктура

В шаговой доступности от помещения располагаются ТЦ «Некрасовский», ТЦ «Рига», Беларусбанк, Евроопт и т.д.

В этом же доме находится стоматологическая поликлиника.

Помещение отлично подходит под офис, торговое, сферу услуг, бьюти сферу.

Арендатор не оплачивает  услуги агентства!

Код объекта: 15428 Договор с собственником: 46/3а 28.08.2025 до 27.08.2026 Опубликовано: 01.09.2025 Обновлено: 04.12.2025
Динамика цен за кв. метрДинамика цен
Похожие объекты
Адрес
Комнат
Площадь
Этаж
Цена за м2
Цена
3345.9 м2
1 из 2
30 р. за м2
3345.9 м2
30 р. за м2
200 м2
2 из 2
30 р. за м2
9-комнатная
1458 м2
2 из 2
32 р. за м2

Вы просматривали

2 618 р./мес. 39 р. за м2
Октябрьский р-н
2 705 р./мес. 38 р. за м2
Центральный р-н
4 683 р./мес. 29 р. за м2
Советский р-н
Офис, 161 м2
Минск, ул. Некрасова, д. 35/1
4 683 р./мес.
29 р. за м2
Анна
Пожалуйста, скажите, что нашли этот объект на Domovita.by
+
Фильтр сохранен