Выберите валюту для сайта:
BYN
Подать БЕСПЛАТНО

Снять офис на ул. Пионерская, д. 45 в Минске, 72151BYN, код 15739

1639.8 м2 Центральный район / Веснянка
72 151 р./мес.
Офис
Город Минск
Район Центральный район
Микрорайон Веснянка
Адрес ул. Пионерская, д. 45
Площадь 1639.8 м2

Описание

Здание специализированное здравоохранения и предоставления социальных услуг.

Возможность организации офисного, многофункционального центра.

г. Минск, ул. Пионерская, 45

Общая площадь: 1 639,8 м2

Арендная ставка - 44 рубля за метр + НДС

Арендатор не оплачивает услуги риэлтерской организации!

Здание расположено в природоохранной зоне Дрозды вблизи знаковых объектов города: спортивно-развлекательный комплекс «Минск-

Арена», гостиничный комплекс «Виктория Олимп Отель», Белорусский государственный университет физической культуры.

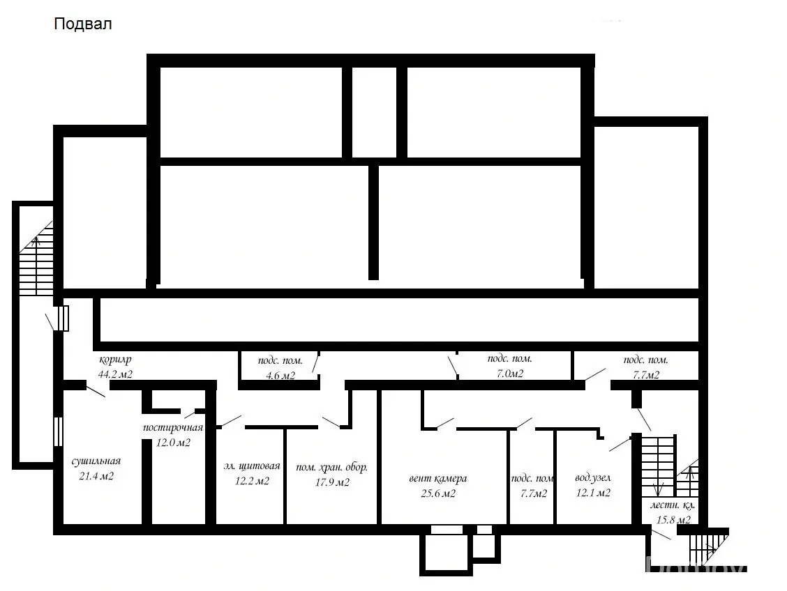
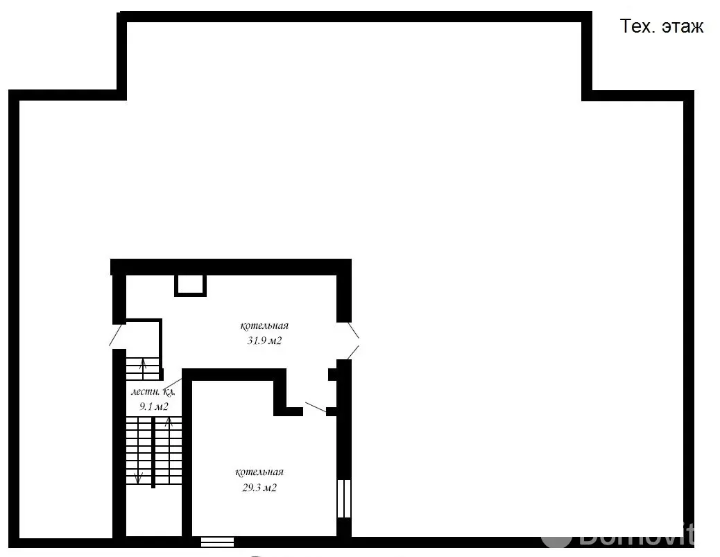
На 4-м техническом этаже центра находится собственная газовая котельная и выход на площадку для зимнего сада с зоной отдыха 

сотрудников. В цокольном уровне расположено 10 комнат, включая электрощитовую, венткомнату и прачечную. Реконструкция здания 

произведена в 2016 году.

• оригинальное дизайнерское решение в оформлении интерьера;

• система кондиционирования и вентиляции;

• видеонаблюдение, оптоволоконная сеть;

• конференц-зал, специализированные и вспомогательные кабинеты, помещение кухни и приема пищи;

• охраняемая парковка на 30 машиномест, оборудованная шлагбаумом;

• удобное транспортное сообщение, в непосредственной близости расположена остановка общественного транспорта;

• земельный участок 0,1882 га.

Подробнее см. на САЙТЕ  www.silvan7800.by

Ваш агент - Андрей Смолка

Короткий номер (МТС, А1, Life): 7-800

ООО «Сильван-Инвест», УНП 192927433, лицензия №02240/383, Министерство юстиции РБ, 24.09.2019.

Код объекта: 15739 Договор с собственником: 6/3а от 2024-01-24 Опубликовано: 09.10.2025 Обновлено: 09.11.2025
Динамика цен за кв. метрДинамика цен
Похожие объекты
Адрес
Комнат
Площадь
Этаж
Цена за м2
Цена
1-комнатная
764 м2
1 из 1
47 р. за м2
764.4 м2
1 из 6
47 р. за м2
390.9 м2
1 из 6
54 р. за м2

Вы просматривали

30 250 р./мес. 51 р. за м2
Центральный р-н
8 528 р./мес. 41 р. за м2
Центральный р-н
72 151 р./мес. 44 р. за м2
Центральный р-н
1 674 р./мес. 51 р. за м2
Советский р-н
Офис, 1639.8 м2
Минск, ул. Пионерская, д. 45
72 151 р./мес.
44 р. за м2
Андрей Смолка
Пожалуйста, скажите, что нашли этот объект на Domovita.by
+
Фильтр сохранен