Выберите валюту для сайта:
BYN
Подать БЕСПЛАТНО

Аренда офиса на ул. Сурганова, д. 29 в Минске, 465EUR, код 16456

51.6 м2 1 этаж из 4 Первомайский район / Гикало Академия наук
1 565 р./мес.
Офис
Город Минск
Район Первомайский район
Микрорайон Гикало
Адрес ул. Сурганова, д. 29
Метро Академия наук
Время до метро пешком 6 мин.
Время до метро на транспорте 4 мин.
Год постройки 2004 г.
Площадь 51.6 м2
Этаж 1

Описание

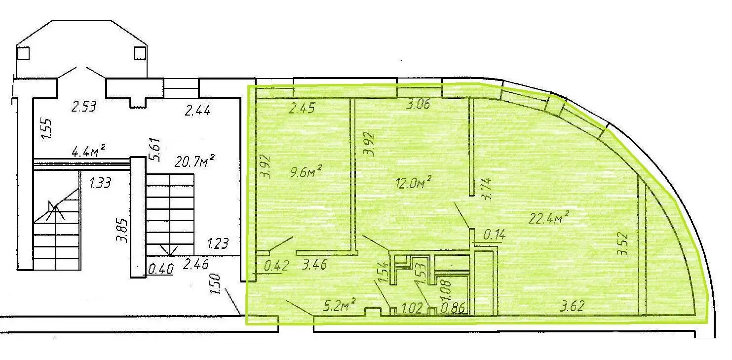
Аренда помещения под офис-склад 51.6 м.кв. в центре Минска на Сурганова 29.

Освобождается после 16.03.2026 г.

Помещение с отделкой, 1 этаж, 3 кабинета (9,6 м.кв., 12,0 м.кв., 22,4 м.кв.).

Вентиляция, кондиционер, пожарно-охранная сигнализация, центральное отопление, скоростной интернет, телефон.

Доступ в здание круглосуточный.

Охрана у входа, парковка у здания.

Удобный район с развитой инфраструктурой: продуктовые магазины, общепит, торговые центры.

Непосредственная близость к центру города.

Рядом остановки общественного транспорта

Менее 500 м до ст. метро "Академия наук".

Идеально подходит под офис с кабинетами, сферу услуг, салон красоты, медцентр, стоматологию, обучающие курсы, мастерскую.

Затраты на коммунальные услуги, включая электроэнергию, 5...7 р./м.кв.

Аренда без НДС (0%).

Арендатор не оплачивает услуги агентства!

Звоните!

---

ООО «ЭТАЖИ юнайтед»
УНП: 193673318
Договор № 28/1а от 18.01.2024
Лицензия на оказание риэлтерских услуг №02240/460 МЮ РБ от 03.04.2023

Код объекта: 16456 Договор с собственником: № 28/1а от 2024-01-18 Опубликовано: 06.02.2026 Обновлено: 06.02.2026
Динамика цен за кв. метрДинамика цен
Похожие объекты
Адрес
Комнат
Площадь
Этаж
Цена за м2
Цена
234.4 м2
1 из 4
50 р. за м2
234.4 м2
1 из 4
50 р. за м2
181 м2
3 из 4
35 р. за м2
187.2 м2
1 из 4
50 р. за м2
51.6 м2
1 из 4
30 р. за м2

Вы просматривали

2 040 р./мес. 51 р. за м2
Советский р-н
1 288 р./мес. 35 р. за м2
Фрунзенский р-н
9 434 р./мес. 50 р. за м2
Первомайский р-н
1 565 р./мес. 30 р. за м2
Первомайский р-н
2 184 р./мес. 28 р. за м2
Ленинский р-н
772 р./мес. 27 р. за м2
Ленинский р-н
2 356 р./мес. 34 р. за м2
Советский р-н
12 595 р./мес. 74 р. за м2
Партизанский р-н
Офис, 51.6 м2
Минск, ул. Сурганова, д. 29
1 565 р./мес.
30 р. за м2
Петр
Пожалуйста, скажите, что нашли этот объект на Domovita.by
+
Фильтр сохранен