Выберите валюту для сайта:
BYN
Подать БЕСПЛАТНО

Аренда офиса на ул. Тимирязева, д. 72 в Минске, 7434EUR, код 11845

743.4 м2 3 этаж из 14 Центральный район / Победителей Пушкинская
25 447 р./мес.
Офис
Город Минск
Район Центральный район
Микрорайон Победителей
Адрес ул. Тимирязева, д. 72
Метро Пушкинская
Время до метро пешком 25 мин.
Время до метро на транспорте 14 мин.
Год постройки 2014 г.
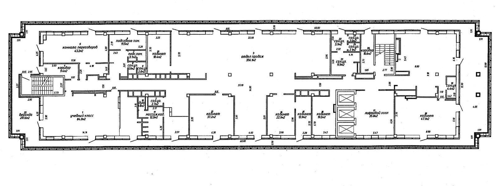
Площадь 743.4 м2
Этаж 3
Удобства
Круглосуточный доступ
Кондиционер
Парковка

Описание

Офисные помещения в БЦ «Дельта»

г. Минск, ул. Тимирязева, 72

Общая площадь 3-го этажа: 743,4 м2

Арендная ставка: 10 €/м2 (+НДС)

Арендатор не оплачивает услуги риэлтерской организации!

Офисно- административные помещения расположены на 3-м этаже бизнес-центра «Дельта»:

• система кондиционирования, приточно-вытяжная вентиляция;

• высота потолков: 2.98 м.;

• панорамные окна;

• собственный санузел;

• доступ 24/7;

• удобная парковка;

• местоположение с развитой инфраструктурой вблизи большой транспортной развязки и пр-та Победителей. Рядом расположены ТЦ «Замок», новый ТЦ «Palazzo», ФОК, остановки общественного транспорта.

Ваш агент - Андрей Смолка

Договор № 43/3а от 29.03.2024 до 28.03.2026

Код объекта: 11845 Договор с собственником: 43/3а от 2024-03-29 Опубликовано: 02.04.2024 Обновлено: 25.02.2026
Динамика цен за кв. метрДинамика цен
Похожие объекты
Адрес
Комнат
Площадь
Этаж
Цена за м2
Цена
1101.1 м2
4 из 14
34 р. за м2
1088.5 м2
5 из 14
31 р. за м2
353.2 м2
1 из 14
41 р. за м2
2933 м2
34 р. за м2
37 м2
1 из 14
30 р. за м2

Вы просматривали

1 848 р./мес. 27 р. за м2
Советский р-н
3 495 р./мес. 34 р. за м2
Партизанский р-н
20 318 р./мес. 30 р. за м2
Центральный р-н
2 495 р./мес. 34 р. за м2
Центральный р-н
25 447 р./мес. 34 р. за м2
Центральный р-н
1 656 р./мес. 15 р. за м2
Первомайский р-н
Офис, 743.4 м2
Минск, ул. Тимирязева, д. 72
25 447 р./мес.
34 р. за м2
Андрей Смолка
Пожалуйста, скажите, что нашли этот объект на Domovita.by
+
Фильтр сохранен