Выберите валюту для сайта:
BYN
Подать БЕСПЛАТНО

Снять офис на ул. Железнодорожная, д. 33/А в Минске, 2713BYN, код 16535

118.9 м2 7 этаж из 8 Московский район / Грушевская Михалово
2 713 р./мес.
Офис
Город Минск
Район Московский район
Микрорайон Грушевская
Адрес ул. Железнодорожная, д. 33/А
Метро Михалово
Время до метро пешком 10 мин.
Время до метро на транспорте 5 мин.
Год постройки 2013 г.
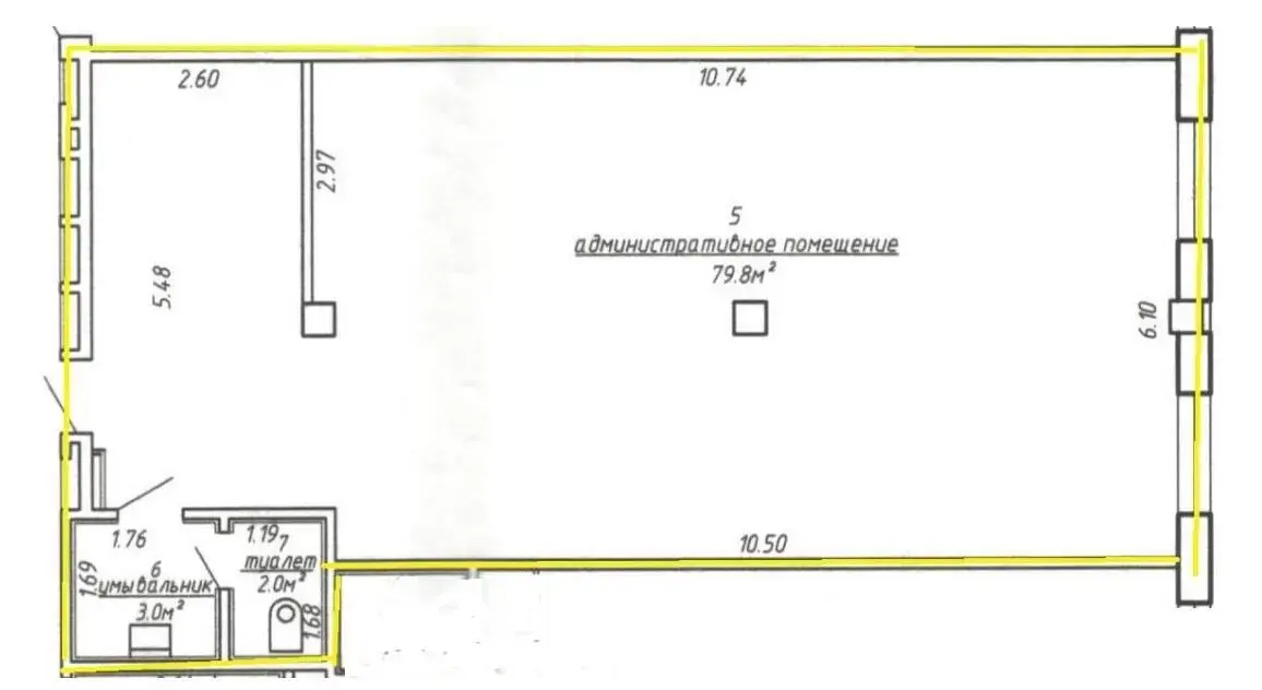
Площадь 118.9 м2
Этаж 7

Описание

Предлагаем в аренду офисные помещения в современном бизнес-центре по адресу: г. Минск, ул. Железнодорожная, 33А. Объект расположен в 7 минутах ходьбы от станции метро «Михалово».

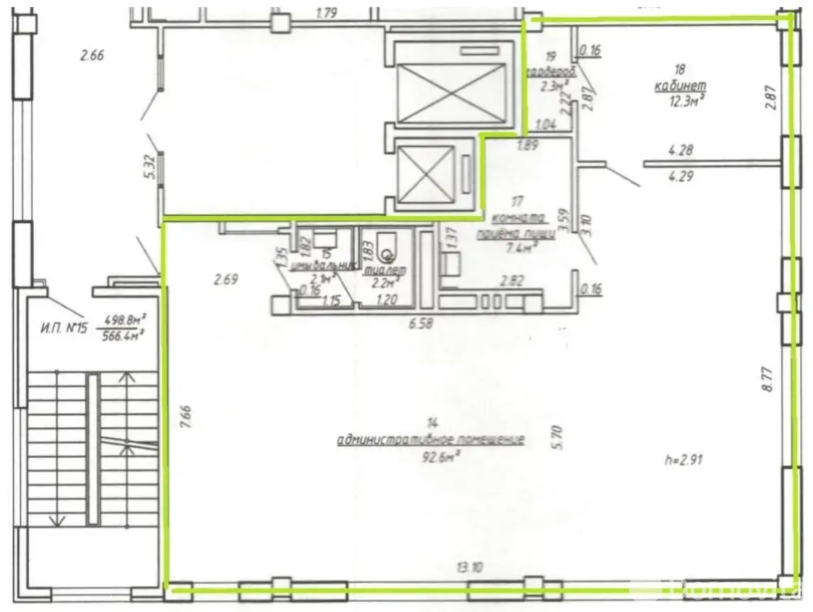
В аренду доступны два офисных блока площадью 84,8 кв.м (кабинетная система) и 118,9 кв.м (формат open space). Помещения с естественным освещением и высоким уровнем инсоляции, в каждом блоке предусмотрен собственный санузел.

В офисах выполнен свежий, качественный ремонт в современном стиле. Установлены системы кондиционирования и приточно-вытяжной вентиляции, оптоволокно. Здание оборудовано пожарной сигнализацией и системой видеонаблюдения, установлены индивидуальные приборы учета.

Доступ в здание и помещения возможен в формате 24/7. В бизнес-центре функционируют два лифта «OTIS». Для сотрудников предусмотрена собственная парковка под шлагбаумом.

В шаговой доступности расположены ТЦ «Глобо», продуктовые магазины, кафе и кофейни, банк, фитнес-центр, салон красоты и другие объекты инфраструктуры, обеспечивающие комфортные условия для работы сотрудников и приема клиентов.

ООО «Экореал»

Агентство недвижимости

УНП: 691829080

Лицензия: №02240/338 МЮ РБ, 03.05.2017 

Код объекта: 16535 Договор с собственником: 2/3А от 2026-02-16 Опубликовано: 21.02.2026 Обновлено: 21.02.2026
Динамика цен за кв. метрДинамика цен
Похожие объекты
Адрес
Комнат
Площадь
Этаж
Цена за м2
Цена
896.1 м2
6 из 8
27 р. за м2
198 м2
2 из 8
27 р. за м2

Вы просматривали

1 475 р./мес. 31 р. за м2
Московский р-н
3 480 р./мес. 44 р. за м2
Московский р-н
2 713 р./мес. 30 р. за м2
Московский р-н
2 711 р./мес. 66 р. за м2
Октябрьский р-н
Офис, 118.9 м2
Минск, ул. Железнодорожная, д. 33/А
2 713 р./мес.
30 р. за м2
Максим
Пожалуйста, скажите, что нашли этот объект на Domovita.by
+
Фильтр сохранен