Выберите валюту для сайта:
BYN
Подать БЕСПЛАТНО

Аренда офиса на ул. Жуковского, д. 11А в Минске, 7077BYN, код 14283

272.2 м2 5 этаж из 7 Октябрьский район / Воронянского Ковальская слобода
7 077 р./мес.
Офис
Город Минск
Район Октябрьский район
Микрорайон Воронянского
Адрес ул. Жуковского, д. 11А
Метро Ковальская слобода
Время до метро пешком 5 мин.
Время до метро на транспорте 3 мин.
Площадь 272.2 м2
Помещений 7
Этаж 5
Удобства
Круглосуточный доступ
Лифт
Кондиционер
Парковка

Описание

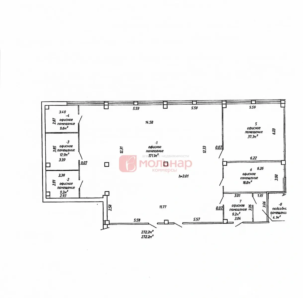
Сдается в аренду офисный блок в БЦ по ул. Жуковского 11А, площадью 272,2 м2.

Пятый этаж.

Офис состоит из рабочих небольших кабинетов, комнаты отдыха, подсобного помещения и кабинета 171м2 open space.

Подведены необходимые коммуникации, установлен кондиционер.

Арендная ставка- 26 б.р./м2 (собственник не является плательщиком НДС).

Доступ в БЦ и на этажи по картам доступа. Клиентам выдается гостевая карта.

Рядом с БЦ просторная парковка, остановка общественного транспорта, ст. метро Ковальская Слобода.

Арендатор не оплачивает риэлтерские услуги.

Код объекта: 14283 Договор с собственником: 643/1А Опубликовано: 04.04.2025 Обновлено: 02.05.2025
Динамика цен за кв. метрДинамика цен
Похожие объекты
Адрес
Комнат
Площадь
Этаж
Цена за м2
Цена
1-комнатная
273 м2
6 из 6
26 р. за м2

Вы просматривали

7 794 р./мес. 61 р. за м2
Центральный р-н
7 077 р./мес. 26 р. за м2
Октябрьский р-н
Офис, 272.2 м2
Минск, ул. Жуковского, д. 11А
7 077 р./мес.
26 р. за м2
Александра
Пожалуйста, скажите, что нашли этот объект на Domovita.by
+
Фильтр сохранен