Выберите валюту для сайта:
BYN
Подать БЕСПЛАТНО

Купить офис на пер. Козлова, д. 5/А в Минске, 88720EUR, код 8911

110.9 м2 2 этаж из 3 Партизанский район / Уральская Тракторный завод
299 998 р.
Офис
Город Минск
Район Партизанский район
Микрорайон Уральская
Адрес пер. Козлова, д. 5/А
Метро Тракторный завод
Время до метро пешком 16 мин.
Время до метро на транспорте 9 мин.
Год постройки 2010 г.
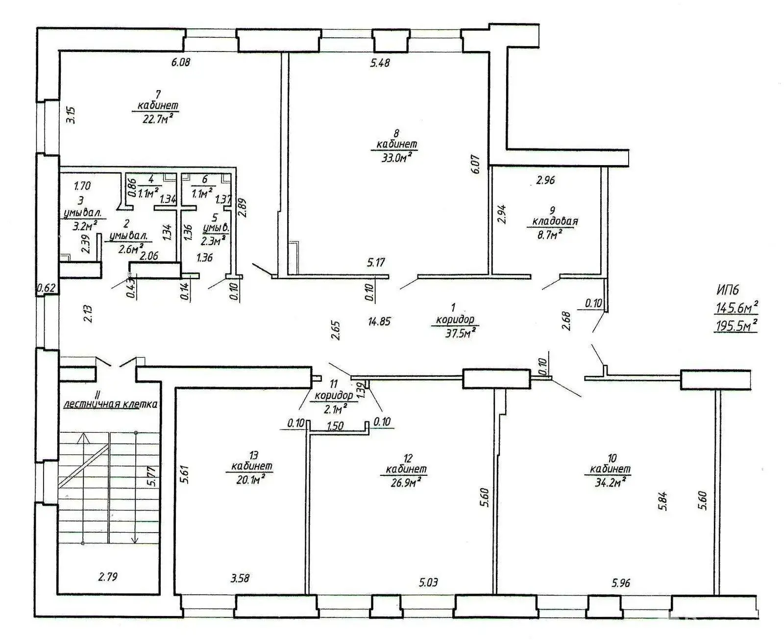
Площадь 110.9 м2
Этаж 2

Описание

Административное помещение

г. Минск, пер. Козлова, 5А

Общая площадь: 110,9 м2

Покупатель не оплачивает услуги риэлтерской организации!

Помещения расположены на 2 этаже трехэтажного административного здания:

• планировка кабинетной системы;

• оборудована кухня, собственный с/у, подсобное пом-е (серверная);

• парковка возле здания;

• удобство местоположения вблизи центра города: 10-15 мин. пешеходной доступности от ст. метро «Площадь Победы», «Тракторный Завод».

Ваш ангент - Смолка Андрей

Код объекта: 8911 Договор с собственником: 53/4 от 2024-03-06 Опубликовано: 01.07.2025 Обновлено: 30.11.2025
Динамика цен за кв. метрДинамика цен
Похожие объекты
Адрес
Комнат
Площадь
Этаж
Цена за м2
Цена
1978.2 м2
1 из 3
2 658 р. за м2
103.8 м2
2 из 3
2 705 р. за м2
195.5 м2
3 из 3
2 705 р. за м2
109.4 м2
3 из 3
2 705 р. за м2
103.3 м2
3 из 3
2 705 р. за м2

Вы просматривали

528 851 р. 2 705 р. за м2
Партизанский р-н
299 998 р. 2 705 р. за м2
Партизанский р-н
1 224 881 р. 1 737 р. за м2
Первомайский р-н
191 116 р. 5 522 р. за м2
Центральный р-н
465 455 р. 5 212 р. за м2
Первомайский р-н
Офис, 110.9 м2
Минск, пер. Козлова, д. 5/А
299 998 р.
2 705 р. за м2
Андрей Смолка
Пожалуйста, скажите, что нашли этот объект на Domovita.by
+
Фильтр сохранен