Выберите валюту для сайта:
BYN
Подать БЕСПЛАТНО

Купить офис на пер. Липковский, д. 34 в Минске, 1774100USD, код 6502

3548.2 м2 Первомайский район
5 137 261 р.
Офис
Город Минск
Район Первомайский район
Адрес пер. Липковский, д. 34
Площадь 3548.2 м2
Удобства
Кондиционер
Парковка

Описание

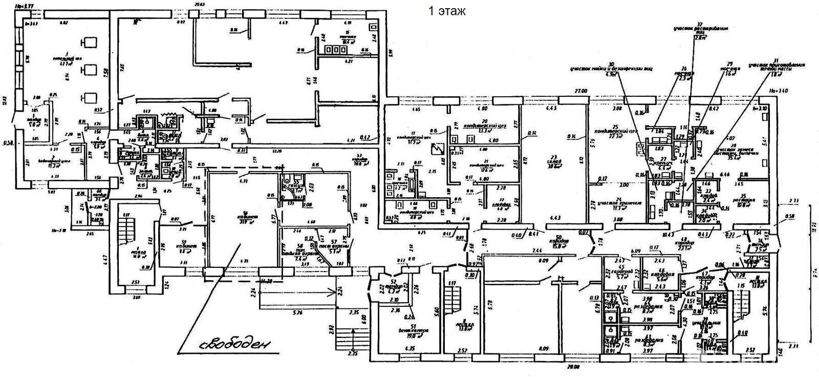
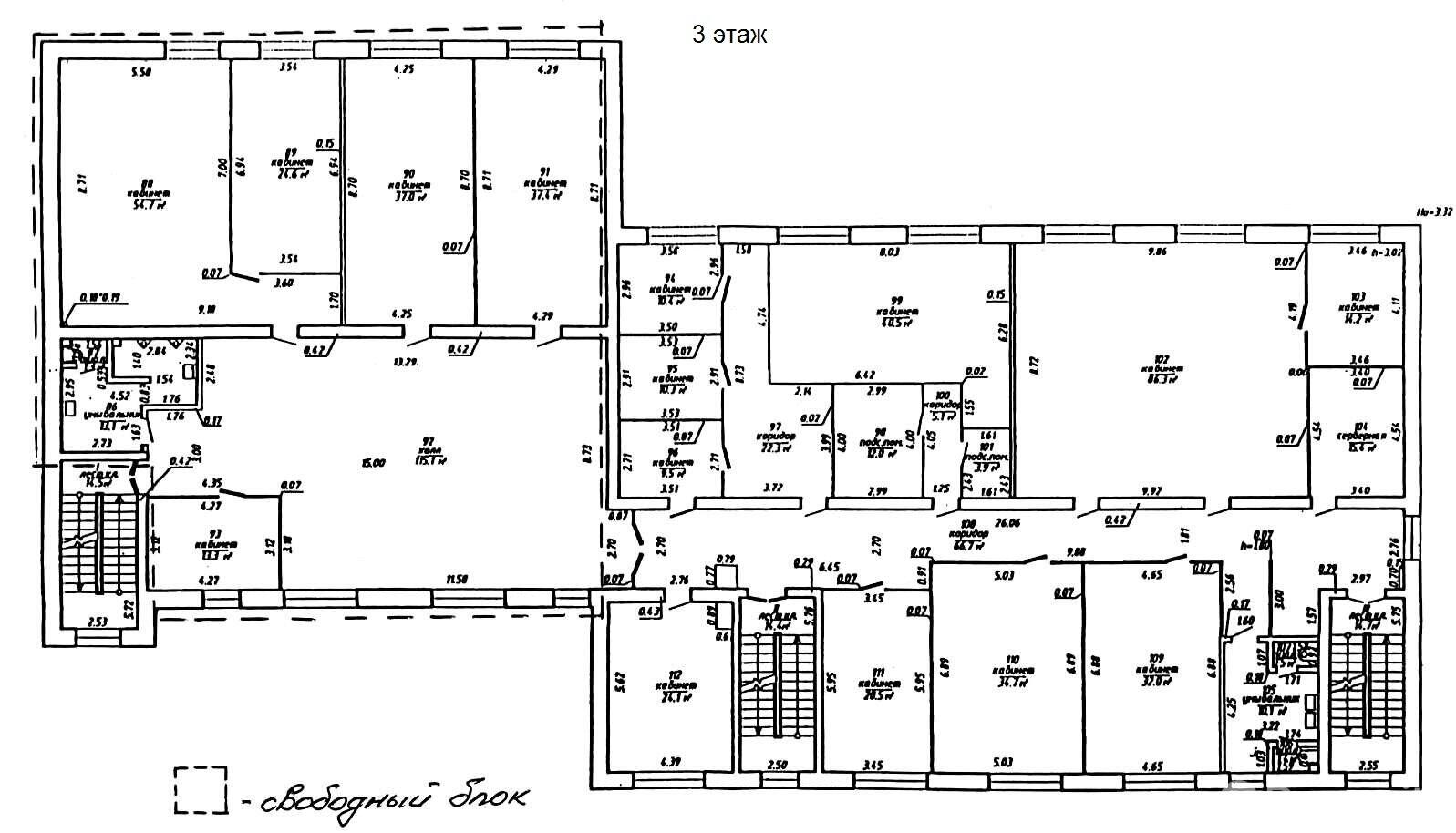
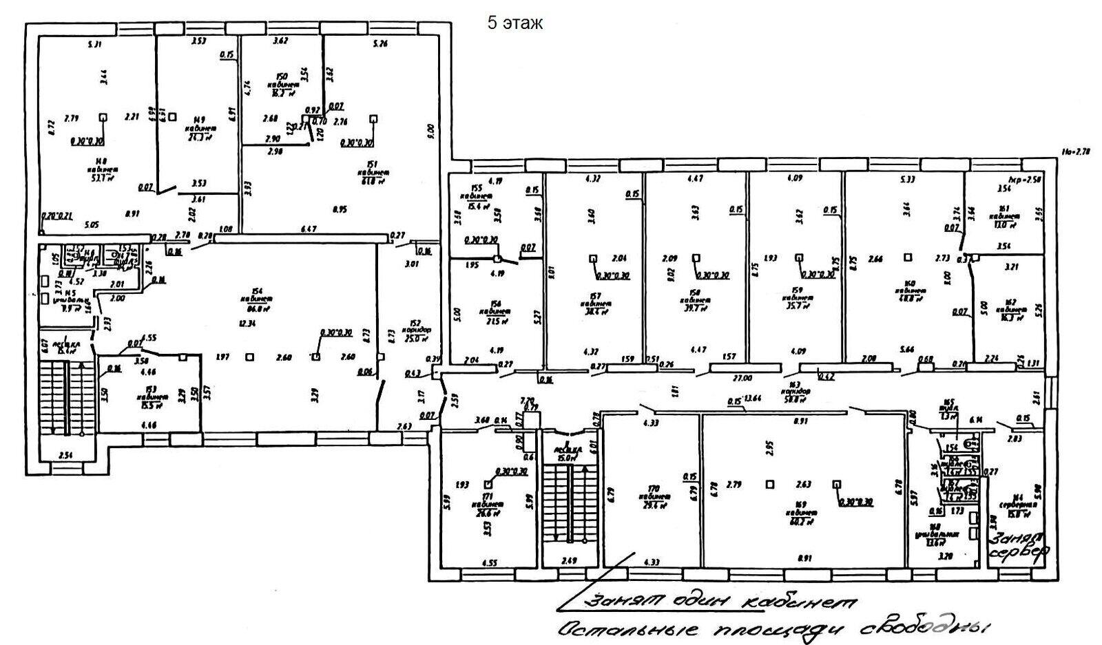
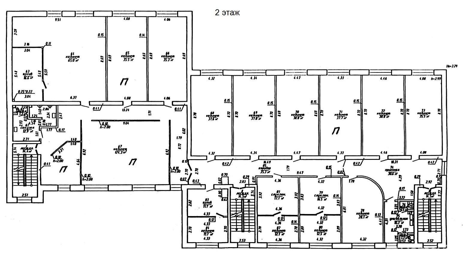
Продажа административных помещений

Адрес: г. Минск, пер. Липковский, д. 34

Площадь – от 310 м2 до 3548,2 м2

Изолированные помещения: 657.0 м2, 705.0 м2, 717.4 м2, 705.0 м2, 310.8 м2, 457.3 м2

• закрытая охраняемая территория. Въезд под шлагбаум

• в помещениях выполнен ремонт, наличие оптоволоконной сети;

• приточно-вытяжная вентиляция, в некоторых кабинетах установлены кондиционеры;

• большая удобная парковка возле здания;

• рядом расположены столовая, кафе, в пешей доступности остановка общественного транспорта.

064,28 Га. Право постоянного пользования.

Покупатель не оплачивает услуги риэлтерской организации!

Ваш агент – Андрей Смолка.

Больше предложений на САЙТЕ Silvan7800.by

Присоединяйтесь к нам в соцсетях:

Instagram

Facebook

VK

OK

YouTube

Код объекта: 6502 Договор с собственником: 56/3 от 2023-05-10 Опубликовано: 20.10.2023 Обновлено: 15.11.2025
Динамика цен за кв. метрДинамика цен
Похожие объекты
Адрес
Комнат
Площадь
Этаж
Цена за м2
Цена
705.7 м2
2 из 5
1 737 р. за м2
452.3 м2
5 из 5
1 737 р. за м2
657 м2
1 из 5
1 737 р. за м2
717.4 м2
3 из 5
1 737 р. за м2
705 м2
4 из 5
1 737 р. за м2

Вы просматривали

86 871 р. 410 р. за м2
5 137 261 р. 1 448 р. за м2
Первомайский р-н
3 262 440 р. 4 199 р. за м2
Партизанский р-н
Офис, 3548.2 м2
Минск, пер. Липковский, д. 34
5 137 261 р.
1 448 р. за м2
Евгений Адамович
Пожалуйста, скажите, что нашли этот объект на Domovita.by
+
Фильтр сохранен