Купить офис на пер. Монтажников 4-й, д. 5 в Минске, 134900USD, код 10244

245.7 м2 4 этаж из 4 Фрунзенский район / Сухарево
382 320 р.
Офис
Город Минск
Район Фрунзенский район
Микрорайон Сухарево
Адрес пер. Монтажников 4-й, д. 5
Год постройки 2014 г.
Площадь 245.7 м2
Этаж 4

Описание

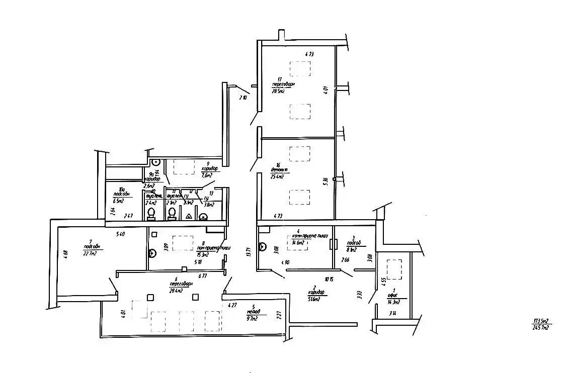
Продается административное помещение 245 м2, пер. 4-й Монтажников, 5

Помещение с ремонтом и полностью готово под использование Вашего бизнеса.

Грамотная планировка состоит из 7 изолированных помещений, кухни, просторного коридора и 4 санузлов.

Помещение находится на 4 этаже. (мансардный). Имеется два входа, один из которых отдельный.

Достаточное кол-во парковочных мест.

Удобный выезд на МКАД.

 

Стоимость указана с НДС.

Ключи в день сделки.

Лицензия: 02240/446 от 11.07.2022, Министерство юстиции РБ

Код объекта: 10244 Договор с собственником: 957/1 от 2025-12-11 Опубликовано: 08.04.2026 Обновлено: 14.04.2026
Динамика цен за кв. метрДинамика цен
Похожие объекты
Адрес
Комнат
Площадь
Этаж
Цена за м2
Цена
92.9 м2
1 из 20
4 577 р. за м2
7-комнатная
233.6 м2
3 из 3
1 576 р. за м2
5-комнатная
111.4 м2
3 из 3
2 089 р. за м2
4-комнатная
152.7 м2
2 из 9
2 548 р. за м2
7-комнатная
267 м2
1 из 9
2 548 р. за м2

Вы просматривали

382 320 р. 1 559 р. за м2
Фрунзенский р-н
Офис, 245.7 м2
Минск, пер. Монтажников 4-й, д. 5
382 320 р.
1 559 р. за м2
Фаттория
Пожалуйста, скажите, что нашли этот объект на Domovita.by
+
Фильтр сохранен