Выберите валюту для сайта:
BYN
Подать БЕСПЛАТНО

Купить офис на пер. Одоевского, д. 131 в Минске, 387000USD, код 10156

515.1 м2 4 этаж из 5 Фрунзенский район / Одоевского Кунцевщина
1 142 385 р.
Офис
Город Минск
Район Фрунзенский район
Микрорайон Одоевского
Адрес пер. Одоевского, д. 131
Метро Кунцевщина
Время до метро пешком 15 мин.
Время до метро на транспорте 8 мин.
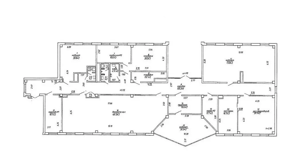
Площадь 515.1 м2
Помещений 10
Этаж 4

Описание

Продается просторное административное помещение, расположенное на четвертом этаже пятиэтажного отдельностоящего административного здания. Общая площадь – 516 кв.м. Просторный коридор, кабинеты, приемная, залы переговоров, кладовые, демонстративный зал, сервисная, два сан узла. Доступ возможен 24/7, круглосуточная охрана, пропускная система, по всему периметру здания установлено видеонаблюдение. Плоскостная парковка находится перед зданием, без закрепления машиномест. Естественное освещение, отопление, пожарно-охранная сигнализация, оптоволокно. Отличное транспортное сообщение. Две минуты ходьбы до остановки общественного транспорта, 15 минут ходьбы до станции метро «Кунцевщина». Удобный выезд на основные магистрали города. Идеальный вариант для ведения бизнеса! Покажем в удобное для Вас время. Не упустите шанс стать владельцем данного объекта! Ещё больше объектов недвижимости в нашем Telegram-канале @urielt_minsk
Код объекта: 10156 Договор с собственником: #174/1 от 23.09.2024 Опубликовано: 10.03.2026 Обновлено: 10.03.2026
Динамика цен за кв. метрДинамика цен
Похожие объекты
Адрес
Комнат
Площадь
Этаж
Цена за м2
Цена
104.2 м2
1 из 9
3 823 р. за м2

Вы просматривали

1 142 385 р. 2 218 р. за м2
Фрунзенский р-н
Офис, 515.1 м2
Минск, пер. Одоевского, д. 131
1 142 385 р.
2 218 р. за м2
Наталия
Пожалуйста, скажите, что нашли этот объект на Domovita.by
+
Фильтр сохранен