Выберите валюту для сайта:
BYN
Подать БЕСПЛАТНО

Купить офис на пл. Свободы, д. 17 в Минске, 798000USD, код 7943

386.2 м2 2 этаж из 10 Центральный район / Ленина Немига
2 310 769 р.
Офис
Город Минск
Район Центральный район
Микрорайон Ленина
Адрес пл. Свободы, д. 17
Метро Немига
Время до метро пешком 2 мин.
Время до метро на транспорте 1 мин.
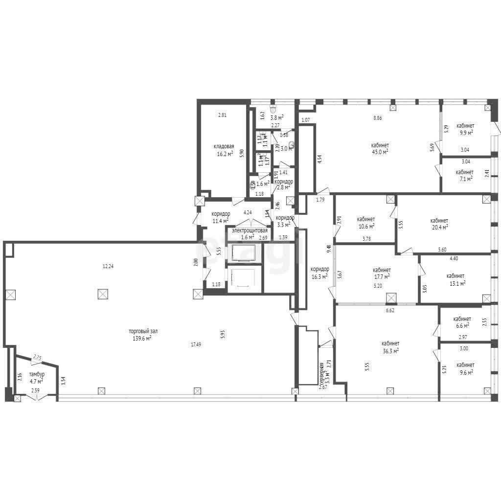
Площадь 386.2 м2
Этаж 2
Удобства
Кондиционер
Парковка

Описание

Топовая локация-центр города, 150 метров до ст. метро Немига, в пешей доступности 2 мин. остановки общественного транспорта, огромный крытый паркинг, кафе, рестораны, банки и магазины в неограниченном количестве.

  Современный качественный ремонт: стены окрашены (цвет можно изменить при необходимости), напольное покрытие керамогранит, ламинат, панорамные окна с видом на Немигу, освещение –подвесные светильники, высота потолков 3,57 м. 

Помещение выполнено в формате open space 128 м. кв., переговорной комнаты, 10 изолированных кабинетов, кухней для приема пищи, 2-х санузлов, серверной, подсобных помещений. Планировку можно изменить под свой запрос.

Все необходимые коммуникации проведены: электроснабжение. Отопление, водоснабжение и канализация, система кондиционирования и приточно-вытяжной вентиляции, высокоскоростной интернет, пожарная сигнализация.

 Помещение идеально подойдет под офис, компьютерный клуб, швейное производство с собственным шоурумом, медицинский центр, ресторан, кафе, сеть быстрого питания, детскую школу развития и т.д.

 

 

Звоните! Покажем в удобное для Вас время.

 

Продадим Вашу недвижимость для покупки этой.

 

Бесплатно для вас консультация кредитного брокера и согласование кредита!

 

 

ООО «ЭТАЖИ юнайтед»

УНП: 193673318

Договор 5566/1 от 26.11.2024г.

Лицензия на оказание риэлтерских услуг №02240/460 МЮ РБ от 03.04.2023 

Код объекта: 7943 Договор с собственником: 5566/1 от 2024-11-26 Опубликовано: 28.11.2024 Обновлено: 25.11.2025
Динамика цен за кв. метрДинамика цен
Похожие объекты
Адрес
Комнат
Площадь
Этаж
Цена за м2
Цена
386.2 м2
2 из 11
8 398 р. за м2

Вы просматривали

2 310 769 р. 5 983 р. за м2
Центральный р-н
1 510 397 р. 2 896 р. за м2
Московский р-н
Офис, 386.2 м2
Минск, пл. Свободы, д. 17
2 310 769 р.
5 983 р. за м2
Людмила
Пожалуйста, скажите, что нашли этот объект на Domovita.by
+
Фильтр сохранен