Выберите валюту для сайта:
BYN
Подать БЕСПЛАТНО

Купить офис на пр-т Дзержинского, д. 69/2 в Минске, 320000USD, код 8795

213.3 м2 1 этаж из 5 Московский район / Юго-Запад Петровщина
930 784 р.
Офис
Город Минск
Район Московский район
Микрорайон Юго-Запад
Адрес пр-т Дзержинского, д. 69/2
Метро Петровщина
Время до метро пешком 3 мин.
Время до метро на транспорте 2 мин.
Год постройки 2005 г.
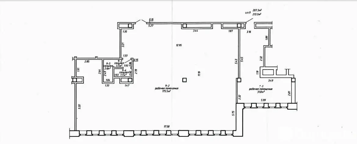
Площадь 213.3 м2
Этаж 1

Описание

Продаётся помещение под офис либо сферу услуг в шаговой доступности от метро Петровщина ул. Дзержинского 69/2, Бизнес центре «Шик». 

 

-Общая площадью 213,3 м2. Высота потолков 3,04 м2.

Помещение имеет просторный холл, разделено на 4 раздельных кабинета; 5й кабинет имеет свой отдельный вход. Его можно использовать как совместно, так и отдельно. Выделена зона кухни. Имеются свои сан узлы. Оборудована серверная. Есть охранная система. Организованы места под хранение. Установлено 2 кондиционера.

Все что есть на фото остаётся.


-По всей территории организовано видеонаблюдение.

-Круглосуточный доступ в здание.

- Бесплатная стоянка (есть и платная).

- Столовая в соседнем здании

Локация с высоким пешеходным трафиком, большой жилой массив. В шаговой доступности остановки общественного транспорта, магазины, аптеки, пункты общественного питания и др.

По соседству расположены Беларусбанк и Банковский процессинговый центр.В 50 метрах вход в метро «Петровщина». Удобный выезд на МКАД.


 

Готовы провести сделку в кратчайшие сроки! Если у Вас остались какие-либо вопросы – звоните и мы с удовольствием на них ответим.

Бесплатно проведем оценку и окажем помощь в продаже Вашей недвижимости.  

Код объекта: 8795 Договор с собственником: 597/2 от 2024-05-06 Опубликовано: 05.06.2025 Обновлено: 05.11.2025
Динамика цен за кв. метрДинамика цен
Похожие объекты
Адрес
Комнат
Площадь
Этаж
Цена за м2
Цена
130.3 м2
1 из 9
5 358 р. за м2
1-комнатная
159.6 м2
4 из 5
3 991 р. за м2

Вы просматривали

930 784 р. 4 363 р. за м2
Московский р-н
Офис, 213.3 м2
Минск, пр-т Дзержинского, д. 69/2
930 784 р.
4 363 р. за м2
Пожалуйста, скажите, что нашли этот объект на Domovita.by
+
Фильтр сохранен