Выберите валюту для сайта:
BYN
Подать БЕСПЛАТНО

Купить офис на ул. Якуба Коласа, д. 51/1 в Минске, 420000USD, код 7851

354.8 м2 1 этаж из 4 Советский район / Беды Академия наук
1 201 872 р.
Офис
Город Минск
Район Советский район
Микрорайон Беды
Адрес ул. Якуба Коласа, д. 51/1
Метро Академия наук
Время до метро пешком 13 мин.
Время до метро на транспорте 7 мин.
Год постройки 1947 г.
Площадь 354.8 м2
Этаж 1
Удобства
Круглосуточный доступ
Отдельный вход
Парковка

Описание

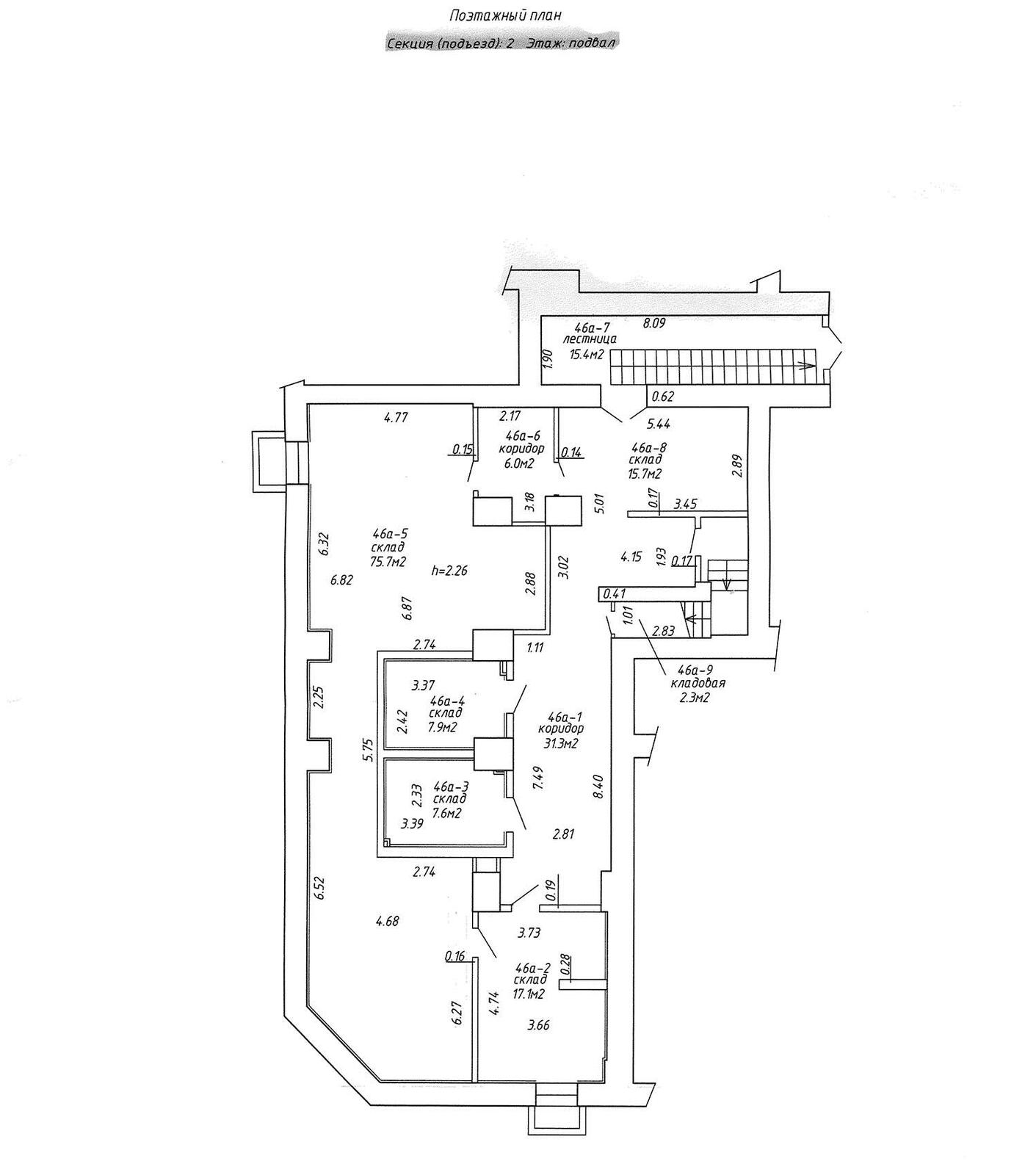
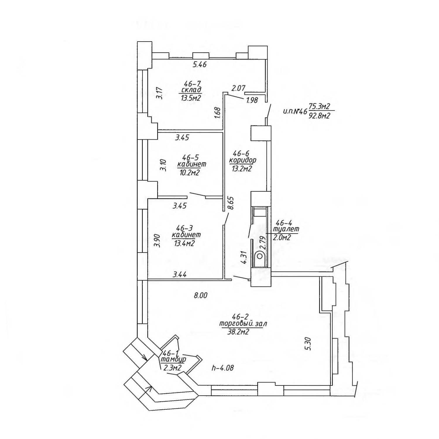
Продажа помещения на 1 этаже
Адрес: г. Минск, ул. Коласа, д. 51/1
Площадь общая: 354,8 м2
Торговое (Аптека) - 92,8 м2
Офисы - 80,7м2
Склад - 181,3 м2
Продажа помещений с 2 отдельными входами, на 1 этаже четырехэтажного кирпичного жилого дома 1947 года постройки, капитальное строение является памятником историко- культурного наследия.
Подходит под офис, сферу услуг, торговлю, кафе.
Готовый действующий арендный бизнес с ежемесячным доходом 3073. Один постоянный арендатор.

Характеристики:
- Отдельный вход
- Электричество
- Водоснабжение
- Отопление
- Вентиляция
- Отличные подъездные пути
- Доступ 24/7
- Парковка

Покупатель не оплачивает услуги риэлтерской организации!

Ваш агент – Андрей Смолка

Больше предложений на САЙТЕ Silvan7800.by

Присоединяйтесь к нам в соцсетях:
Instagram
Facebook
VK
OK
YouTube
Договор № 58/3 от 17.09.2024 по 16.03.25
ООО «Сильван-Инвест», УНП 192927433, лицензия №02240/383, Министерство юстиции РБ, 24.09.2019.

Код объекта: 7851 Договор с собственником: 58/3 от 2024-09-17 Опубликовано: 04.11.2024 Обновлено: 14.01.2026
Динамика цен за кв. метрДинамика цен
Похожие объекты
Адрес
Комнат
Площадь
Этаж
Цена за м2
Цена
97.1 м2
4 421 р. за м2
32.6 м2
3 из 5
7 022 р. за м2
9.1 м2
3 из 3
3 742 р. за м2
5.6 м2
3 из 3
4 497 р. за м2

Вы просматривали

1 201 872 р. 3 387 р. за м2
Советский р-н
9 157 120 р. 2 289 р. за м2
Советский р-н
Офис, 354.8 м2
Минск, ул. Якуба Коласа, д. 51/1
1 201 872 р.
3 387 р. за м2
Смолка Андрей
Пожалуйста, скажите, что нашли этот объект на Domovita.by
+
Фильтр сохранен