Выберите валюту для сайта:
BYN
Подать БЕСПЛАТНО

Купить офис на ул. Азгура, д. 1 в Минске, 176400USD, код 9467

84 м2 Партизанский район / Захарова Пролетарская
510 801 р.
Офис
Город Минск
Район Партизанский район
Микрорайон Захарова
Адрес ул. Азгура, д. 1
Метро Пролетарская
Время до метро пешком 17 мин.
Время до метро на транспорте 9 мин.
Год постройки 2001 г.
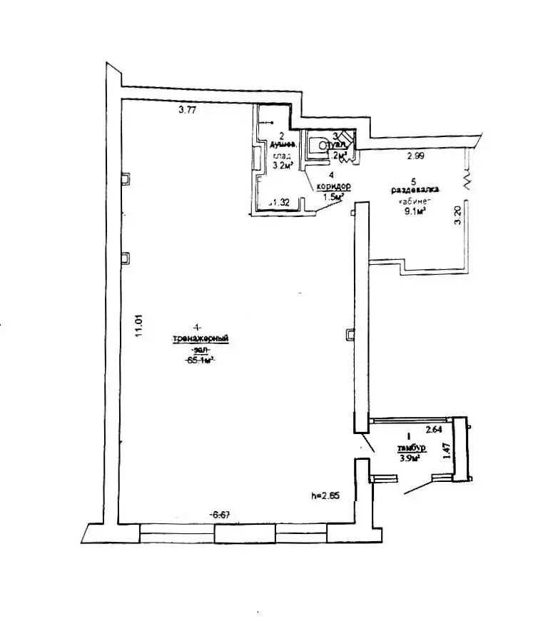
Площадь 84 м2

Описание

Предлагается на продажу современное коммерческое помещение - офис, идеально подходящее для реализации различных бизнес-проектов, в самом центре Минска - Площадь Победы. 

Помещение расположено на первом этаже жилого дома с независимым входом, предусмотрела небольшая автопарковка. Помещение оборудовано кондиционерами. Наличие отдельных зон позволяет организовать работу с разной клиентской базой, обеспечивая высокий уровень сервиса. Благодаря удобному расположению (две станции метро - пл.Победы и Пролетарская в шаговой доступности 5 мин., рядом трамвайная линия, остановки городского общественного транспорта) и продуманной планировке, данное помещение обладает высоким потенциалом для привлечения постоянных клиентов и стабильного дохода.

В настоящее время в помещение располагается организация, готовая арендовать помещение на долгий срок. Это отличная инвестиция для предпринимателей, желающих расширить или открыть новый бизнес в перспективной сфере.

Возможна покупка в рассрочку или при помощи кредита, гибкие условия сотрудничества.

Звоните сейчас, чтобы получить дополнительную информацию и договориться о просмотре.

Лицензия: 02240/483 МЮ РБ, 18.05.2024

Код объекта: 9467 Договор с собственником: 363/1,364/1 от 2025-10-23 Опубликовано: 05.11.2025 Обновлено: 27.11.2025
Динамика цен за кв. метрДинамика цен
Похожие объекты
Адрес
Комнат
Площадь
Этаж
Цена за м2
Цена
1010.4 м2
4 из 7
2 606 р. за м2
116.9 м2
5 из 7
4 633 р. за м2
777 м2
4 199 р. за м2
1-комнатная
116.9 м2
5 из 5
4 633 р. за м2
116.9 м2
5 из
3 764 р. за м2

Вы просматривали

785 835 р. 1 737 р. за м2
Первомайский р-н
3 262 440 р. 4 199 р. за м2
Партизанский р-н
510 801 р. 6 081 р. за м2
Партизанский р-н
2 305 487 р. 4 630 р. за м2
Советский р-н
347 484 р. 6 313 р. за м2
Советский р-н
600 858 р. 1 448 р. за м2
Фрунзенский р-н
115 828 р. 2 461 р. за м2
Центральный р-н
Офис, 84 м2
Минск, ул. Азгура, д. 1
510 801 р.
6 081 р. за м2
Татьяна
Пожалуйста, скажите, что нашли этот объект на Domovita.by
+
Фильтр сохранен