Выберите валюту для сайта:
BYN
Подать БЕСПЛАТНО

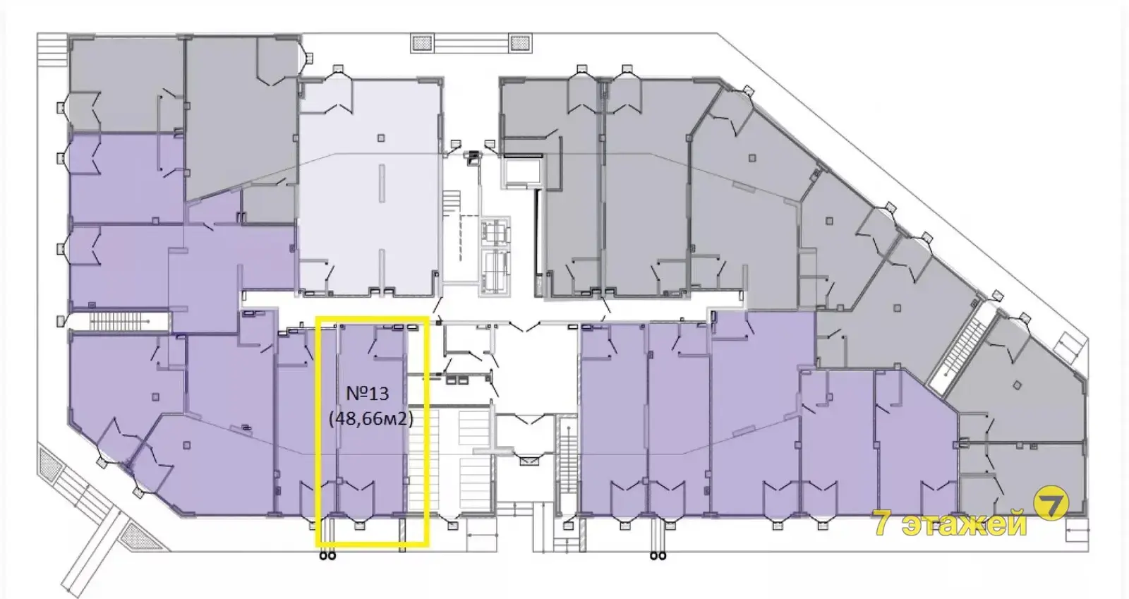
Купить офис на ул. Жореса Алфёрова, д. 14 в Минске, 94284EUR, код 6041

48.6 м2 Октябрьский район / Маяковского Аэродромная
318 812 р.
Офис
Город Минск
Район Октябрьский район
Микрорайон Маяковского
Адрес ул. Жореса Алфёрова, д. 14
Метро Аэродромная
Время до метро пешком 8 мин.
Время до метро на транспорте 4 мин.
Площадь 48.6 м2
Удобства
Отдельный вход

Описание

Открывать свой бизнес на первом этаже жилого дома – очень выгодный вариант, ведь не нужно возводить отдельное здание и можно легко получить постоянных клиентов, в виде жильцов этой новостройки. В доме "Аруба" Вы можете купить не только квартиры с панорамными окнами и свободной планировкой. На первом этаже запроектирована коммерческая недвижимость. Ее можно сдавать в аренду или использовать для развития собственного бизнеса. Торговые помещения на 1 этаже имеют отдельный вход с улицы, каждое помещение имеет свои коммуникации. Высота потолков – 3,6 метра Цена и наличие актуальны на 20.08.2025
Код объекта: 6041 Договор с собственником: 43/3-10/10.8-13 от 11.01.2024 Опубликовано: 19.07.2023 Обновлено: 23.09.2025
Динамика цен за кв. метрДинамика цен
Похожие объекты
Адрес
Комнат
Площадь
Этаж
Цена за м2
Цена
46.2 м2
6 560 р. за м2
81 м2
6 222 р. за м2
79.5 м2
1 из 25
6 222 р. за м2
74.6 м2
1 из 25
6 222 р. за м2
81 м2
1 из 25
6 222 р. за м2

Вы просматривали

301 225 р. 2 751 р. за м2
Октябрьский р-н
318 812 р. 6 560 р. за м2
Октябрьский р-н
283 779 р. 1 270 р. за м2
Железнодорожный р-н
99 902 р. 2 737 р. за м2
Первомайский р-н
7 239 250 р. 8 114 р. за м2
Фрунзенский р-н
7 544 022 р. 7 239 р. за м2
Центральный р-н
69 410 р. 2 461 р. за м2
Заводской р-н
Офис, 48.6 м2
Минск, ул. Жореса Алфёрова, д. 14
318 812 р.
6 560 р. за м2
Агент
Пожалуйста, скажите, что нашли этот объект на Domovita.by
+
Фильтр сохранен