Выберите валюту для сайта:
BYN
Подать БЕСПЛАТНО

Купить офис на ул. Каховская, д. 17 в Минске, 252600USD, код 9555

126.3 м2 1 этаж из 10 Центральный район / Старовиленский
731 454 р.
Офис
Город Минск
Район Центральный район
Микрорайон Старовиленский
Адрес ул. Каховская, д. 17
Год постройки 2013 г.
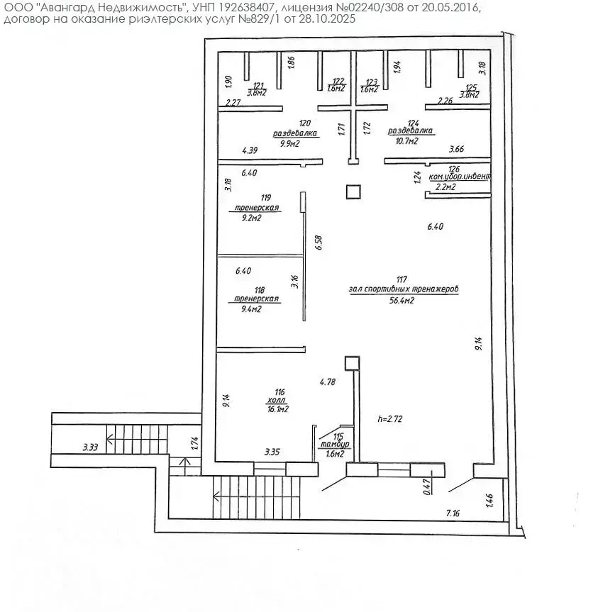
Площадь 126.3 м2
Этаж 1

Описание

Продажа помещения с отдельным входом площадью 126,3 м2, расположенное по адресу: г. Минск, ул. Каховская, 17.

Общие характеристики:

- назначение - помещение физкультурно-оздоровительного и спортивного назначения;

- присутствует отдельный вход;

- действующая приточно-вытяжная вентиляция;

- установлен кондиционер;

- присутствует видеонаблюдение.

 

Развитая инфраструктура.Объект находится в районе улиц Орловская - Нововиленская - Червякова. 10 минут езды на автомобиле до центра города. В шаговой доступности находятся остановки общественного транспорта с большим количеством маршрутов в разные части города.

 

Важно! Собственник работает без НДС. Помещение сдано в аренду. Более подробную информацию о помещении уточняйте по номеру телефона или в мессенджерах.

Звоните прямо сейчас!

Код объекта: 9555 Договор с собственником: 829/1 от 2025-10-28 Опубликовано: 20.11.2025 Обновлено: 20.11.2025
Динамика цен за кв. метрДинамика цен
Похожие объекты
Адрес
Комнат
Площадь
Этаж
Цена за м2
Цена
126.3 м2
5 732 р. за м2

Вы просматривали

731 454 р. 5 791 р. за м2
Центральный р-н
Офис, 126.3 м2
Минск, ул. Каховская, д. 17
731 454 р.
5 791 р. за м2
Виктория
Пожалуйста, скажите, что нашли этот объект на Domovita.by
+
Фильтр сохранен