Выберите валюту для сайта:
BYN
Подать БЕСПЛАТНО

Купить офис на ул. Михася Лынькова, д. 37/1 в Минске, 254900USD, код 8793

290.2 м2 Фрунзенский район / Масюковщина
738 114 р.
Офис
Город Минск
Район Фрунзенский район
Микрорайон Масюковщина
Адрес ул. Михася Лынькова, д. 37/1
Площадь 290.2 м2

Описание

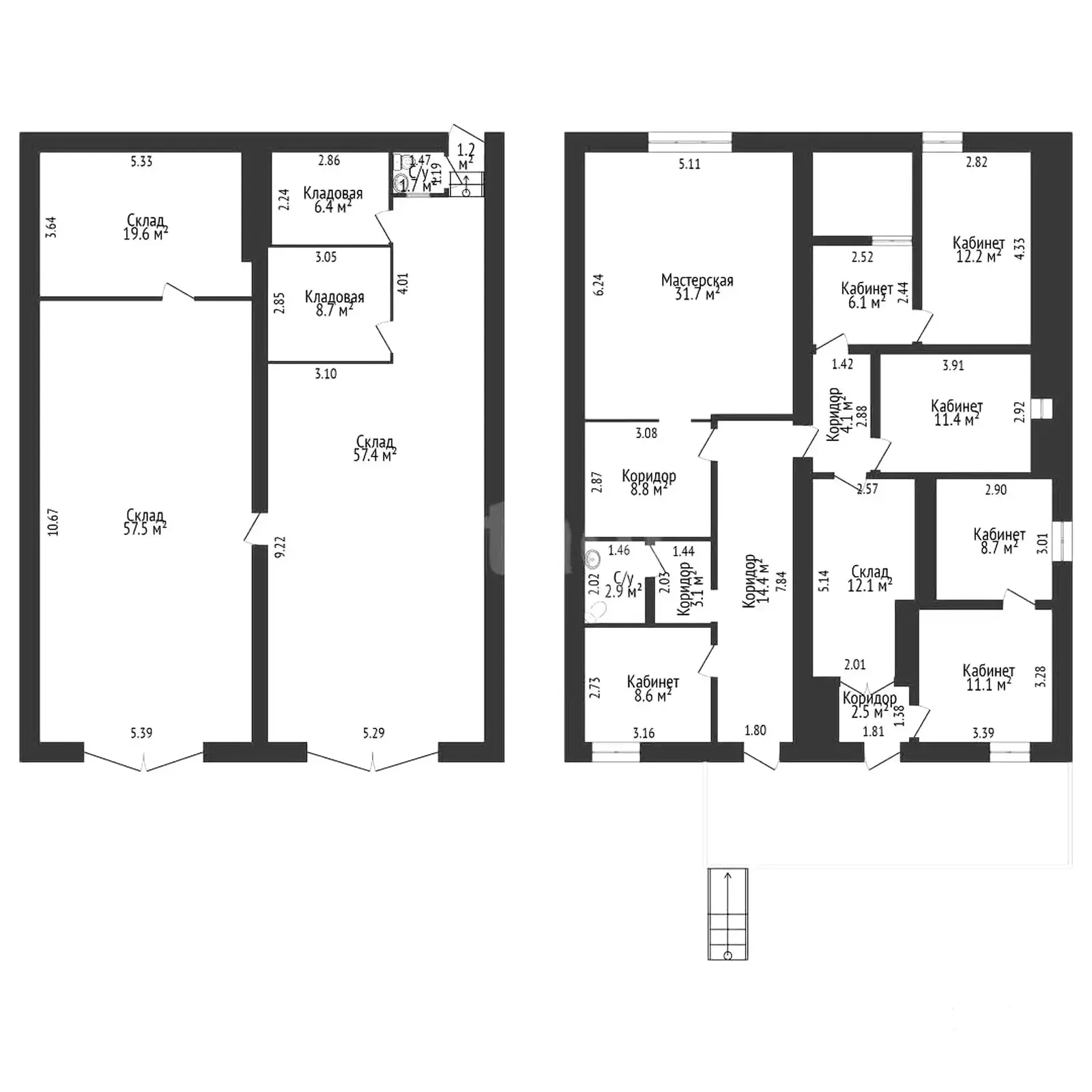
Продается административно-хозяйственное здание, расположенное по адресу: М. Лынькова 37/1

1 Этаж: оборудован и используется как складское помещение, высота потолков 3,5 метра. Предусмотрена возможность оборудовать помещение системами хранения и стеллажами.

Подъездные пути асфальтированы, въезд регулируется своим шлагбаумом, на территории ведется видео наблюдение

2 Этаж: представляет собой хорошо спланированную структуру из помещений, организованы для офисной работы.  Высота потолков 3 метра.

 

*Развитая инфраструктура, удобное транспортное сообщение

*Пожарная сигнализация.

*Оптоволокно, 7-мь высокоскоростных линий

*Свое отопление на газу

*Напряжение сети 220 /380 вольт

*Круглосуточное видеонаблюдение.

 

Объект находится в частной собственности и организован, как рабочая бизнес-модель с ежемесячным доходом от аренды помещений.

Большая часть помещений сейчас сданы в аренду.  При необходимости есть возможность полностью освободить все помещения, по согласованию.

 

Приглашаем на просмотр.

Консультация и помощь в выборе программы кредитования!

Продадим Вашу недвижимость для покупки этой!

Ответим на все интересующие вопросы, согласуем удобное время показа!

Полное юридическое сопровождение сделки гарантируем!

Лицензия: №02240/362 от 31.07.2018, Министерство юстиции РБ

Код объекта: 8793 Договор с собственником: 824/1 от 2025-06-03 Опубликовано: 05.06.2025 Обновлено: 04.12.2025
Динамика цен за кв. метрДинамика цен
Похожие объекты
Адрес
Комнат
Площадь
Этаж
Цена за м2
Цена
4142.5 м2
1 328 р. за м2
1-комнатная
25.1 м2
3 из 3
3 196 р. за м2

Вы просматривали

738 114 р. 2 543 р. за м2
Фрунзенский р-н
Офис, 290.2 м2
Минск, ул. Михася Лынькова, д. 37/1
738 114 р.
2 543 р. за м2
Агент
Пожалуйста, скажите, что нашли этот объект на Domovita.by
+
Фильтр сохранен