Выберите валюту для сайта:
BYN
Подать БЕСПЛАТНО

Купить офис на ул. Некрасова, д. 31 в Минске, 2200000USD, код 7093

3345.9 м2 Советский район / Беды Академия наук
6 370 540 р.
Офис
Город Минск
Район Советский район
Микрорайон Беды
Адрес ул. Некрасова, д. 31
Метро Академия наук
Время до метро пешком 22 мин.
Время до метро на транспорте 12 мин.
Год постройки 1983 г.
Площадь 3345.9 м2
Удобства
Отдельный вход
Кондиционер
Парковка

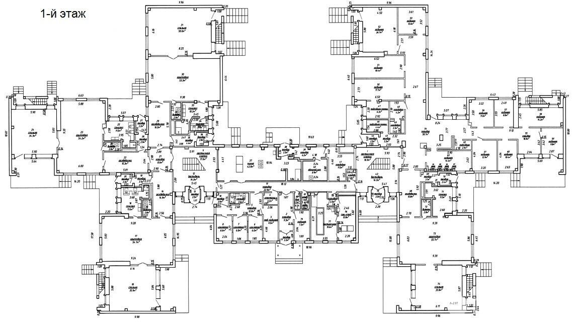
Описание

г. Минск, ул. Некрасова, 31

Общая площадь: 3 345.9 м2

Зем. участок: 0,9438 га (право постоянного пользования)

Арендный бизнес с доходностью 12 % годовых.

Двухэтажное здание с подвальным уровнем и отдельными входами:

• помещения с хорошей отделкой; 2 душевые и более 10-и изол. санузлов;

• система кондиционирования, приточно-вытяжная вентиляция;

• благоустроенная огороженная территория;

• своя парковка на 24 м/м;

• удобное местоположение с хорошей транспортной доступностью и развитой инфраструктурой: вблизи расположены магазины, объекты сферы услуг и общепита, отделения банков, Парк Дружбы народов.

Ваш агент - Андрей Смолка

Код объекта: 7093 Договор с собственником: 107/3 от 2023-10-12 Опубликовано: 05.04.2024 Обновлено: 13.11.2025
Динамика цен за кв. метрДинамика цен
Похожие объекты
Адрес
Комнат
Площадь
Этаж
Цена за м2
Цена
3345.9 м2
1 из 2
1 645 р. за м2

Вы просматривали

6 370 540 р. 1 911 р. за м2
Советский р-н
Офис, 3345.9 м2
Минск, ул. Некрасова, д. 31
6 370 540 р.
1 911 р. за м2
Андрей Смолка
Пожалуйста, скажите, что нашли этот объект на Domovita.by
+
Фильтр сохранен