Выберите валюту для сайта:
BYN
Подать БЕСПЛАТНО

Купить офис на ул. Некрасова, д. 88 в Минске, 417000USD, код 10194

464.1 м2 1 этаж из 3 Советский район / Беды
1 230 942 р.
Офис
Город Минск
Район Советский район
Микрорайон Беды
Адрес ул. Некрасова, д. 88
Площадь 464.1 м2
Этаж 1

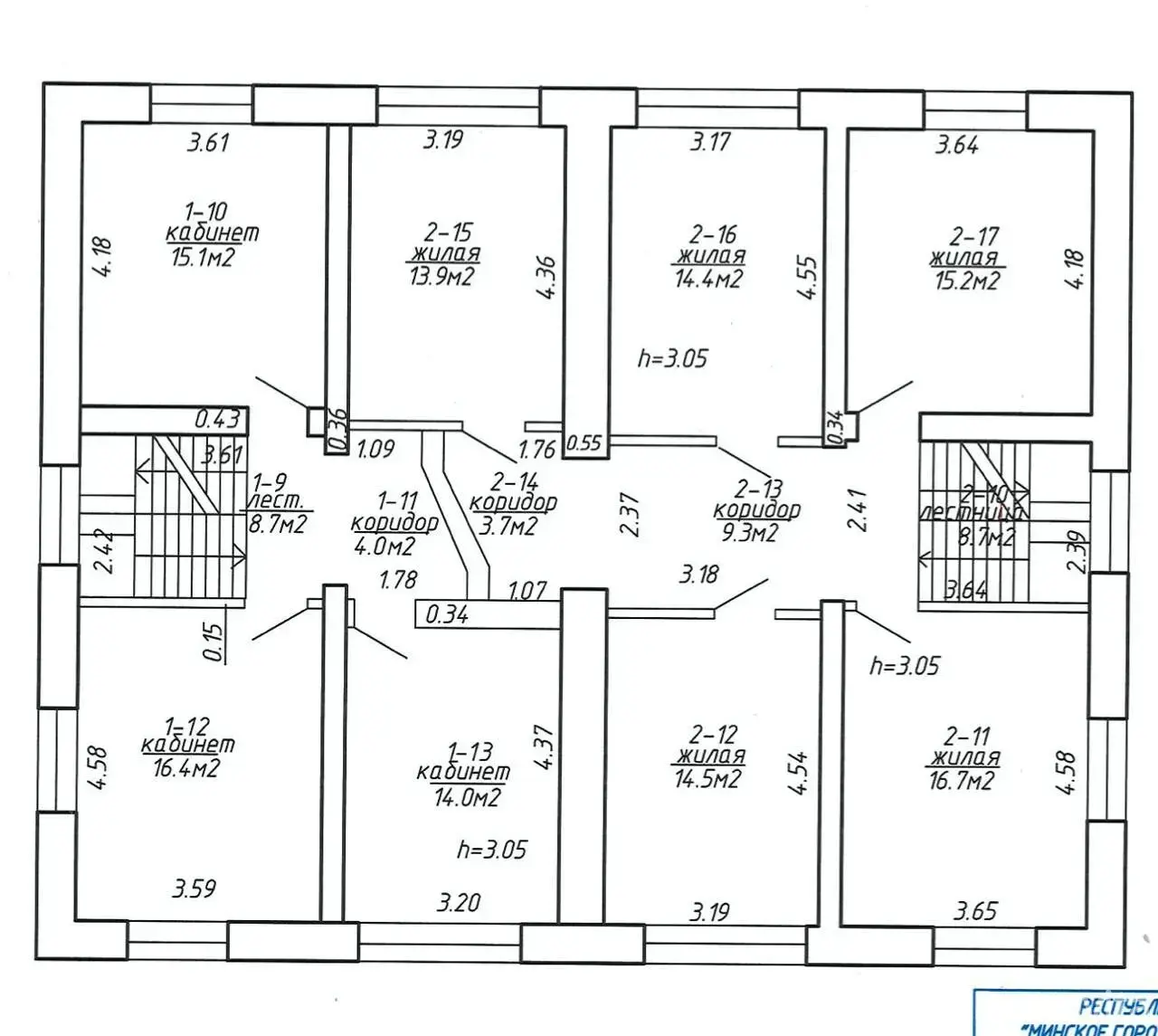
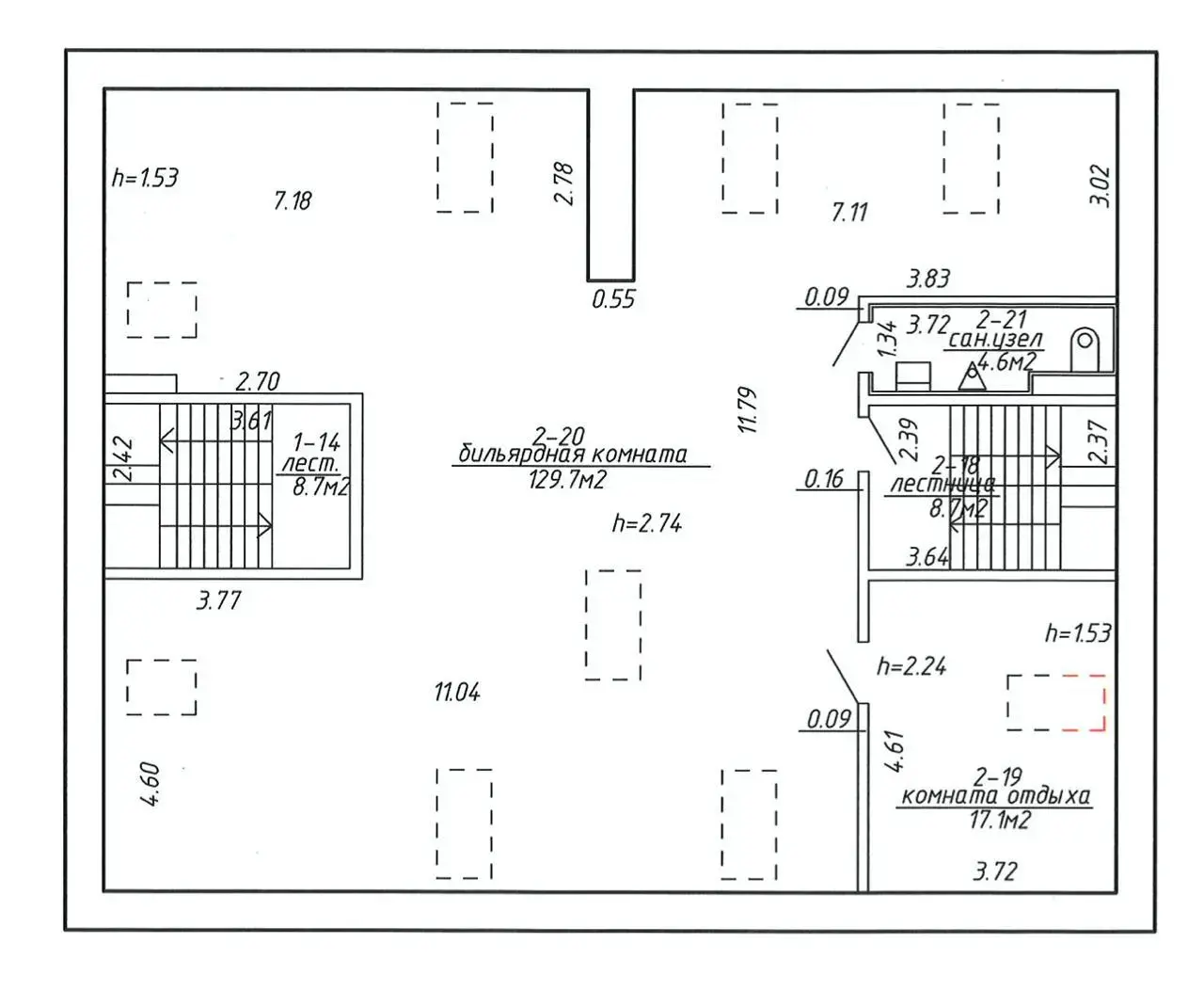
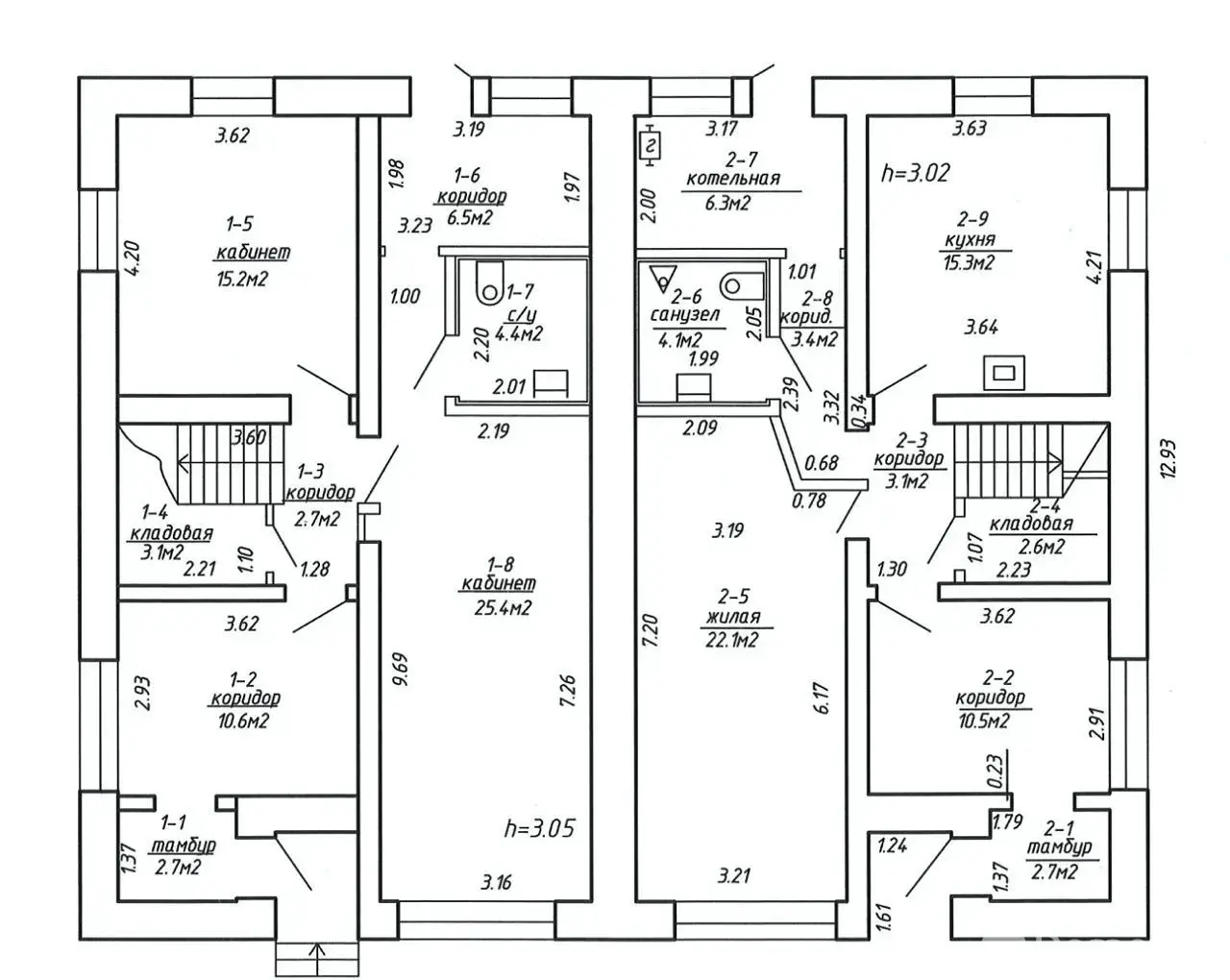
Описание

Продается коттедж-офис 464 м2. Готовое бизнес-пространство «под ключ» в перспективной локации.

 

Предлагаем уникальную возможность приобрести не просто здание, а готовую эффективную среду для работы вашей компании. Это идеальный вариант для IT-компании, проектного бюро, штаб-квартиры или креативного агентства, ценящих комфорт и приватность.

 

Ключевые преимущества объекта:

 

 1.  Готовая инфраструктура:

  Планировка: Четкая кабинетная система на :65+ рабочих мест (из них 25 опен спейс).

  Комфорт: Все кабинеты оборудованы системами кондиционирования.

  Удобство: Три санузла.

  Коммуникации: Отдельная комната для собраний и презентаций.

  Интернет: к офису подведено оптоволокно.

2.  Выгодные инвестиции:

  Вы прекращаете зависеть от арендодателя и роста арендных ставок.

  Ваш офис — это ликвидный актив, который со временем растет в цене.

  Возможность создать корпоративный стиль и атмосферу, укрепляющую команду.

 

3.  Перспективная локация и территория:

  Спокойный, респектабельный район с развитой инфраструктурой.

  В ближайшей перспективе — открытие станции метро в шаговой доступности, что многократно увеличит транспортную доступность и стоимость объекта.

  Собственный участок 4 сотки позволяет организовать охраняемую парковку для сотрудников и гостей, а также создать зону для отдыха.

 

Это предложение для тех, кто думает о стабильности, имидже и будущем своего бизнеса. Объект полностью готов к въезду и началу работы.

 

 

 

 

Смотрите еще больше в нашем Telegram канале @kvadratnyjmetr

 

 

 

УП «Квадратный метр»

УНП: 190003285

Лицензия 02240/29_
от 17.02.2005, Министерство юстиции РБ

Договор     697/24 от 29.12.2025

Код объекта: 10194 Договор с собственником: 697/24 от 2025-12-29 Опубликовано: 21.03.2026 Обновлено: 21.03.2026
Динамика цен за кв. метрДинамика цен
Похожие объекты
Адрес
Комнат
Площадь
Этаж
Цена за м2
Цена
29.02 м2
6 из 6
3 998 р. за м2
91.4 м2
6 из 6
5 167 р. за м2

Вы просматривали

428 026 р. 5 798 р. за м2
Советский р-н
1 230 942 р. 2 652 р. за м2
Советский р-н
Офис, 464.1 м2
Минск, ул. Некрасова, д. 88
1 230 942 р.
2 652 р. за м2
.
Пожалуйста, скажите, что нашли этот объект на Domovita.by
+
Фильтр сохранен