Выберите валюту для сайта:
BYN
Подать БЕСПЛАТНО

Купить офис на ул. Олешева, д. 9 в Минске, 145000USD, код 8417

248 м2 3 этаж из 4 Советский район / Беды
429 240 р.
414 932 р.
Офис
Город Минск
Район Советский район
Микрорайон Беды
Адрес ул. Олешева, д. 9
Год постройки 2013 г.
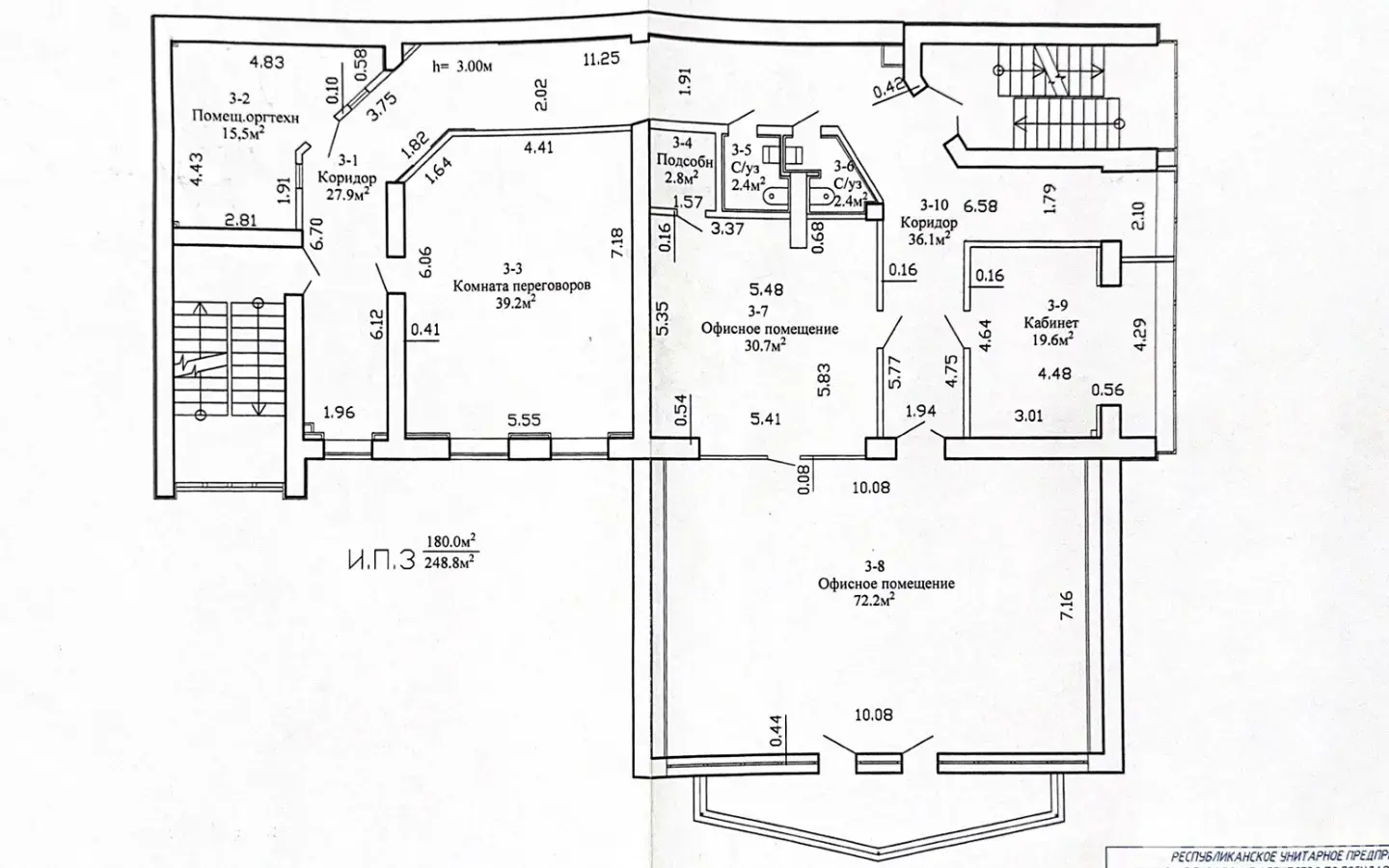
Площадь 248 м2
Этаж 3

Описание

В продаже третий этаж площадью 248 м2 и земли около 2 сотки. Частная собственность, назначение - Административное помещение. Доступ 24/7, центральное отопление, водоснабжение, большие токи, хорошая локация, малые коммунальные платежи. Все окна алюминевые, в каждом помещении , приточно-вытяжная установка с рекуперацией, плитка, двери противопожарные. Огромный плюс - наличие земли!
Код объекта: 8417 Договор с собственником: 1167/2 от 2024-09-05 Опубликовано: 02.04.2025 Обновлено: 05.02.2026
Динамика цен за кв. метрДинамика цен
Похожие объекты
Адрес
Комнат
Площадь
Этаж
Цена за м2
Цена
29.02 м2
6 из 6
3 451 р. за м2
47.7 м2
2 из 3
3 330 р. за м2
15-комнатная
1227 м2
1 из 2
1 445 р. за м2
3345.9 м2
1 889 р. за м2
354.8 м2
1 из 4
3 387 р. за м2

Вы просматривали

414 932 р. 1 673 р. за м2
Советский р-н
Офис, 248 м2
Минск, ул. Олешева, д. 9
414 932 р.
1 673 р. за м2
Пожалуйста, скажите, что нашли этот объект на Domovita.by
+
Фильтр сохранен