Выберите валюту для сайта:
BYN
Подать БЕСПЛАТНО

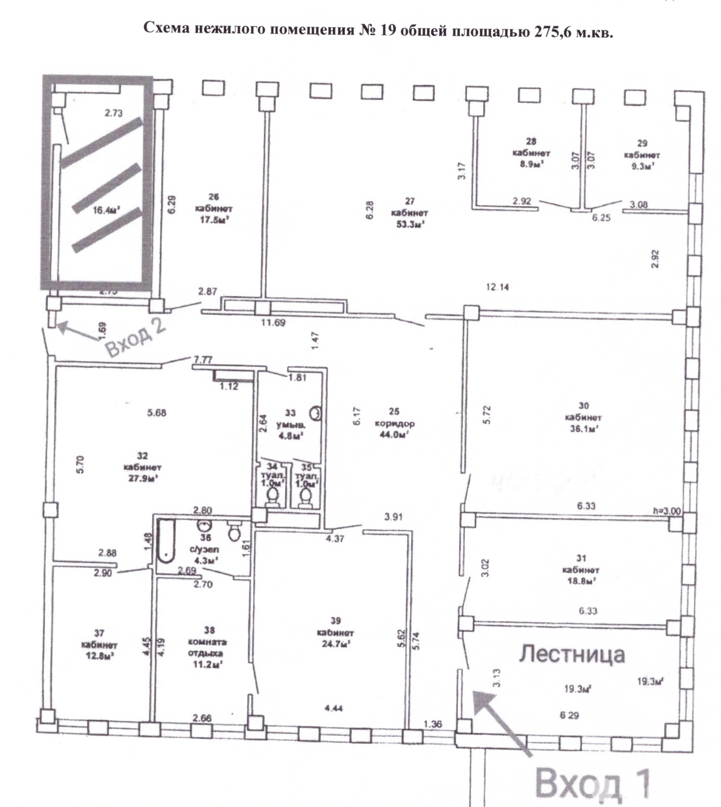
Купить офис на ул. Орловская, д. 40 в Минске, 220000USD, код 9498

275.6 м2 3 этаж из 3 Центральный район / Каховская
637 054 р.
Офис
Город Минск
Район Центральный район
Микрорайон Каховская
Адрес ул. Орловская, д. 40
Площадь 275.6 м2
Помещений 1
Этаж 3
Удобства
Телефон
Круглосуточный доступ
Кондиционер
Видеонаблюдение
Парковка

Описание

Продается офис площадью 275,6 м.кв. (половина 3-го этажа здания). Есть два входа/выхода. В офисе всего 12 кабинетов, из них 9 изолированных и 3 проходных. Пространство офиса позволяет органично распределить персонал фирмы (есть место для рецепции, кабинет для руководителя с отдельной зоной отдыха и отдельным сан. узлом с душевой кабиной), переговорная комната, серверная. Одна комната оборудована окнами в потолке, что придает помещению дополнительное естественное освещение и особый шарм. При входе в помещение установлен контроль доступа. Здание находится в оживленном месте: рядом кафе, магазины, автозаправка Лукойл, Киевский сквер, остановка общественного транспорта. Парковка стихийная. Хорошая центральная вентиляция и естественное освещение, установлены кондиционеры, обслужены.

Высокоскоростной интернет — оптоволокно, установлен коммутационный шкаф с сетевым оборудованием, проведена сеть во всех кабинетах, в 2021 году была установлена новая проводка и сетевые кабели, а также сделан ремонт. В кабинетах мебель, телевизор и некоторая бытовая техника. Заезжай и работай!

Оптимальные условия для Вашего бизнеса и Ваших сотрудников! Цена договорная!

Код объекта: 9498 Опубликовано: 13.11.2025 Обновлено: 13.11.2025
Динамика цен за кв. метрДинамика цен
Похожие объекты
Адрес
Комнат
Площадь
Этаж
Цена за м2
Цена
134.2 м2
3 из 3
2 481 р. за м2

Вы просматривали

434 355 р. 4 185 р. за м2
Центральный р-н
637 054 р. 2 311 р. за м2
Центральный р-н
Офис, 275.6 м2
Минск, ул. Орловская, д. 40
637 054 р.
2 311 р. за м2
Геннадий
Пожалуйста, скажите, что нашли этот объект на Domovita.by
+
Фильтр сохранен