Выберите валюту для сайта:
BYN
Подать БЕСПЛАТНО

Купить офис на ул. Павла Шпилевского, д. 59 в Минске, 183890USD, код 9431

262.7 м2 Ленинский район / Лошица Неморшанский сад
532 490 р.
Офис
Город Минск
Район Ленинский район
Микрорайон Лошица
Адрес ул. Павла Шпилевского, д. 59
Метро Неморшанский сад
Время до метро пешком 23 мин.
Время до метро на транспорте 13 мин.
Год постройки 2007 г.
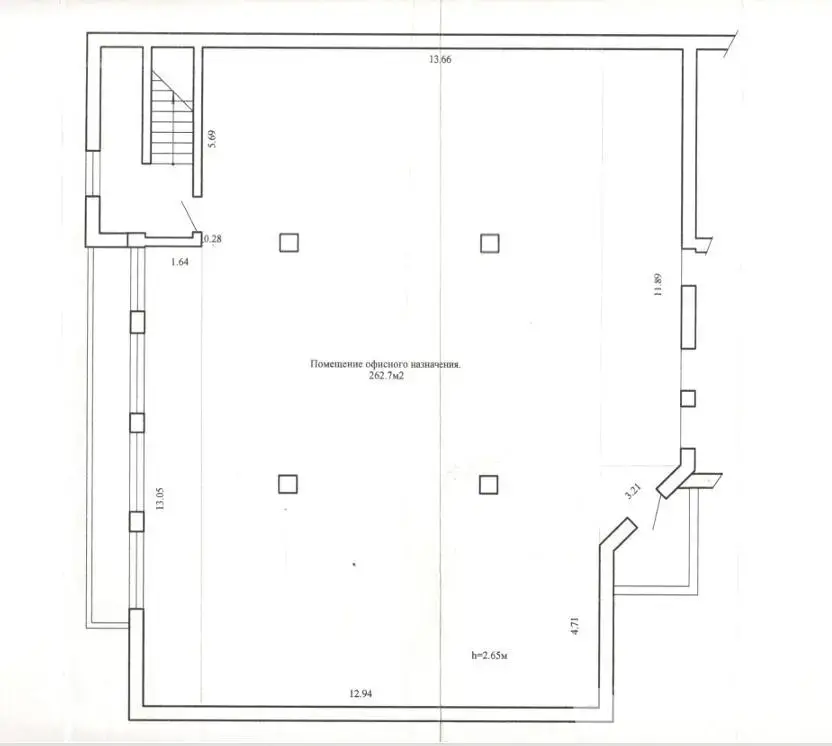
Площадь 262.7 м2

Описание

 

 

Продажа готового бизнеса или помещения под ваш проект в Минске!

 

г. Минск, ул. Шпилевского, 59 (Ленинский район).

помещение 262,7 м2 на цокольном этаже с отдельным входом 24/7.

 

 

 Готовый пассивный доход.

Помещение успешно арендует фитнес-центр.

 Стабильные платежи и долгосрочный договор.

Вы — собственник, получающий деньги.

Фундамент для своего дела.

Договор позволяет освободить помещение.

Начните здесь свой бизнес с нуля!

 

Главные преимущества:

 

Идеальная локация:

 Высокая проходимость, развитая инфраструктура (магазины, банки, кафе), удобная транспортная развязка и парковка.

Полная готовность:

Качественный ремонт, все коммуникации подведены.

Можно работать сразу после покупки.

Универсальность:

Идеально подойдет для фитнес-центра, медицинского или образовательного центра, офиса, шоу-рума.

 

Ваш выбор: продолжить получать стабильную арендную плату или реализовать собственную бизнес-идею в перспективном районе.

 

Цена — конкурентная, перспективы — отличные.

Лицензия: 02240/446 МЮ РБ, 11.07.2022

Код объекта: 9431 Договор с собственником: 831/1 от 2025-10-31 Опубликовано: 01.11.2025 Обновлено: 27.11.2025
Динамика цен за кв. метрДинамика цен
Похожие объекты
Адрес
Комнат
Площадь
Этаж
Цена за м2
Цена
493.6 м2
1 из 18
2 751 р. за м2
493.6 м2
1 из 18
2 751 р. за м2
1-комнатная
439.6 м2
1 из 1
2 751 р. за м2

Вы просматривали

532 490 р. 2 027 р. за м2
Ленинский р-н
Офис, 262.7 м2
Минск, ул. Павла Шпилевского, д. 59
532 490 р.
2 027 р. за м2
Фаттория
Пожалуйста, скажите, что нашли этот объект на Domovita.by
+
Фильтр сохранен