Выберите валюту для сайта:
BYN
Подать БЕСПЛАТНО

Купить офис на ул. Полтавская, д. 10 в Минске, 720000USD, код 8994

776.9 м2 Ленинский район / Маяковского Аэродромная
2 106 792 р.
Офис
Город Минск
Район Ленинский район
Микрорайон Маяковского
Адрес ул. Полтавская, д. 10
Метро Аэродромная
Время до метро пешком 18 мин.
Время до метро на транспорте 10 мин.
Год постройки 1952 г.
Площадь 776.9 м2

Описание

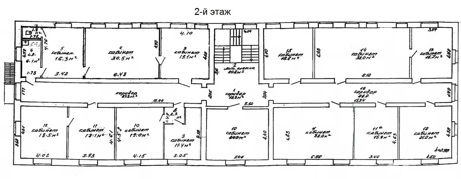
Здание административно-хозяйственное

г. Минск, ул. Полтавская, 10

Общая площадь: 776.9 м2

Зем. участок: 0,0808 га (право аренды)

Покупатель не оплачивает услуги риэлтерской организации!

Двухэтажное здание с ремонтом:

• помещения кабинетной системы, h = 2.97 м.;
• качественная отделка, материал стен - кирпич;
• благоустроенная территория;
• собственная парковка возле здания.

Ваш агент – Андрей Смолка

Присоединяйтесь к нам в соцсетях:

Instagram

Facebook

VK

OK

YouTube

Договор № 46/3 - с 24.07.2025 по 23.07.2027

ООО «Сильван-Инвест», УНП 192927433, лицензия №02240/383, Министерство юстиции РБ, 24.09.2019.

Код объекта: 8994 Договор с собственником: 46/3 от 2025-07-24 Опубликовано: 26.07.2025 Обновлено: 25.02.2026
Динамика цен за кв. метрДинамика цен
Похожие объекты
Адрес
Комнат
Площадь
Этаж
Цена за м2
Цена
778.4 м2
2 из 2
2 707 р. за м2

Вы просматривали

2 106 792 р. 2 712 р. за м2
Ленинский р-н
Офис, 776.9 м2
Минск, ул. Полтавская, д. 10
2 106 792 р.
2 712 р. за м2
Смолка Андрей
Пожалуйста, скажите, что нашли этот объект на Domovita.by
+
Фильтр сохранен