Выберите валюту для сайта:
BYN
Подать БЕСПЛАТНО

Купить офис на ул. Пономаренко, д. 34 в Минске, 427455USD, код 7974

371.7 м2 1 этаж из 1 Фрунзенский район / Харьковская Спортивная
1 316 547 р.
1 261 804 р.
Офис
Город Минск
Район Фрунзенский район
Микрорайон Харьковская
Адрес ул. Пономаренко, д. 34
Метро Спортивная
Время до метро пешком 20 мин.
Время до метро на транспорте 11 мин.
Год постройки 2000 г.
Площадь 371.7 м2
Этаж 1

Описание

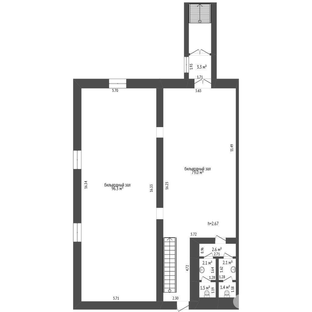
Продаём 2-уровневое помещение 371,1 м.кв. в пристройке жилого дома на ул. Пономаренко 34. 

Это просторное и многофункциональное пространство идеально подходит для кафе, бара, ресторана, караоке-бара, сферы развлечений, сервисного центра, магазина, сферы услуг, салона красоты и т.д.

В настоящее время на 1 этаже размещено уютное кафе (86 м.кв.) с административной частью (88,4 м.кв.), а на 0 этаже обустроена бильярдная (96,3 м.кв.) и караоке-бар (88,7 м.кв.).

На каждый этаж заведено по 25 кВт с возможностью увеличения.

Коммунальные и эксплуатационные затраты в среднем по году - ок. 2 руб/м2.

Преимущества помещения:

  • наличие всех необходимых коммуникаций, включая систему кондиционирования, приточно-вытяжную вентиляцию, пожарно-охранную сигнализацию;

  • санузлы на обоих уровнях;

  • уровни помещений можно использовать автономно друг от друга;
  • комфортный микроклимат в помещении (тепло зимой, прохладно летом);

  • удобное расположение рядом с торговыми объектами, помещениями сферы услуг;

  • плотная заселенность района;

  • возможность установки рекламных конструкций на фасадной части здания; хороший обзор фасада со стороны улицы Пономаренко;

  • просторная парковка прямо перед входом;

  • современная отделка;

  • круглосуточный доступ;

  • активный автомобильный и пешеходный трафик;

Покупатель не оплачивает услуги агентства!

Продажа осуществляется без НДС.

Готовы организовать показ в удобное для вас время. 

Звоните!

---

ООО «ЭТАЖИ юнайтед»

УНП: 193673318

Договор № 5676/1 от 04.12.2024

Лицензия на оказание риэлтерских услуг №02240/460 МЮ РБ от 03.04.2023

Код объекта: 7974 Договор с собственником: №5676/1 от 2024-12-04 Опубликовано: 05.12.2024 Обновлено: 06.03.2026
Динамика цен за кв. метрДинамика цен
Похожие объекты
Адрес
Комнат
Площадь
Этаж
Цена за м2
Цена
371.7 м2
1 из 1
3 395 р. за м2

Вы просматривали

1 261 804 р. 3 395 р. за м2
Фрунзенский р-н
Офис, 371.7 м2
Минск, ул. Пономаренко, д. 34
1 261 804 р.
3 395 р. за м2
Пётр
Пожалуйста, скажите, что нашли этот объект на Domovita.by
+
Фильтр сохранен