Выберите валюту для сайта:
BYN
Подать БЕСПЛАТНО

Купить офис на ул. Прилукская, д. 46/А в Минске, 262000USD, код 9114

249.5 м2 1 этаж из 1 Московский район / Михалово Михалово
822 379 р.
758 673 р.
Офис
Город Минск
Район Московский район
Микрорайон Михалово
Адрес ул. Прилукская, д. 46/А
Метро Михалово
Время до метро пешком 10 мин.
Время до метро на транспорте 5 мин.
Год постройки 1973 г.
Площадь 249.5 м2
Этаж 1

Описание

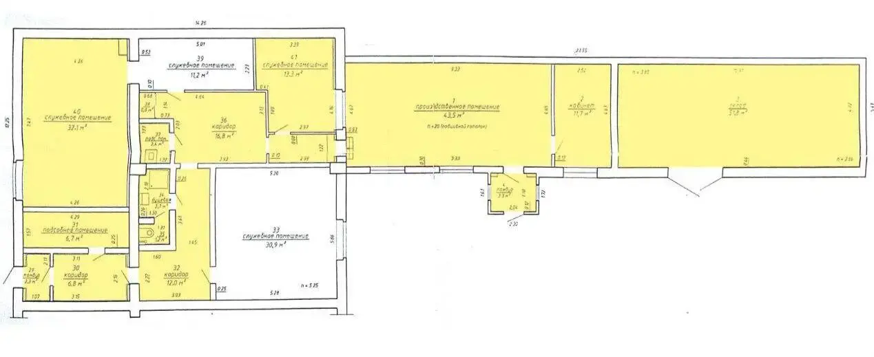
Административно  - производственное помещение со складом, площадью 249,5 кв.м.

Земельный участок на праве постоянного пользования 0,0474 га.

Площадь помещения - 249,5 кв.м. Год-реконструкции -2003.

Тепло, вода, электроснабжение -центральные.

Кухня. Санузел (душ, туалет). 

Удобный подъезд, хорошая транспортная доступность, в шаговой доступности станции метро «Михалово», «Грушевка». 

ООО "Своя гавань"

УНП 193650887

Лицензия Министерства Юстиции 02240/453 от 10.11.2022 г.

Договор 148/1 от 26.08.2025

Код объекта: 9114 Договор с собственником: 148/1 от 2025-08-26 Опубликовано: 27.08.2025 Обновлено: 12.11.2025
Динамика цен за кв. метрДинамика цен
Похожие объекты
Адрес
Комнат
Площадь
Этаж
Цена за м2
Цена
415 м2
1 из 1
1 448 р. за м2

Вы просматривали

7 239 250 р. 4 199 р. за м2
Первомайский р-н
743 908 р. 10 537 р. за м2
Центральный р-н
179 533 р. 1 495 р. за м2
Первомайский р-н
699 138 р. 3 475 р. за м2
Фрунзенский р-н
291 365 р. 3 764 р. за м2
Фрунзенский р-н
270 024 р. 3 620 р. за м2
Фрунзенский р-н
2 741 649 р. 3 475 р. за м2
Фрунзенский р-н
98 683 р. 3 246 р. за м2
Первомайский р-н
758 673 р. 3 041 р. за м2
Московский р-н
513 987 р. 3 026 р. за м2
Партизанский р-н
Офис, 249.5 м2
Минск, ул. Прилукская, д. 46/А
758 673 р.
3 041 р. за м2
Александра
Пожалуйста, скажите, что нашли этот объект на Domovita.by
+
Фильтр сохранен