Выберите валюту для сайта:
BYN
Подать БЕСПЛАТНО

Купить офис на ул. Щорса, д. 1/а в Минске, 87360USD, код 7744

67.02 м2 3 этаж из 8 Московский район / Грушевская Грушевка
252 968 р.
Офис
Город Минск
Район Московский район
Микрорайон Грушевская
Адрес ул. Щорса, д. 1/а
Метро Грушевка
Время до метро пешком 9 мин.
Время до метро на транспорте 5 мин.
Площадь 67.02 м2
Этаж 3
Удобства
Круглосуточный доступ
Отдельный вход
Лифт
Кондиционер
Видеонаблюдение

Описание

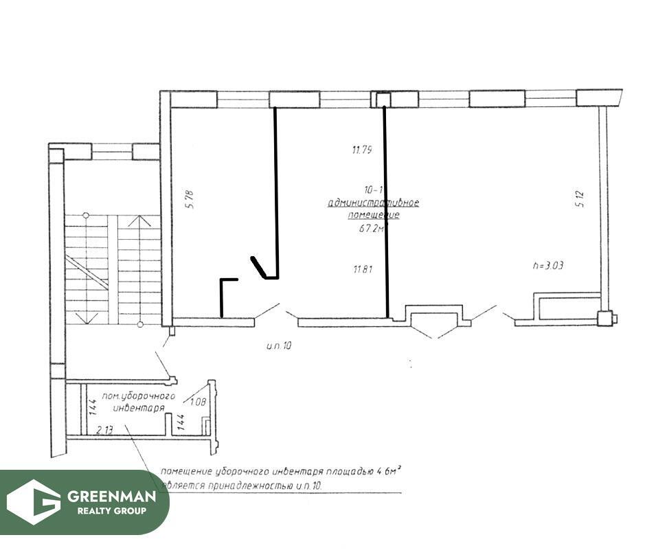
Продается офис 67,2 кв.м.

г. Минск, ул. Щорса 1А. В здании апарт-отеля «Комфорт». В стоимость включен НДС.

До станции метро «Грушевка» всего 750 метров.

Помещение расположено на третьем этаже, разделено  на две комнаты, с двумя отдельными входами.

Выполнена отделка в светлых тонах, стены покрашены, на полу ламинат.

На этаже есть также подсобное помещение 4,6 кв.м.

В здании два лифта, на этаже два санузла, круглосуточный доступ, охрана, кондиционер, видеонаблюдение.

Много парковочных мест.

Код объекта: 7744 Договор с собственником: 27/2 от 2024-10-01 Опубликовано: 02.10.2024 Обновлено: 30.11.2025
Динамика цен за кв. метрДинамика цен
Похожие объекты
Адрес
Комнат
Площадь
Этаж
Цена за м2
Цена
896.1 м2
6 из 8
4 344 р. за м2
39.1 м2
2 из 2
3 649 р. за м2
1005.3 м2
1 из 5
4 193 р. за м2
241 м2
1 из 1
9 901 р. за м2
1-комнатная
188.1 м2
5 из 8
4 633 р. за м2

Вы просматривали

367 754 р. 341 р. за м2
252 968 р. 3 764 р. за м2
Московский р-н
123 067 р. 4 443 р. за м2
Фрунзенский р-н
Офис, 67.02 м2
Минск, ул. Щорса, д. 1/а
252 968 р.
3 764 р. за м2
Гринман риалти групп
Пожалуйста, скажите, что нашли этот объект на Domovita.by
+
Фильтр сохранен