Выберите валюту для сайта:
BYN
Подать БЕСПЛАТНО

Купить офис на ул. Тимирязева, д. 65/б в Минске, 70125USD, код 9484

74.6 м2 10 этаж из 16 Центральный район / Ольшевского Пушкинская
200 866 р.
Офис
Город Минск
Район Центральный район
Микрорайон Ольшевского
Адрес ул. Тимирязева, д. 65/б
Метро Пушкинская
Время до метро пешком 23 мин.
Время до метро на транспорте 12 мин.
Год постройки 2010 г.
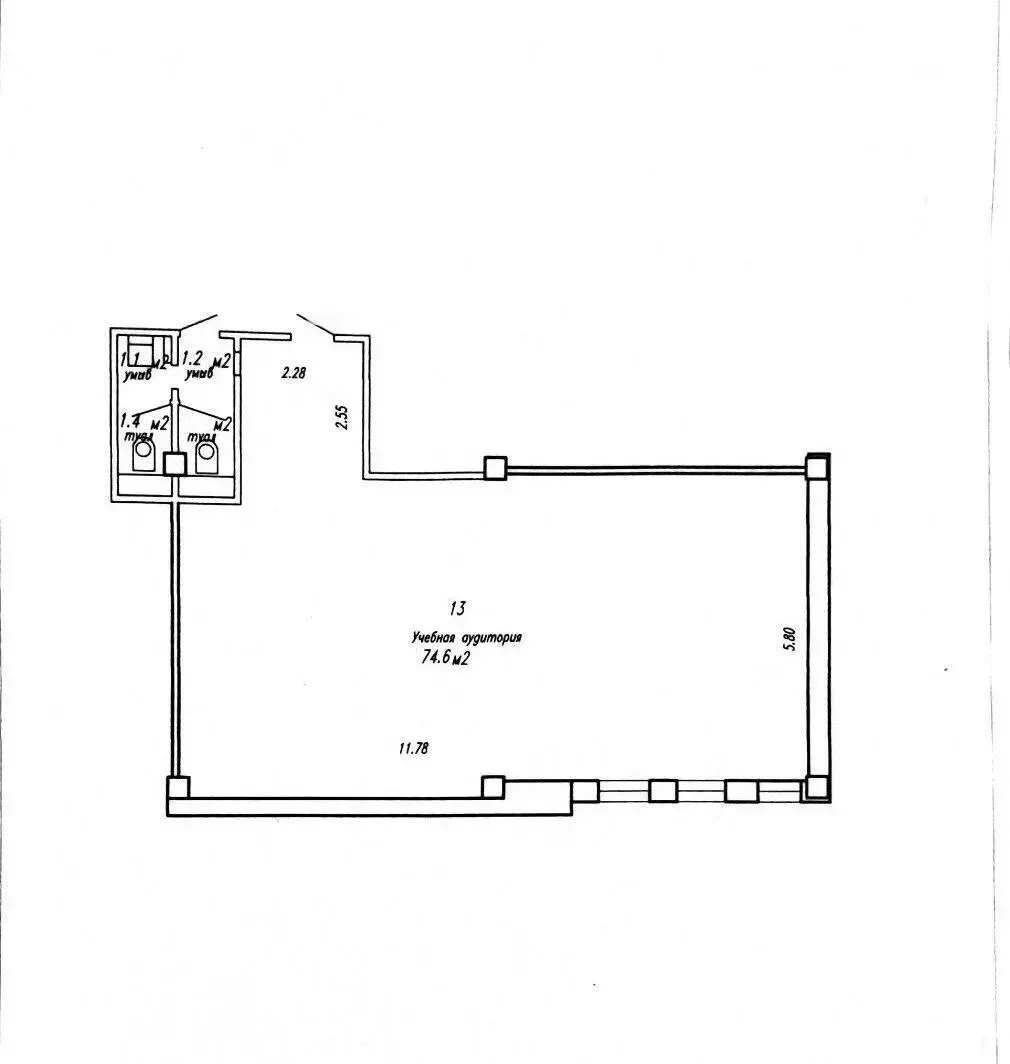
Площадь 74.6 м2
Этаж 10

Описание

Детали объекта:

 

· Общая площадь: 79,6 м2

· Площадь кабинета: 74,6 м2

· Этаж: 10 из 16

· Ремонт: Первичный

 

Коммуникации:

  · Приточно-вытяжная вентиляция

  · Отопление

  · Освещение

  · Оптоволокно (интернет)

· Санузлы: собственный в помещении + дополнительный на этаже.

 

Инфраструктура и локация:

 

· Удобные подъездные пути. Рядом остановки:

  Общественный трансппорт к ключевым станциям метро «Молодежная», «Немига», «Фрунзенская», «Пушкинская», «Спортивная».

· Паркинг: Закрытый паркинг с удобным выходом (пульт передаётся) + открытая парковка у здания.

· В шаговой доступности: отделение банка, медицинские центры, отель, магазины, кафе, кофейни, рестораны, аптеки, заправка.

 

· Собственник передаёт пульт от системы доступа в паркинг и почтовый ящик.

· Покупатель не оплачивает услуги агентства!

Код объекта: 9484 Договор с собственником: 87/3а от 2025-10-24 Опубликовано: 07.11.2025 Обновлено: 06.02.2026
Динамика цен за кв. метрДинамика цен
Похожие объекты
Адрес
Комнат
Площадь
Этаж
Цена за м2
Цена
365.5 м2
3 151 р. за м2
220.7 м2
3 из
2 868 р. за м2
220.7 м2
3 из 16
2 721 р. за м2
220.7 м2
3 из 16
2 721 р. за м2
47.5 м2
14 из 16
2 864 р. за м2

Вы просматривали

1 587 450 р. 2 864 р. за м2
Октябрьский р-н
600 564 р. 2 721 р. за м2
Центральный р-н
122 969 р. 2 578 р. за м2
Центральный р-н
200 866 р. 2 693 р. за м2
Центральный р-н
1 270 934 р. 4 297 р. за м2
Московский р-н
Офис, 74.6 м2
Минск, ул. Тимирязева, д. 65/б
200 866 р.
2 693 р. за м2
Вероника
Пожалуйста, скажите, что нашли этот объект на Domovita.by
+
Фильтр сохранен